16 BROOKSIDE Terrace, Smithville, Ontario, L0R2A0
MLS: 40792767 | Townhouse (Freehold)
$699,900












































Property Description
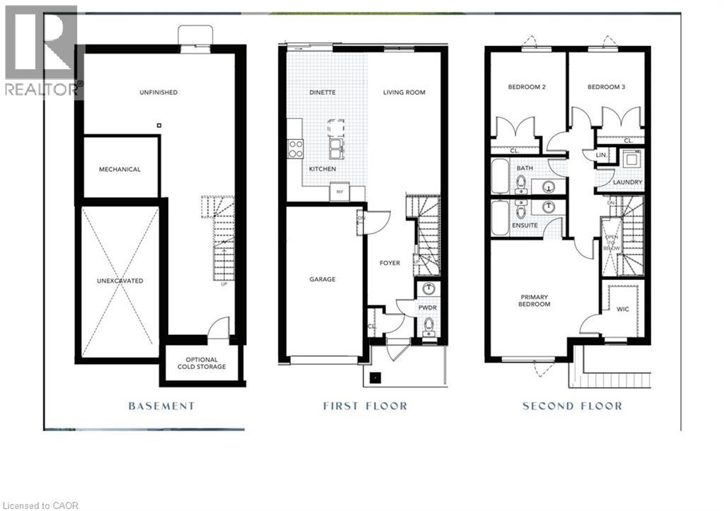
Rare 3 Bedroom, 3 Baths Freehold Bungaloft townhome with open concept plan of approx. 2000 Sq. Ft. The main level of the home features 9' ceilings, a beautiful eat-in kitchen with oversized island, gas stove, double sink and SS appliances, plenty of cupboard and pantry space for storage! The kitchen looks into the main floor dining and living rooms, leading out to an over-sized deck with gazebo, perfect for entertaining in the full-fenced backyard. The spacious layout offers everything needed for one floor living with main level Primary bedroom or enjoy the opportunity to have a Primary suite on the upper level. This unique layout includes two main floor bedrooms, 2 main floor baths and a huge upper level Family room that opens into the large Primary bedroom with a walk-in closet and 4pc ensuite. This flexible plan is ideal for empty nesters or those looking for a split design offering privacy for older kids or extended family with enough space for everyone. This Phelps built home also features a main floor laundry and a full unspoiled basement with roughed in bathroom waiting for your finishing touches. Convenient inside entry from the garage & 2 car driveway. Enjoy quaint small town living, walking distance to schools, local parks, trails & conservation areas and just a short drive to all amenities, West Lincoln Community/Sport Centre and award-winning wineries. Don't miss out on all it has to offer! (id:64974)
Quick Facts
- Property Type: Townhouse (Freehold)
- Style: Bungalow
- Bedrooms: 3 (3 above)
- Bathrooms: 3 (1 half)
- Living Area: 2,041 sq ft (189.6 m²)
- Above Grade: 2,041 sq ft (189.6 m²)
- Year Built: 2014
- Ownership: Freehold
- Attached: Yes
- Parking: 3 spaces (Attached Garage)
- Frontage: 26 ft (7.9 m)
Costs
- Annual Taxes: $5,034.89
Listing Provided by: RE/MAX Escarpment Realty Inc.
Board: Cornerstone Association of REALTORS®
Data provided via CREA DDF®.
Detailed Features
Interior & Systems
- Heating: Forced air, Natural gas
- Cooling: Central air conditioning
- Basement: Unfinished, Full
- Appliances: Refrigerator, Water meter, Central Vacuum, Gas stove(s), Range - Gas, Dishwasher, Stove, Window Coverings, Garage door opener
- Utilities: Natural Gas, Electricity, Cable, Telephone
- Security: Security system, Smoke Detectors
Exterior & Construction
- Style: Bungalow
- Exterior: Brick, Stone, Stucco, Hardboard, Vinyl siding
- Foundation: Poured Concrete
- Fencing: Fence
- Sewer: Municipal sewage system
- Water: Municipal water
Lot & Land
- Frontage: 26 ft (7.9 m)
- Features: Ravine, Conservation/green belt, Paved driveway, Gazebo, Automatic Garage Door Opener
- Zoning: RM1-83
Community & Neighbourhood
- Community: Quiet Area, School Bus, Community Centre
- Subdivision: 057 - Smithville
Room Details (12 rooms)
Listing Information
Listing History
Buy/Sell/Terminated/Expired listing history for 16 BROOKSIDE Terrace, Smithville, Ontario, L0R2A0
Location & Neighborhood
🚗 Travel times
Neighborhood Walkability
Mortgage & Cost Calculators
Nearby Homes (Within 2km)
Similar Homes
Similar Properties
No rental comparables found in this area.
Sold Comparables
Access to sold property data requires a registered and verified account with TRREB DDF integration.
Coming SoonRented Comparables
Access to rented property data requires a registered and verified account with TRREB DDF integration.
Coming Soon

























