157 TORYORK DRIVE, Toronto (Humber Summit), Ontario, M9L1X9
MLS: W12750370 | Industrial
$11,500,000










Property Description
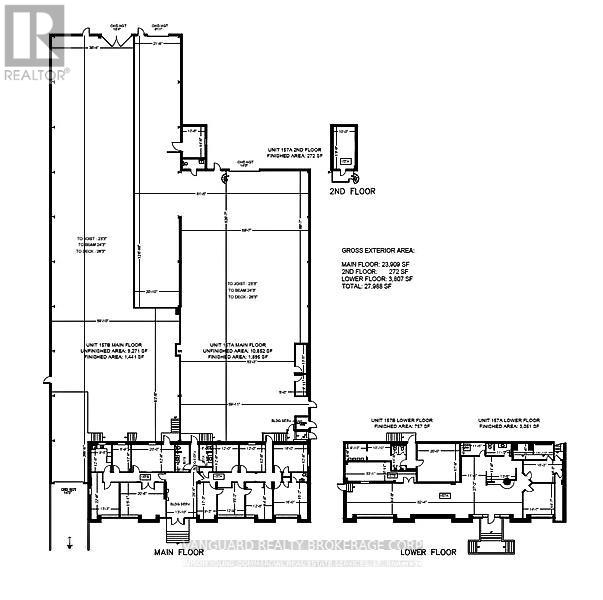
Outstanding opportunity to acquire a 27,988 SF freestanding industrial building on 1.52 acres, including approx. 0.40 acres of approved excess land for expansion. Features 24' clear height, three drive-in doors, one truck-level door, two five-ton cranes, and heavy power. A rare, high-function asset with immediate usability and future upside. (id:64974)
Quick Facts
- Property Type: Industrial
- Bedrooms: None
- Bathrooms: None
- Living Area: 27,988 sq ft (2,600.2 m²)
- Lot Size: 1.5200 acres (0.62 ha)
- Frontage: 348 ft (106.1 m)
Costs
- Annual Taxes: $84,000.00
Listing Provided by: VANGUARD REALTY BROKERAGE CORP.
Board: Toronto Regional Real Estate Board
Data provided via CREA DDF®.
Detailed Features
Interior & Systems
- Heating: Forced air, Natural gas
- Cooling: Partially air conditioned
Exterior & Construction
- Water: Municipal water
Lot & Land
- Lot Size: 1.5200 acres (0.62 ha)
- Frontage: 348 ft (106.1 m)
- Zoning: EH1
Community & Neighbourhood
- Neighbourhood: Humber Summit
Listing Information
Listing History
Buy/Sell/Terminated/Expired listing history for 157 TORYORK DRIVE, Toronto (Humber Summit), Ontario, M9L1X9
Location & Neighborhood
🚗 Travel times
Neighborhood Walkability
Mortgage & Cost Calculators
Nearby Homes (Within 2km)
Similar Homes
Similar Properties
No rental comparables found in this area.
Sold Comparables
Access to sold property data requires a registered and verified account with TRREB DDF integration.
Coming SoonRented Comparables
Access to rented property data requires a registered and verified account with TRREB DDF integration.
Coming Soon






























