15633 KENNEDY ROAD, Caledon, Ontario, L7C2H7
MLS: W12724982 | House (Freehold)
$2,699,900



















































Property Description
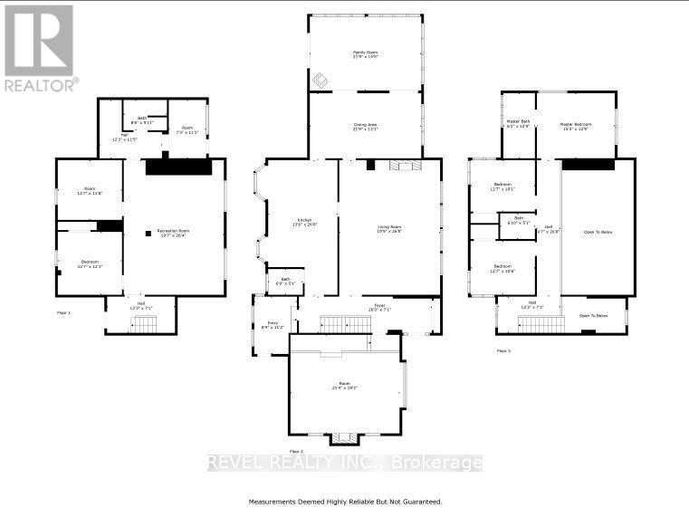
Idyllic Rural Caledon Location, A Winding Driveway Takes You To A Breathtaking 25-Acre Estate WithRolling Hills, ~8 acres Farmland, Offering Unparalleled Privacy Complete With A Large Tranquil Pond. TheMid-Century, Architecturally Inspirational Home Boasts Over 4,000 Sq.Ft. Of Potential. Equipped With A Detached 1,800+ Sq.Ft. Garage/Heated Workshop. Enter The Home To 18-Ft Ceilings, A Skylit Open-Concept Foyer, And Original Charm Throughout. A Classic Formal Study (Once A Garage) Features RichWood Wainscoting & Built-In Bookcases Reminiscent Of The Victorian Era. The Grand Living RoomShowcases A Floor-To-Ceiling Brick Wood-Burning Fireplace, Soaring 20-Ft Vaulted Ceiling, PanoramicScenic Front Yard & Serene Water Views. A Formal Dining Room With Hardwood. Kitchen OverlookingBackyard Trees & Wildlife, With Unique Cabinetry, Walk-In Pantry, And Centre Island. At The South End, A Stunning Sunroom Surrounded By Oversized Windows & High Ceilings + Wood-Burning Stove (non-operational), Offers Year-Round Nature Views Of Your Private Paradise. The Main Level Also Includes A 2-Piece Bath And A Mudroom With Separate Entrance. Upstairs, The Primary Suite Boasts Built-In Closets AndA Spa-Sized 4-Piece Ensuite With A Jetted Tub, Alongside Two Additional Bedrooms And A 4-Piece MainBath. The Semi-Finished Lower Level Features A Spacious Rec Room, Extra Bedroom, Utility Room & A Walkout Mudroom with Roughed-In Bathroom Easily Convertible Into An In-Law Suite. A Rare OpportunityTo Own A Private Estate Just Minutes From Major Highways And Caledon Amenities,Terra Cotta, RenownedGolf Courses, Conservation Areas & 45-min commute to Pearson Airport. Your Dream Country Retreat Awaits. (id:64974)
Quick Facts
- Property Type: House (Freehold)
- Bedrooms: 4 (3 above, 1 below)
- Bathrooms: 4 (1 half)
- Ownership: Freehold
- Attached: No
- Fireplaces: 4
- Parking: 18 spaces (Detached Garage, Garage)
- Frontage: 502 ft (153.1 m)
Costs
- Annual Taxes: $9,170.11
Listing Provided by: REVEL REALTY INC.
Board: Toronto Regional Real Estate Board
Data provided via CREA DDF®.
Detailed Features
Interior & Systems
- Heating: Baseboard heaters, Electric
- Cooling: None
- Basement: Finished, Walk out, N/A
- Appliances: Refrigerator, Water softener, Stove, Oven, Microwave, Water Treatment, Window Coverings, Water Heater
- Flooring: Tile, Hardwood, Laminate, Carpeted
- Utilities: Electricity
- Fireplace Features: Woodstove
Exterior & Construction
- Exterior: Wood, Brick
- Foundation: Unknown
- Sewer: Septic System
Lot & Land
- Frontage: 502 ft (153.1 m)
- Features: Wooded area, Rolling, Conservation/green belt, Level
- Zoning: OS-ORM/EPA2-ORM
Community & Neighbourhood
- Building: Fireplace(s)
- Neighbourhood: Rural Caledon
Room Details (13 rooms)
Listing Information
Listing History
Buy/Sell/Terminated/Expired listing history for 15633 KENNEDY ROAD, Caledon, Ontario, L7C2H7
Location & Neighborhood
🚗 Travel times
Neighborhood Walkability
Mortgage & Cost Calculators
Nearby Homes (Within 2km)
Similar Homes
Similar Properties
No rental comparables found in this area.
Sold Comparables
Access to sold property data requires a registered and verified account with TRREB DDF integration.
Coming SoonRented Comparables
Access to rented property data requires a registered and verified account with TRREB DDF integration.
Coming Soon

















