154 ROSSLAND ROAD E, Oshawa (Centennial), Ontario, L1G2W4
MLS: E12756872 | House (Freehold)
$2,399,000




Property Description
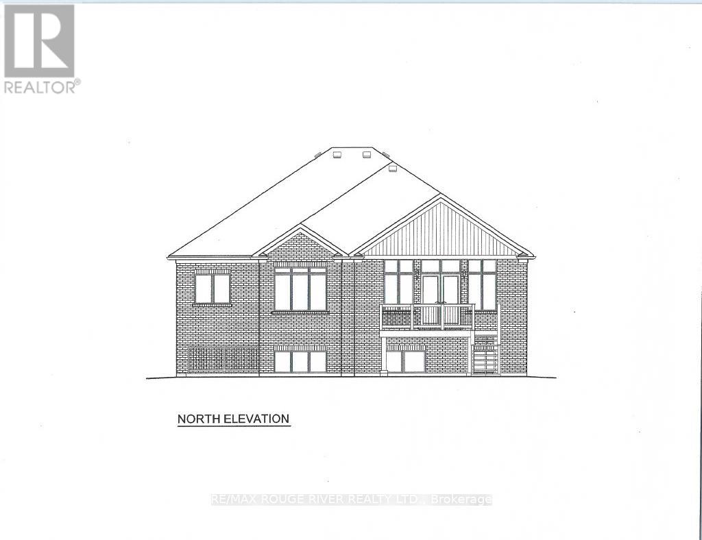
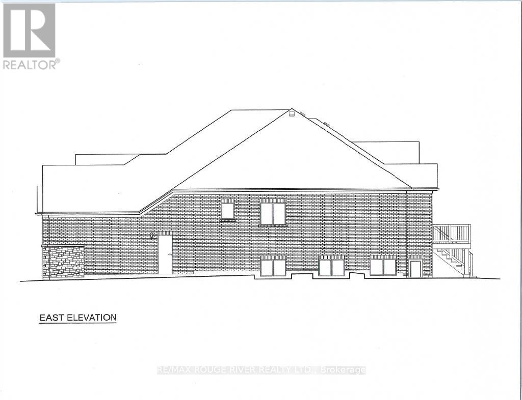
This is your opportunity to own this 4,190 sq ft Multi-generational home currently being constructed by renowned builder Frank Veltri, known for his well built, solid, functional and beautifully designed homes. With two completely separate units you have the ability to either lease out one unit and live in the other or use as a multi-family dwelling. The main floor having 2320.30 sq ft features a huge eat-in kitchen with a breakfast bar and dining area overlooking the massive living room with gas fireplace and walk-out to a deck with gas BBQ connection. Relax and enjoy the amazing master bedroom having a walk-in closet, 9'x4'8" sitting area with cathedral ceiling, a 5 pc ensuite bath with a free standing soaker tub and huge separate shower. The 2nd bedroom also features a cathedral ceiling with a large double closet adjacent to the main floor 4pc bath with linen closet. This upper unit has it's own laundry/mud room with garage access. Lower unit features 1,869.65 sq ft features 2 separate entrances from the garage to the laundry/mud room or at the rear of the home. Large eat-in kitchen with breakfast bar overlooks the rec room having an electric fireplace and walk-up with roof to the backyard. Master bedroom features double closets and a 5 pc bath with separate tub and shower. Adjacent to the rec room you will find a computer room or den which is accessible from the hall or the rec room, perfect for a home office! Beautiful high end finishes throughout including designer chandeliers, oak stairs, custom wall units for both apartments, heated floors in the bathrooms, upgraded plumbing fixtures, separate meters throughout, back yard with two gas connections and rough-in for dog wash in garage. This is truly an amazing multi-generational home for those wishing a beautiful home for two families or should you wish to lease one unit for extra income. (id:64974)
Quick Facts
- Property Type: House (Freehold)
- Style: Raised bungalow
- Bedrooms: 5 (5 above)
- Bathrooms: 5
- Ownership: Freehold
- Attached: No
- Fireplaces: Yes
- Parking: 6 spaces (Garage)
- Frontage: 56 ft (17.1 m)
Listing Provided by: RE/MAX ROUGE RIVER REALTY LTD.
Board: Central Lakes Association of REALTORS®
Data provided via CREA DDF®.
Detailed Features
Interior & Systems
- Heating: Forced air, Natural gas
- Cooling: Central air conditioning
- Basement: Finished, Apartment in basement, Separate entrance, Walk-up, N/A, N/A, N/A, N/A
- Appliances: Water Heater
Exterior & Construction
- Style: Raised bungalow
- Exterior: Brick, Stone
- Foundation: Poured Concrete
- Sewer: Sanitary sewer
- Water: Municipal water
Lot & Land
- Frontage: 56 ft (17.1 m)
- Features: Sump Pump
Community & Neighbourhood
- Community: School Bus
- Building: Separate Electricity Meters, Fireplace(s)
- Neighbourhood: Centennial
Room Details (15 rooms)
Listing Information
Listing History
Buy/Sell/Terminated/Expired listing history for 154 ROSSLAND ROAD E, Oshawa (Centennial), Ontario, L1G2W4
Location & Neighborhood
🚗 Travel times
Neighborhood Walkability
Mortgage & Cost Calculators
Nearby Homes (Within 2km)
Similar Homes
Similar Properties
No rental comparables found in this area.
Sold Comparables
Access to sold property data requires a registered and verified account with TRREB DDF integration.
Coming SoonRented Comparables
Access to rented property data requires a registered and verified account with TRREB DDF integration.
Coming Soon
























