154 COCKSFIELD AVENUE, Toronto (Bathurst Manor), Ontario, M3H3T5
MLS: C12802340 | Vacant Land
$799,900




Property Description
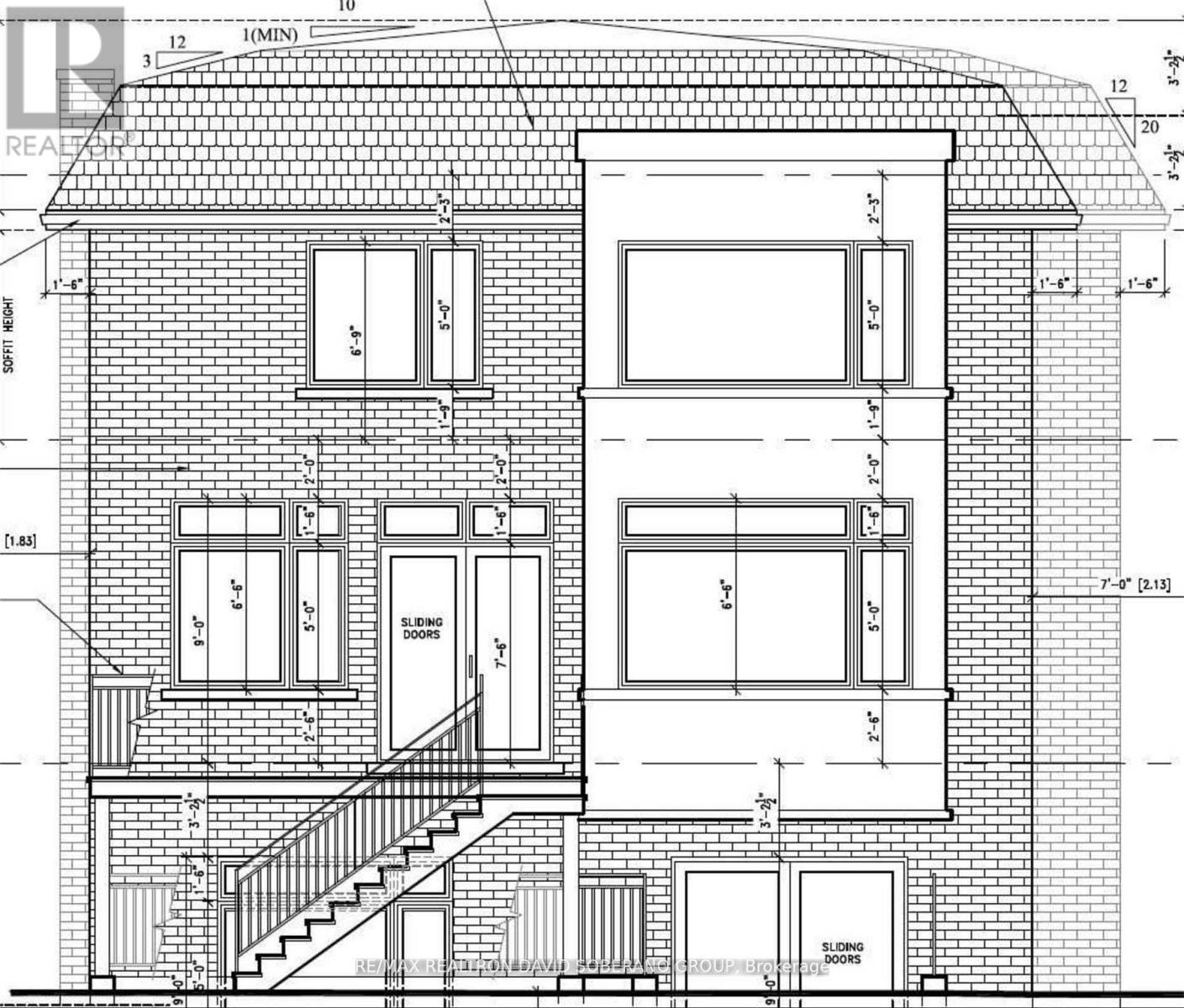
Attention dream home builders, investors, Architects & Designers! Rare opportunity in highly sought-after Bathurst Manor - vacant lot that is 45.11 x 99 ft! You could build your dream home with permits and plans in place for a stunning 2-storey, 4-bedroom fully detached designer residence of approximately 2,850 sq ft with a double car garage. Approved site design with strong density advantages in a prime location. Plans and renderings available (rendering subject to change). Or explore the potential to build a 4-plex investment property with four separate rental units, maximizing income and long-term value. Conveniently located close to TTC, shopping, top schools, places of worship, community centre, and major highways.Vacant Lot Severed From The Rear Of 28/30 Goddard. Premium location. Exceptional flexibility. Endless potential. No unauthorized soliciting on property. (id:64974)
Quick Facts
- Property Type: Vacant Land
- Bedrooms: 0
- Bathrooms: 0
- Frontage: 45 ft (13.7 m)
Costs
- Annual Taxes: $5,504.84
Listing Provided by: RE/MAX REALTRON DAVID SOBERANO GROUP
Board: Toronto Regional Real Estate Board
Data provided via CREA DDF®.
Detailed Features
Interior & Systems
- Utilities: Sewer, Electricity, Cable
Exterior & Construction
- Sewer: Sanitary sewer
- Water: Municipal water
Lot & Land
- Frontage: 45 ft (13.7 m)
Community & Neighbourhood
- Neighbourhood: Bathurst Manor
Listing Information
Listing History
Buy/Sell/Terminated/Expired listing history for 154 COCKSFIELD AVENUE, Toronto (Bathurst Manor), Ontario, M3H3T5
Location & Neighborhood
🚗 Travel times
Neighborhood Walkability
Mortgage & Cost Calculators
Nearby Homes (Within 2km)
Similar Homes
Similar Properties
No rental comparables found in this area.
Sold Comparables
Access to sold property data requires a registered and verified account with TRREB DDF integration.
Coming SoonRented Comparables
Access to rented property data requires a registered and verified account with TRREB DDF integration.
Coming Soon



















