1504 - 208 QUEENS QUAY W, Toronto (Waterfront Communities), Ontario, M5J2Y5
MLS: C12415558 | Apartment (Condo)
$799,000





























Property Description
Experience true luxury waterfront living with unobstructed south facing views of Lake Ontario and the marina, a breathtaking backdrop that floods this condo with natural light and tranquility. Inside, the fully renovated residence showcases a custom designed kitchen with quartz waterfall countertops, an oversized island ideal for entertaining, designer fixtures, and premium finishes throughout. Custom built in cabinetry maximizes storage, while smooth ceilings, accent walls, and pot lights add modern sophistication. Spa inspired bathrooms are finished with elegant details. Perfectly located just steps from the PATH, GO Train, and TTC, and within walking distance of the Financial and Entertainment Districts, this home combines urban convenience with the beauty of lakefront living. A rare opportunity to own a refined, upgraded condo in one of downtown Toronto's most desirable locations, where every day begins and ends with iconic waterfront views. (id:64974)
Quick Facts
- Property Type: Apartment (Condo)
- Bedrooms: 2 (1 above, 1 below)
- Bathrooms: 2 (1 half)
- Ownership: Condo/Strata
- Attached: Yes
- Parking: 1 space (Garage, Underground)
Costs
- Annual Taxes: $3,559.29 (2024)
- Condo/HOA Fee: $743.60 / monthly
- Corp: Icc Property Management Ltd.
- Includes: Common Area Maintenance, Heat, Electricity, Water, Insurance, Parking
Listing Provided by: REMAX CONNECT REALTY
Board: Toronto Regional Real Estate Board
Data provided via CREA DDF®.
Detailed Features
Interior & Systems
- Heating: Forced air, Electric
- Cooling: Central air conditioning
- Basement: None
- Appliances: Washer, Refrigerator, Intercom, Dishwasher, Stove, Dryer, Microwave, Blinds
- Security: Alarm system, Smoke Detectors
Exterior & Construction
- Exterior: Concrete
Lot & Land
- Features: Balcony, Carpet Free, In suite Laundry
- View: Lake view, View
- Pool: Indoor pool
- Waterfront: Waterfront
Community & Neighbourhood
- Community: Pets Allowed With Restrictions
- Building: Storage - Locker, Exercise Centre, Recreation Centre, Security/Concierge
- Neighbourhood: Waterfront Communities C1
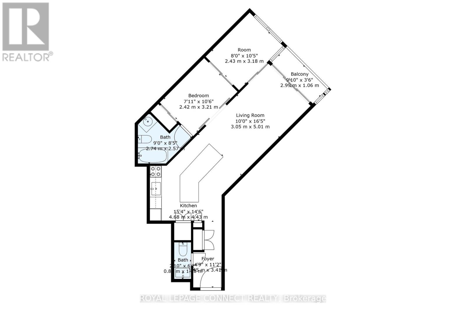
Room Details (6 rooms)
Listing Information
Listing History
Buy/Sell/Terminated/Expired listing history for 1504 - 208 QUEENS QUAY W, Toronto (Waterfront Communities), Ontario, M5J2Y5
Location & Neighborhood
🚗 Travel times
Neighborhood Walkability
Mortgage & Cost Calculators
Nearby Homes (Within 2km)
Similar Homes
Similar Properties
No rental comparables found in this area.
Sold Comparables
Access to sold property data requires a registered and verified account with TRREB DDF integration.
Coming SoonRented Comparables
Access to rented property data requires a registered and verified account with TRREB DDF integration.
Coming Soon

































