1465 MCROBIE AVENUE, Ottawa, Ontario, K1H7E2
MLS: X12812334 | House (Freehold)
$3,650 / monthly
















Property Description
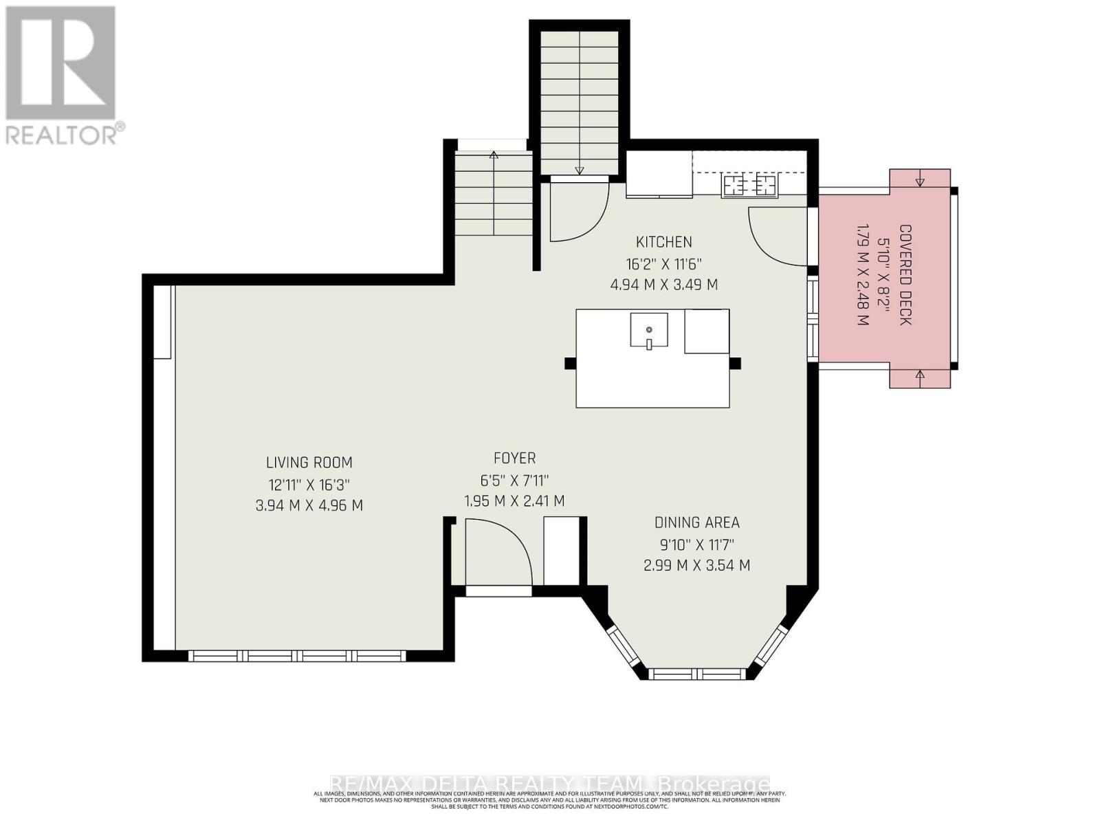
Welcome to this FULLY RENOVATED 3+1 bedroom backsplit bungalow in the heart of ALTA VISTA! Completely transformed from top to bottom, this home features modern finishes throughout, large windows, and light flooring, creating a bright and airy feel. The main level offers a spacious living and dining area that flows seamlessly into the kitchen, creating an inviting space ideal for both everyday living and hosting. The kitchen is stylish and functional, featuring a convenient side entrance for added flexibility and easy outdoor access. Upstairs, you'll find three comfortable bedrooms, each with large closets equipped with custom shelving and multiple compartments for exceptional organization. An updated full bathroom on this level is finished with elegant tile, offering a refined, modern touch. The fully finished lower level boasts soaring ceilings and oversized windows that allow for excellent natural light, along with a generous fourth bedroom complete with an oversized walk-in closet - perfect for guests, a home office, or additional living space. This level also features a separate laundry room and a second full bathroom finished with striking luxe details. Step outside to a spacious, fully fenced backyard offering privacy and plenty of room to relax or entertain. Located in one of Ottawa's most sought-after neighbourhoods, you're just minutes to transit, hospitals, great schools, parks, shopping, and an easy commute to downtown. Utilities are extra. Please allow 24 hours' notice for all showings. (id:64974)
Quick Facts
- Property Type: House (Freehold)
- Bedrooms: 4 (3 above, 1 below)
- Bathrooms: 2
- Ownership: Freehold
- Attached: No
- Parking: 3.0 spaces (Attached Garage, Garage)
- Frontage: 62 ft (18.8 m)
Listing Provided by: RE/MAX DELTA REALTY TEAM
Board: Ottawa Real Estate Board
Data provided via CREA DDF®.
Detailed Features
Interior & Systems
- Heating: Forced air, Natural gas
- Cooling: Central air conditioning
- Basement: Finished, Full
- Appliances: Water Heater
Exterior & Construction
- Exterior: Brick
- Foundation: Block
- Fencing: Fenced yard
- Sewer: Sanitary sewer
- Water: Municipal water
Lot & Land
- Frontage: 62 ft (18.8 m)
- Features: In suite Laundry
Community & Neighbourhood
- Neighbourhood: 3607 - Alta Vista
Room Details (11 rooms)
Listing Information
Listing History
MLS listing activity for 1465 MCROBIE AVENUE, Ottawa, Ontario, K1H7E2 — dates reflect when changes were recorded in the DDF
🚗 Travel times
Neighborhood Walkability
Mortgage & Cost Calculators
Nearby Homes ?Nearby Homes — Search CriteriaSearch Radius1 kmPrice Range±5%Match BedroomsYesMatch BathroomsYes

1299 EVANS BOULEVARD, Ottawa
House$3,495/mo
Listing Courtesy of RE/MAX HALLMARK REALTY GROUP

2239 WEBSTER AVENUE, Ottawa
House$969,900
$6,086/yr taxListing Courtesy of ROYAL LEPAGE PERFORMANCE REALTY

2194 NIAGARA DRIVE, Ottawa
House$814,900
$7,056/yr taxListing Courtesy of ROYAL LEPAGE TEAM REALTY

193 CUNNINGHAM AVENUE N, Ottawa
House$1,250,000
$8,393/yr taxListing Courtesy of ENGEL & VOLKERS OTTAWA

317 SUMMIT AVENUE, Ottawa
House$898,000
$6,099/yr taxListing Courtesy of ENGEL & VOLKERS OTTAWA

141 DAHLIA AVENUE, Ottawa
House$709,900
$5,608/yr taxListing Courtesy of RE/MAX HALLMARK REALTY GROUP

901 - 1440 HERON ROAD, Ottawa
Condo - Apartment$267,500
$1,987/yr taxListing Courtesy of SOLID ROCK REALTY

402 - 1440 HERON ROAD, Ottawa
Condo - Apartment$272,500
$2,171/yr taxListing Courtesy of ROYAL LEPAGE PERFORMANCE REALTY

1101 - 1440 HERON ROAD, Ottawa
Condo - Apartment$2,200/mo
Listing Courtesy of SLEEPWELL REALTY GROUP LTD

1004 - 1440 HERON ROAD, Ottawa
Condo - Apartment$284,900
$2,172/yr taxListing Courtesy of EXP REALTY

118 FINN COURT, Ottawa
House$3,999/mo
Listing Courtesy of EXP REALTY

119 FINN COURT, Ottawa
House$1,049,000
$6,566/yr taxListing Courtesy of POWER MARKETING REAL ESTATE INC.

1408 - 1705 PLAYFAIR DRIVE, Ottawa
Condo - Apartment$440,000
$3,357/yr taxListing Courtesy of REMAX BOARDWALK REALTY

#206 - 1177 BELANGER AVENUE, Ottawa
Condo - Apartment$324,900
$2,499/yr taxListing Courtesy of LPT REALTY

PH9 - 1705 PLAYFAIR DRIVE, Ottawa
Condo - Apartment$3,400/mo
Listing Courtesy of ROYAL LEPAGE PERFORMANCE REALTY
Similar Homes ?Similar Homes — Search CriteriaSearch Radius5 kmPrice Range±5%Match Home TypeYesMatch BedroomsYes

1299 EVANS BOULEVARD, Ottawa
House$3,495/mo
Listing Courtesy of RE/MAX HALLMARK REALTY GROUP

409 - 31 ERIC DEVLIN LANE ROAD, Perth
Other$3,495/mo
Listing Courtesy of EXP REALTY

220 - 31 ERIC DEVLIN LANE, Perth
Other$3,495/mo
Listing Courtesy of EXP REALTY

691 WILSON Street, Hamilton
House$3,495/mo
Listing Courtesy of Real Broker Ontario Ltd.

PH603 - 96 FIFESHIRE ROAD, Toronto (St. Andrew-Windfields)
Condo - Apartment$3,495/mo
Listing Courtesy of HOMELIFE/VISION REALTY INC.

11 TAMBLYN TRAIL, New Tecumseth (Beeton)
House$3,495/mo
Listing Courtesy of RE/MAX HALLMARK REALTY LTD.

75 FORESTGROVE CIRCLE, Brampton (Heart Lake East)
House$3,490/mo
Listing Courtesy of RE/MAX WEST REALTY INC.

38A - 5940 GLEN ERIN DRIVE, Mississauga (Central Erin Mills)
Condo - Row / Townhouse$3,490/mo
Listing Courtesy of BAY STREET GROUP INC.

518 TERRACE WAY, Oakville (SH Sixteen Hollow)
Row / Townhouse$3,490/mo
Listing Courtesy of HIGHLAND REALTY

851 CLEMENS CRESCENT, Mississauga (East Credit)
House$3,490/mo
Listing Courtesy of RE/MAX PROFESSIONALS INC.

118 NIAGARA TRAIL, Halton Hills (Georgetown)
Row / Townhouse$3,488/mo
Listing Courtesy of CENTURY 21 LEADING EDGE REALTY INC.

91 HOMESTEAD DRIVE, Niagara-on-the-Lake (Virgil)
House$3,475/mo
Listing Courtesy of Toronto Regional Real Estate Board

2102 - 130 RIVER STREET, Toronto (Regent Park)
Condo - Apartment$3,475/mo
Listing Courtesy of HOMELIFE/MIRACLE REALTY LTD

1608 - 33 MILL STREET, Toronto (Waterfront Communities)
Condo - Apartment$3,475/mo
Listing Courtesy of CHESTNUT PARK REAL ESTATE LIMITED

4227 COLE CRESCENT, Burlington (Alton)
House$3,475/mo
Listing Courtesy of ROYAL LEPAGE REAL ESTATE SERVICES LTD.
Similar Properties ?Active Comparables — Search CriteriaSearch Radius2 kmPrice Range±5%Match Home TypeYesMatch BedroomsYes

1299 EVANS BOULEVARD, Ottawa
House$3,495/mo
Listing Courtesy of RE/MAX HALLMARK REALTY GROUP

409 - 31 ERIC DEVLIN LANE ROAD, Perth
Other$3,495/mo
Listing Courtesy of EXP REALTY

220 - 31 ERIC DEVLIN LANE, Perth
Other$3,495/mo
Listing Courtesy of EXP REALTY

691 WILSON Street, Hamilton
House$3,495/mo
Listing Courtesy of Real Broker Ontario Ltd.

PH603 - 96 FIFESHIRE ROAD, Toronto (St. Andrew-Windfields)
Condo - Apartment$3,495/mo
Listing Courtesy of HOMELIFE/VISION REALTY INC.

11 TAMBLYN TRAIL, New Tecumseth (Beeton)
House$3,495/mo
Listing Courtesy of RE/MAX HALLMARK REALTY LTD.

75 FORESTGROVE CIRCLE, Brampton (Heart Lake East)
House$3,490/mo
Listing Courtesy of RE/MAX WEST REALTY INC.

38A - 5940 GLEN ERIN DRIVE, Mississauga (Central Erin Mills)
Condo - Row / Townhouse$3,490/mo
Listing Courtesy of BAY STREET GROUP INC.

518 TERRACE WAY, Oakville (SH Sixteen Hollow)
Row / Townhouse$3,490/mo
Listing Courtesy of HIGHLAND REALTY

851 CLEMENS CRESCENT, Mississauga (East Credit)
House$3,490/mo
Listing Courtesy of RE/MAX PROFESSIONALS INC.

118 NIAGARA TRAIL, Halton Hills (Georgetown)
Row / Townhouse$3,488/mo
Listing Courtesy of CENTURY 21 LEADING EDGE REALTY INC.

91 HOMESTEAD DRIVE, Niagara-on-the-Lake (Virgil)
House$3,475/mo
Listing Courtesy of Toronto Regional Real Estate Board

2102 - 130 RIVER STREET, Toronto (Regent Park)
Condo - Apartment$3,475/mo
Listing Courtesy of HOMELIFE/MIRACLE REALTY LTD

1608 - 33 MILL STREET, Toronto (Waterfront Communities)
Condo - Apartment$3,475/mo
Listing Courtesy of CHESTNUT PARK REAL ESTATE LIMITED

4227 COLE CRESCENT, Burlington (Alton)
House$3,475/mo
Listing Courtesy of ROYAL LEPAGE REAL ESTATE SERVICES LTD.
Sold Comparables
Access to sold property data requires a registered and verified account with TRREB DDF integration.
Coming SoonRented Comparables
Access to rented property data requires a registered and verified account with TRREB DDF integration.
Coming SoonRequest a Tour
1465 MCROBIE AVENUE, Ottawa, Ontario, K1H7E2
