143 ELGIN Street N Unit# 91, Cambridge, Ontario, N1R0E1
MLS: 40818037 | Townhouse (Freehold)
$639,000



































Property Description
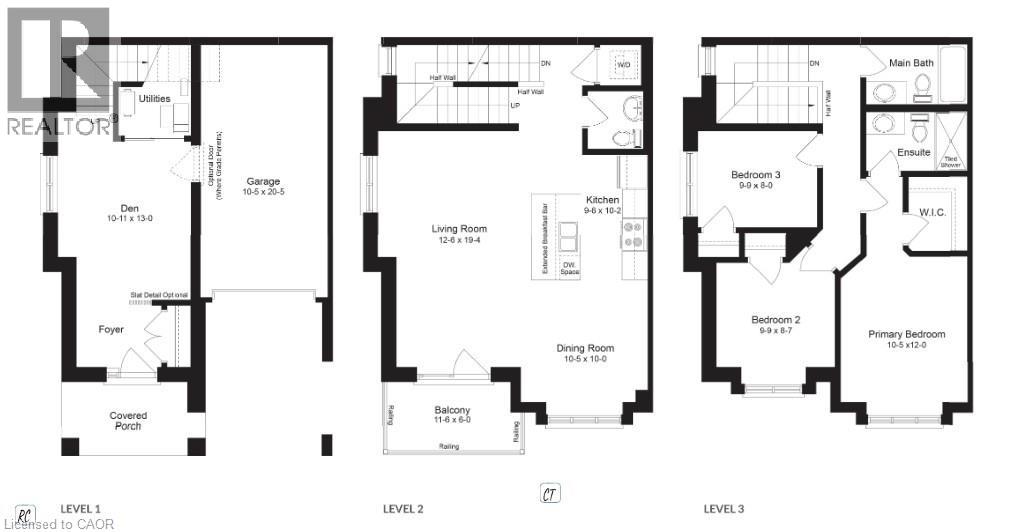
APPOINTMENT ONLY. This stylish modern home offers a bright open-concept main floor layout with a large Livingroom, dining, and chefs’ kitchen with oversized eat at island that overlooks the living space. The main floor features 9' main-floor ceilings, convenient laundry, and walkout to private balcony. The kitchen offers sleek flat-panel cabinetry with crown moulding, under-cabinet lighting, stone countertops, a striking black island with waterfall features, stainless steel appliances with gas range, microwave hood fan, stylish backsplash, soft-close drawer, and an added upgraded pantry (25). Upstairs, the home continues its clean, contemporary design with well-appointed bedrooms and updated bathrooms, including a primary bath with glass-enclosed marble-look shower, modern vanity with stone counters, and water-saving fixtures. Additional features include a second stylish bathroom, triple-glazed windows, ERV system, smart thermostat, 200-amp service, luxury vinyl and ceramic flooring throughout the entire home (carpet free). As an added bonus, you’ll appreciate the bright main floor space that could be utilized as a family room, office, playroom, workout room, etc. Quality finishes, thoughtful upgrades, and a polished presentation, this home delivers exceptional value for buyers seeking modern living in a well-designed space. (id:64974)
Quick Facts
- Property Type: Townhouse (Freehold)
- Style: 3 Level
- Bedrooms: 3 (3 above)
- Bathrooms: 3 (1 half)
- Living Area: 1,688 sq ft (156.8 m²)
- Above Grade: 1,688 sq ft (156.8 m²)
- Year Built: 2024
- Ownership: Freehold
- Attached: Yes
- Parking: 2.0 spaces (Attached Garage)
- Frontage: 31 ft (9.4 m)
Costs
- Annual Taxes: $4,009.00
Listing Provided by: PEAK REALTY LTD.
Board: Cornerstone Association of REALTORS®
Data provided via CREA DDF®.
Detailed Features
Interior & Systems
- Heating: Forced air, Natural gas
- Cooling: Central air conditioning
- Basement: None
- Appliances: Refrigerator, Water meter, Water softener, Gas stove(s), Range - Gas, Dishwasher, Dryer, Window Coverings, Garage door opener, Microwave Built-in
Exterior & Construction
- Style: 3 Level
- Exterior: Brick, Stone, Stucco
- Foundation: Poured Concrete
- Sewer: Municipal sewage system
- Water: Municipal water
Lot & Land
- Frontage: 31 ft (9.4 m)
- Features: Conservation/green belt, Balcony
- Zoning: N1R4
Community & Neighbourhood
- Subdivision: 24 - Alison Park/Eastview North
Room Details (14 rooms)
Listing Information
Listing History
MLS listing activity for 143 ELGIN Street N Unit# 91, Cambridge, Ontario, N1R0E1 — dates reflect when changes were recorded in the DDF
🚗 Travel times
Neighborhood Walkability
Mortgage & Cost Calculators
Nearby Homes ?Nearby Homes — Search CriteriaSearch Radius1 kmPrice Range±5%Match BedroomsYesMatch BathroomsYes

143 ELGIN Street N Unit# 84, Cambridge
Condo - Row / Townhouse$669,900
$3,286/yr taxListing Courtesy of Century 21 Heritage House Ltd

39 - 143 ELGIN STREET N, Cambridge
Row / Townhouse$2,950/mo
Listing Courtesy of ROYAL LEPAGE SIGNATURE REALTY

143 ELGIN Street N Unit# 67, Cambridge
Row / Townhouse$699,900
$4,023/yr taxListing Courtesy of RE/MAX TWIN CITY REALTY INC.

143 ELGIN Street N Unit# 63, Cambridge
Row / Townhouse$714,000
$4,106/yr taxListing Courtesy of RE/MAX TWIN CITY REALTY INC.

89 ELGIN Street N, Cambridge
House$2,300/mo
Listing Courtesy of RE/MAX REAL ESTATE CENTRE INC., BROKERAGE

194 DUNDAS STREET N, Cambridge
House$609,000
$3,622/yr taxListing Courtesy of Coldwell Banker Neumann Real Estate

221 SAMUELSON STREET, Cambridge
House$519,900
$3,496/yr taxListing Courtesy of RIGHT AT HOME REALTY

84 CHALMERS Street N, Cambridge
House$1,288,000
Listing Courtesy of GRAND WEST REALTY INC., BROKERAGE

82 CHALMERS Street N, Cambridge
House$1,288,000
Listing Courtesy of GRAND WEST REALTY INC., BROKERAGE

113 BEVERLY Street Unit# MAIN FLOOR, Cambridge
House$2,600/mo
Listing Courtesy of ROYAL LEPAGE CROWN REALTY SERVICES INC.

69 LOWREY Avenue N, Cambridge
House$629,900
$3,434/yr taxListing Courtesy of CENTURY 21 HERITAGE HOUSE LTD.

159 WELLINGTON STREET, Cambridge
House$2,899/mo
Listing Courtesy of RE/MAX REAL ESTATE CENTRE INC.

85 SPRUCE Street Unit# 103, Cambridge
Condo - Apartment$649,000
$4,483/yr taxListing Courtesy of Coldwell Banker The Real Estate Centre, Brokerage

103 - 85 SPRUCE STREET, Cambridge
Condo - Row / Townhouse$649,000
$4,483/yr taxListing Courtesy of COLDWELL BANKER THE REAL ESTATE CENTRE

53 LINCOLN AVENUE, Cambridge
House$899,000
$5,660/yr taxListing Courtesy of RE/MAX TWIN CITY REALTY INC.
Similar Homes ?Similar Homes — Search CriteriaSearch Radius5 kmPrice Range±5%Match Home TypeYesMatch BedroomsYes

1209 VALENTINE DRIVE, Cambridge
House$639,000
$4,065/yr taxListing Courtesy of RE/MAX TWIN CITY REALTY INC.

1209 VALENTINE Drive, Cambridge
House$639,000
$4,065/yr taxListing Courtesy of RE/MAX TWIN CITY REALTY INC.

90 - 51 SPARROW AVENUE, Cambridge
Row / Townhouse$639,999
$4,440/yr taxListing Courtesy of RE/MAX GOLD REALTY INC.

51 SPARROW Avenue Unit# 90, Cambridge
Row / Townhouse$639,999
$4,440/yr taxListing Courtesy of Re/Max GOLD REALTY INC

69 LOWREY Avenue N, Cambridge
House$629,900
$3,434/yr taxListing Courtesy of CENTURY 21 HERITAGE HOUSE LTD.

5 EASTON STREET, Cambridge
House$629,900
$3,038/yr taxListing Courtesy of RE/MAX REAL ESTATE CENTRE INC.

20 BERKLEY Road Unit# 702, Cambridge
Condo - Apartment$649,900
$5,652/yr taxListing Courtesy of Royal LePage State Realty Inc.

116 ESSEX POINT Drive, Cambridge
House$649,900
$4,089/yr taxListing Courtesy of RE/MAX TWIN CITY REALTY INC.

999 VINE Street, Cambridge
House$649,997
$3,760/yr taxListing Courtesy of EXP REALTY

999 VINE STREET, Cambridge
House$649,997
$3,760/yr taxListing Courtesy of EXP REALTY

47 - 135 HARDCASTLE DRIVE, Cambridge
Row / Townhouse$665,000
$5,272/yr taxListing Courtesy of GREEN HEDGE REALTY INC.

109 BLOOMINGTON DRIVE, Cambridge
Row / Townhouse$669,000
$3,524/yr taxListing Courtesy of SUTTON GROUP-ADMIRAL REALTY INC.

194 DUNDAS STREET N, Cambridge
House$609,000
$3,622/yr taxListing Courtesy of Coldwell Banker Neumann Real Estate

143 ELGIN Street N Unit# 84, Cambridge
Condo - Row / Townhouse$669,900
$3,286/yr taxListing Courtesy of Century 21 Heritage House Ltd
Similar Properties ?Active Comparables — Search CriteriaSearch Radius2 kmPrice Range±5%Match Home TypeYesMatch BedroomsYes

90 - 51 SPARROW AVENUE, Cambridge
Row / Townhouse$639,999
$4,440/yr taxListing Courtesy of RE/MAX GOLD REALTY INC.

51 SPARROW Avenue Unit# 90, Cambridge
Row / Townhouse$639,999
$4,440/yr taxListing Courtesy of Re/Max GOLD REALTY INC

69 LOWREY Avenue N, Cambridge
House$629,900
$3,434/yr taxListing Courtesy of CENTURY 21 HERITAGE HOUSE LTD.

5 EASTON STREET, Cambridge
House$629,900
$3,038/yr taxListing Courtesy of RE/MAX REAL ESTATE CENTRE INC.

194 DUNDAS STREET N, Cambridge
House$609,000
$3,622/yr taxListing Courtesy of Coldwell Banker Neumann Real Estate

143 ELGIN Street N Unit# 84, Cambridge
Condo - Row / Townhouse$669,900
$3,286/yr taxListing Courtesy of Century 21 Heritage House Ltd

39 - 143 ELGIN STREET N, Cambridge
Row / Townhouse$2,950/mo
Listing Courtesy of ROYAL LEPAGE SIGNATURE REALTY

13 - 416 DUNDAS STREET S, Cambridge
Row / Townhouse$2,699/mo
Listing Courtesy of CITYSCAPE REAL ESTATE LTD.

212 GREEN GATE Boulevard, Cambridge
Row / Townhouse$2,625/mo
Listing Courtesy of Royal LePage Wolle Realty

5 SPARROW AVENUE, Cambridge
Single Family$2,600/mo
Listing Courtesy of RE/MAX REAL ESTATE CENTRE INC.
Sold Comparables
Access to sold property data requires a registered and verified account with TRREB DDF integration.
Coming SoonRented Comparables
Access to rented property data requires a registered and verified account with TRREB DDF integration.
Coming SoonBook a Viewing
143 ELGIN Street N Unit# 91, Cambridge, Ontario, N1R0E1
