14 TACKEL LINE, Chatham-Kent (Mitchell's Bay), Ontario, N0P1L0
MLS: X12949410 | Vacant Land
$318,000










Property Description
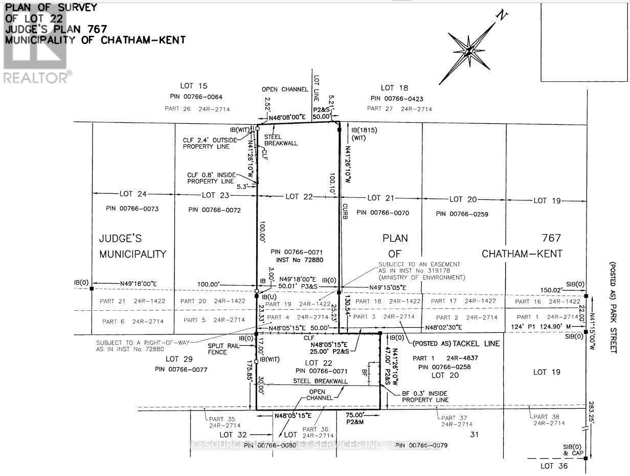
Presenting a rare opportunity to own a prime waterfront lot in the serene community of Mitchell's Bay, Ontario. This expansive property offers direct access to Lake St. Clair, making it an ideal location for boating enthusiasts and those seeking a tranquil lakeside lifestyle. Property Highlights: Size: Approximately 9,725 square feet, providing ample space for your dream home and outdoor amenities.Waterfront Access: Enjoy both northern and southern water access, with property boundaries clearly defined in Judges Plan 767. Seawall: Both northern and southern seawalls have been replaced within the past five years, ensuring durability and protection. Utilities: All essential services are available for connection, including electricity, natural gas, city sewer, and fiber internet. Location Benefits: Community: Mitchell's Bay is a peaceful rural community known for its friendly atmosphere and proximity to natural beauty. Recreation: Immediate access to Lake St. Clair offers opportunities for boating, fishing, and waterfront leisure activities. Accessibility: Conveniently located with easy access to nearby towns and cities for shopping, dining, and entertainment. Zoning: Zoned as RLR-1124, permitting uses including a single family dwelling, boathouse and dock. *For Additional Property Details Click The Brochure Icon Below* (id:64974)
Quick Facts
- Property Type: Vacant Land
- Bedrooms: None
- Bathrooms: 0
- Frontage: 50 ft (15.2 m)
Costs
- Annual Taxes: $917.68
Listing Provided by: ICI SOURCE REAL ASSET SERVICES INC.
Board: Toronto Regional Real Estate Board
Data provided via CREA DDF®.
Detailed Features
Interior & Systems
- Utilities: Sewer, Electricity
Exterior & Construction
- Water: Municipal water
Lot & Land
- Frontage: 50 ft (15.2 m)
- Features: Irregular lot size
- View: Direct Water View
- Waterfront: Waterfront on canal
- Water Body: Mitchell's Bay
- Zoning: RLR-1124
Community & Neighbourhood
- Neighbourhood: Mitchell's Bay
Listing Information
Listing History
MLS listing activity for 14 TACKEL LINE, Chatham-Kent (Mitchell's Bay), Ontario, N0P1L0 — dates reflect when changes were recorded in the DDF
🚗 Travel times
Neighborhood Walkability
Mortgage & Cost Calculators
Similar Homes ?Similar Homes — Search CriteriaSearch Radius5 kmPrice Range±5%Match Home TypeYesMatch BedroomsYes

LOT 58 BEAU RIVAGE AVENUE, Tiny
Vacant Land$319,900
$574/yr taxListing Courtesy of Real Broker Ontario Ltd

6554 HARPER Drive, Niagara Falls
Vacant Land$319,900
$1/yr taxListing Courtesy of Royal LePage State Realty Inc.

89207 GORRIE LINE, Howick
Vacant Land$319,900
Listing Courtesy of RE/MAX Land Exchange Ltd

PART 6 CEDARLANE DRIVE, Wasaga Beach
Vacant Land$319,900
$1,325/yr taxListing Courtesy of Century 21 Millennium Inc.

LOT 78 141 HIGHWAY, Seguin
Vacant Land$315,000
Listing Courtesy of Chestnut Park Real Estate

8419 DEFORE DRIVE, Lambton Shores (Grand Bend)
Vacant Land$314,900
$1,299/yr taxListing Courtesy of ROYAL LEPAGE TRILAND REALTY

ACROSS FROM 2625 COUNTY 10 ROAD, Prince Edward County (South Marysburg Ward)
Vacant Land$314,900
$389/yr taxListing Courtesy of CENTURY 21 LANTHORN REAL ESTATE LTD.

3124 SOUTHWOOD ROAD, Gravenhurst (Wood (Gravenhurst))
Vacant Land$324,900
$753/yr taxListing Courtesy of EXP REALTY

0001 CENTENNIAL LK ROAD, Greater Madawaska
Vacant Land$324,900
$735/yr taxListing Courtesy of Century 21 Valley Realty Inc.

1027 AXE LAKE ROAD, McMurrich/Monteith (McMurrich)
Vacant Land$324,900
$516/yr taxListing Courtesy of Royal LePage Team Advantage Realty

1969 HUTCHINSON ROAD, Haldimand (Dunnville)
Vacant Land$325,000
$103/yr taxListing Courtesy of COLDWELL BANKER MOMENTUM REALTY, BROKERAGE

289 WOODS ROAD, Madoc
Vacant Land$325,000
$1,793/yr taxListing Courtesy of RE/MAX QUINTE LTD.

0 SHEBESHEKONG ROAD, Carling
Vacant Land$325,000
$648/yr taxListing Courtesy of eXp Realty

174 BUDD ROAD, Bonnechere Valley
Vacant Land$325,000
$839/yr taxListing Courtesy of SIGNATURE TEAM REALTY LTD.

182 - 3 FARM VIEW LANE, Prince Edward County (Athol Ward)
Condo$325,000
$2,750/yr taxListing Courtesy of Royal LePage Frank Real Estate
Similar Properties ?Active Comparables — Search CriteriaSearch Radius2 kmPrice Range±5%Match Home TypeYesMatch BedroomsYes
No active comparables found in this area.
No rental comparables found in this area.
Sold Comparables
Access to sold property data requires a registered and verified account with TRREB DDF integration.
Coming SoonRented Comparables
Access to rented property data requires a registered and verified account with TRREB DDF integration.
Coming SoonBook a Viewing
14 TACKEL LINE, Chatham-Kent (Mitchell's Bay), Ontario, N0P1L0
