14 LAKEPORT ROAD, St. Catharines (Port Dalhousie), Ontario, L2N4P5
MLS: X12472975 | Retail
$1,600,000








































Property Description
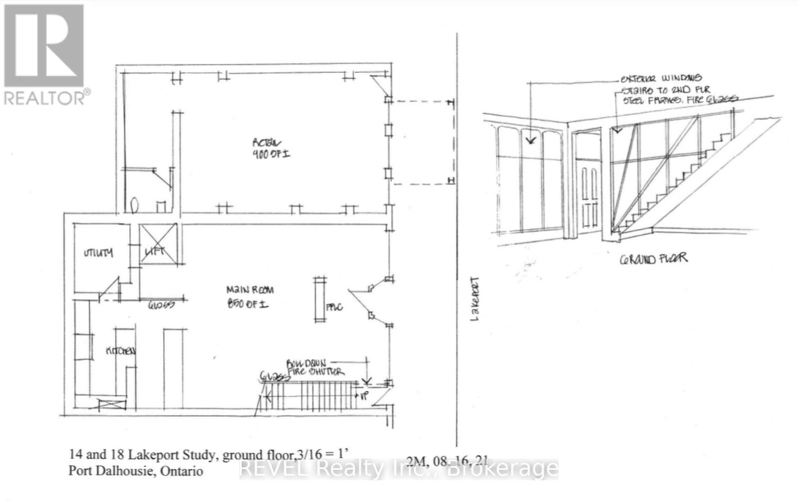
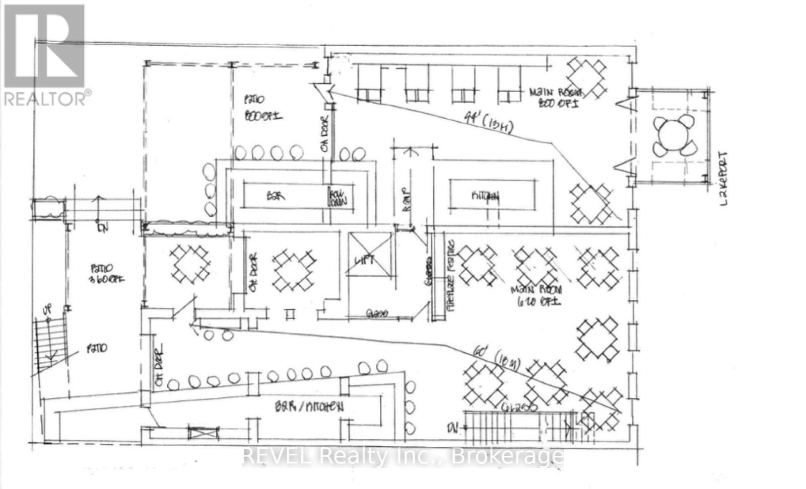
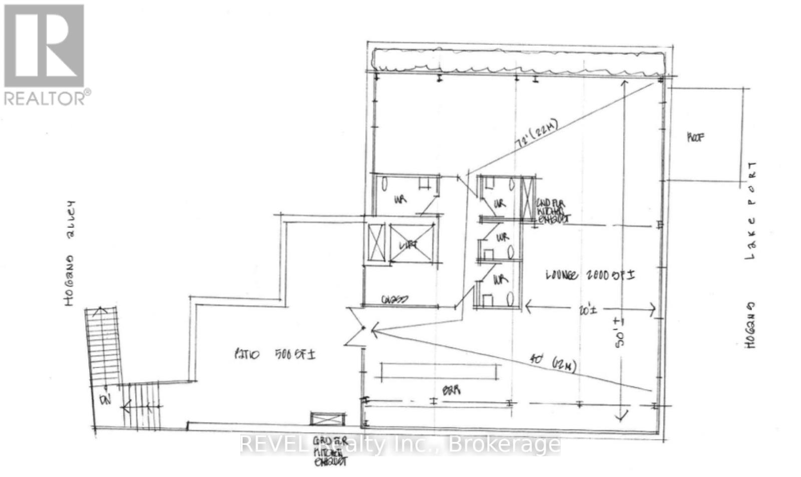
Exceptional investment opportunity in the heart of historic Port Dalhousie. This landmark brick building, said to be one of the oldest storefronts in Ontario, stands prominently on bustling Lakeport Road. With rare street access on all sides and at both levels, offering unmatched exposure and flexibility, plus exceptional water & harbour views. The current 2-storey setup provides the opportunity for potentially 4 or even 5 separate units plus outdoor patios. Perfect for restaurants, retail, boutique shops, or an inspiring mixed-use commercial/residential conversion, the property combines heritage charm with endless potential. Positioned within the city's Port Dalhousie Commercial Core and Harbour Area Secondary Plan, this address sits at the centre of the area's revitalization, surrounded by multi-million-dollar residential and mixed-use developments that are transforming the waterfront into one of Niagara's most vibrant lifestyle destinations. With major private investment, increased density, and improved public realm initiatives already underway, the growth trajectory here is undeniable. Port Dalhousie's walkable waterfront, boutique atmosphere, vibrant active group of engaged residents, and year-round tourism make it a magnet for locals and visitors alike. As residential projects rise nearby, so does demand for quality dining, retail, and live-work spaces, placing this property in the perfect position to capitalize on both steady local traffic and booming seasonal activity. Offering flexibility for future intensification, multi-tenancy, or redevelopment, this character-filled building represents a truly rare chance to own a cornerstone property in one of the region's fastest-evolving commercial corridors. 14 Lakeport Road is more than real estate; it's a front-row investment into the future of Port Dalhousie, and an unmatched opportunity for the savvy investor/entrepreneur with vision to create something profound that is undoubtedly a legacy-defining opportunity. (id:64974)
Quick Facts
- Property Type: Retail
- Bedrooms: None
- Bathrooms: None
- Living Area: 5,500 sq ft (511.0 m²)
- Frontage: 58 ft (17.7 m)
Listing Provided by: REVEL Realty Inc., Brokerage
Board: Niagara Association of REALTORS®
Data provided via CREA DDF®.
Detailed Features
Interior & Systems
- Heating: No heat
- Cooling: None
Exterior & Construction
- Water: Municipal water
Lot & Land
- Frontage: 58 ft (17.7 m)
- Zoning: C2
Community & Neighbourhood
- Neighbourhood: 438 - Port Dalhousie
Listing Information
Listing History
Buy/Sell/Terminated/Expired listing history for 14 LAKEPORT ROAD, St. Catharines (Port Dalhousie), Ontario, L2N4P5
Location & Neighborhood
🚗 Travel times
Neighborhood Walkability
Mortgage & Cost Calculators
Nearby Homes (Within 2km)
Similar Homes
Similar Properties
No rental comparables found in this area.
Sold Comparables
Access to sold property data requires a registered and verified account with TRREB DDF integration.
Coming SoonRented Comparables
Access to rented property data requires a registered and verified account with TRREB DDF integration.
Coming Soon

















