14 - 334 RATTLESNAKE ROAD, Haldimand (Dunnville), Ontario, N0A1K0
MLS: X12693094 | Mobile Home (Leasehold)
$50,000




























Property Description
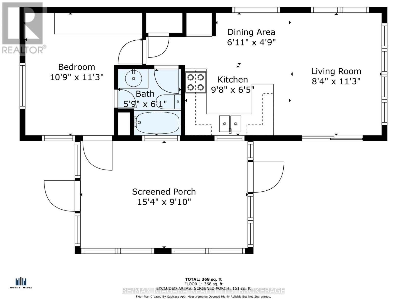
Looking for a seasonal escape from the hustle and bustle of city life? Unit 14 - 334 Rattlesnake Road is your perfect summer retreat! Located in the peaceful, privately-owned Sandy Acres Park, this seasonal-use property offers the ideal setting to relax, recharge, and enjoy the warmer months. This charming one-bedroom, 400 sq ft mobile home is designed for easy, low-maintenance living perfect for weekend getaways or extended stays during the spring, summer, and fall. The spacious 15'4" x 9'10" screened-in porch extends your living space and makes three-season enjoyment a breeze. A brand-new deck, built in 2024, provides the perfect spot to savor your morning coffee or unwind in the fresh country air. As part of a friendly community on leased land, you'll enjoy access to a large swimming pool and a clubhouse for social gatherings. Green thumbs will appreciate the rich soil for gardening, plus the bonus of pear and peach trees on the property! (id:64974)
Quick Facts
- Property Type: Mobile Home (Leasehold)
- Bedrooms: 1 (1 above)
- Bathrooms: 1
- Ownership: Leasehold
- Parking: 2 spaces (No Garage)
Costs
- Annual Taxes: $410.00
Listing Provided by: RE/MAX NIAGARA REALTY LTD, BROKERAGE
Board: Niagara Association of REALTORS®
Data provided via CREA DDF®.
Detailed Features
Interior & Systems
- Heating: Forced air, Propane
- Cooling: None
- Basement: None
Exterior & Construction
- Exterior: Vinyl siding
- Foundation: Slab
- Sewer: Septic System
- Water: Cistern, Community Water System
Lot & Land
- Zoning: OS, A, W
Community & Neighbourhood
- Neighbourhood: Dunnville
Room Details (6 rooms)
Listing Information
Listing History
Buy/Sell/Terminated/Expired listing history for 14 - 334 RATTLESNAKE ROAD, Haldimand (Dunnville), Ontario, N0A1K0
Location & Neighborhood
🚗 Travel times
Neighborhood Walkability
Mortgage & Cost Calculators
Nearby Homes (Within 2km)
Similar Homes
Similar Properties
No active comparables found in this area.
No rental comparables found in this area.
Sold Comparables
Access to sold property data requires a registered and verified account with TRREB DDF integration.
Coming SoonRented Comparables
Access to rented property data requires a registered and verified account with TRREB DDF integration.
Coming Soon











