1385 FURNISS DRIVE, Ramara (Brechin), Ontario, L0K1B0
MLS: S12835290 | House (Freehold)
$849,900



















































Property Description
Discover the perfect blend of modern convenience and timeless charm with this beautifully renovated waterfront home. Situated on a quiet dead-end street, this property offers direct access to Lake Simcoe and the Trent-Severn Waterway, making it ideal for relaxation and adventure alike. Extensive renovations begun in 2020 and include a new kitchen with stainless steel appliances, updated electrical systems, a propane furnace with A/C, and heated basement floors. The spa-style bathroom features a steam shower, while exterior upgrades include new vinyl siding, interlock walkways, and expansive decks. The basement is fully waterproofed with Blueskin and Foundation Membrane, new weepers, and sump pump with battery backup. A stunning great room, with vaulted ceilings and a cozy fireplace, overlooks the water, providing a picturesque space for relaxation or entertaining. The property also includes a detached oversized two-car garage, offering ample storage for vehicles and recreational equipment. Located in a peaceful setting, the home provides convenient water access for boating enthusiasts and a tranquil atmosphere perfect for unwinding. This unique home combines luxury, comfort, and access to nature. Whether you're searching for a permanent residence or a serene getaway, this property offers unparalleled opportunities. (id:64974)
Quick Facts
- Property Type: House (Freehold)
- Style: Bungalow
- Bedrooms: 3 (2 above, 1 below)
- Bathrooms: 2
- Ownership: Freehold
- Attached: No
- Fireplaces: Yes
- Parking: 14 spaces (Detached Garage, Garage)
- Frontage: 240 ft (73.2 m)
Costs
- Annual Taxes: $4,372.00
Listing Provided by: AFFINITY GROUP PINNACLE REALTY LTD.
Board: Central Lakes Association of REALTORS®
Data provided via CREA DDF®.
Detailed Features
Interior & Systems
- Heating: Forced air, Propane
- Cooling: Central air conditioning
- Basement: Finished, N/A
- Appliances: Washer, Refrigerator, Dishwasher, Stove, Oven, Dryer, Freezer, Oven - Built-In, Water Heater
- Utilities: Electricity
Exterior & Construction
- Style: Bungalow
- Exterior: Vinyl siding
- Foundation: Block
- Sewer: Septic System
- Water: Dug Well
Lot & Land
- Frontage: 240 ft (73.2 m)
- Features: Cul-de-sac, Wooded area
- View: River view, View of water, Direct Water View
- Waterfront: Waterfront on river
- Water Body: Talbot River
Community & Neighbourhood
- Building: Fireplace(s)
- Neighbourhood: Brechin
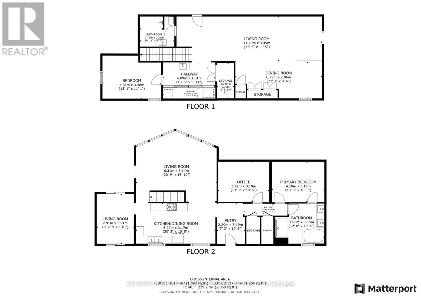
Room Details (11 rooms)
Listing Information
Listing History
Buy/Sell/Terminated/Expired listing history for 1385 FURNISS DRIVE, Ramara (Brechin), Ontario, L0K1B0
Location & Neighborhood
🚗 Travel times
Neighborhood Walkability
Mortgage & Cost Calculators
Nearby Homes (Within 2km)
Similar Homes
Similar Properties
No rental comparables found in this area.
Sold Comparables
Access to sold property data requires a registered and verified account with TRREB DDF integration.
Coming SoonRented Comparables
Access to rented property data requires a registered and verified account with TRREB DDF integration.
Coming Soon

















