138 GREENINGDON DRIVE, Hamilton (Greeningdon), Ontario, L9A3A9
MLS: X12960492 | House (Freehold)
$699,900


















































Property Description
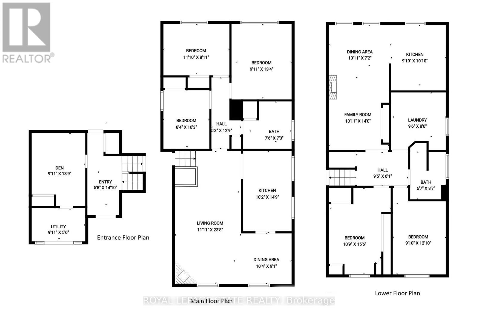
Welcome to this beautifully maintained 3 plus 2 bedroom home with 2072 sq ft of living space in prime Central Hamilton Mountain location. Situated on a desirable pie-shaped lot, this property offers exceptional outdoor space and privacy. Pride of ownership is evident throughout. This home features two gas ovens for the chef and two gas fireplaces, perfect for comfortable living year-round. The fully finished basement includes an additional kitchen, two bedrooms, gorgeous bathroom and oversized laundry area-making it an excellent option for in-laws, extended family, or multi-generational living. A rare opportunity offering flexibility space, and outstanding care in a sought after neighbourhood. The two bathrooms are updated and the lower level bathroom includes heated flooring and wondeful custom made walk-in shower. Both kitchens have wonderful counter space and the sharp white cabinetry is a desirable feature. This home has upgraded lighting in many rooms and also has central vacuum and central air conditioning. Enjoy your wonderful pie shaped and beautiful back yard with the gorgeous shed with electricity and natural gas hook up for barbequing. The main floor den or office adds another get away and private area for a work office. A nice clean and dry crawl space is perfect for storage! In addition this home is nestled in a quiet and desirable Hamilton Mountain location and conveniently located near shopping, transportation and schools. This home has been exceptionally well cared for and this will not last! (id:64974)
Quick Facts
- Property Type: House (Freehold)
- Bedrooms: 5 (3 above, 2 below)
- Bathrooms: 2
- Ownership: Freehold
- Attached: No
- Fireplaces: 2
- Parking: 4.0 spaces (No Garage)
- Frontage: 35 ft (10.8 m)
Costs
- Annual Taxes: $4,880.00
Listing Provided by: ROYAL LEPAGE STATE REALTY
Board: Toronto Regional Real Estate Board
Data provided via CREA DDF®.
Detailed Features
Interior & Systems
- Heating: Forced air, Natural gas
- Cooling: Central air conditioning
- Basement: Finished, Full, Crawl space, N/A
- Appliances: All, Water meter, Central Vacuum, Window Coverings
- Utilities: Sewer, Electricity
Exterior & Construction
- Exterior: Brick, Aluminum siding
- Foundation: Block
- Fencing: Fenced yard, Fully Fenced
- Sewer: Sanitary sewer
- Water: Municipal water
Lot & Land
- Frontage: 35 ft (10.8 m)
- Features: In-Law Suite
Community & Neighbourhood
- Community: School Bus
- Building: Fireplace(s)
- Neighbourhood: Greeningdon
Room Details (15 rooms)
Listing Information
Listing History
MLS listing activity for 138 GREENINGDON DRIVE, Hamilton (Greeningdon), Ontario, L9A3A9 — dates reflect when changes were recorded in the DDF
🚗 Travel times
Neighborhood Walkability
Mortgage & Cost Calculators
Nearby Homes ?Nearby Homes — Search CriteriaSearch Radius1 kmPrice Range±5%Match BedroomsYesMatch BathroomsYes

138 GREENINGDON Drive, Hamilton
House$699,900
$4,888/yr taxListing Courtesy of Royal LePage State Realty Inc.

1091 UPPER WELLINGTON Street, Hamilton
House$679,990
$3,720/yr taxListing Courtesy of Sutton Group Innovative Realty Inc.

112 PURDY Crescent, Hamilton
House$669,900
$4,851/yr taxListing Courtesy of Royal LePage State Realty Inc.

112 PURDY Crescent, Hamilton
House$649,900
$4,851/yr taxListing Courtesy of Royal LePage State Realty Inc.

12 MAITLAND AVENUE, Hamilton (Greeningdon)
House$1,700/mo
Listing Courtesy of HOMELIFE/MIRACLE REALTY LTD

3 MAITLAND Avenue, Hamilton
House$559,900
$4,072/yr taxListing Courtesy of One Percent Realty Ltd.

101 VICTOR Boulevard, Hamilton
House$699,000
$4,500/yr taxListing Courtesy of Heritage Realty

132 JUNE STREET, Hamilton (Greeningdon)
House$759,900
$5,175/yr taxListing Courtesy of Keller Williams Home Group Realty

UPPER - 137 MANNING AVENUE, Hamilton (Greeningdon)
House$2,195/mo
Listing Courtesy of RE/MAX ESCARPMENT REALTY INC.

137 MANNING Avenue Unit# UPPER, Hamilton
House$2,195/mo
Listing Courtesy of RE/MAX Escarpment Realty Inc.

74 VICTOR Boulevard, Hamilton
House$849,900
$4,685/yr taxListing Courtesy of Sutton Group Innovative Realty Inc.

BASEMENT - 59 COLIN CRESCENT, Hamilton (Jerome)
House$1,700/mo
Listing Courtesy of ZOLO REALTY

BASEMENT - 36 VICTOR BOULEVARD, Hamilton (Greeningdon)
House$1,650/mo
Listing Courtesy of REAL ONE REALTY INC.

50 LIMERIDGE ROAD W, Hamilton (Yeoville)
House$1,600/mo
Listing Courtesy of CENTURY 21 LEADING EDGE REALTY INC.

266 LIMERIDGE Road E Unit# 3, Hamilton
Condo - Row / Townhouse$449,900
$2,622/yr taxListing Courtesy of RE/MAX Real Estate Centre Inc.
Similar Homes ?Similar Homes — Search CriteriaSearch Radius5 kmPrice Range±5%Match Home TypeYesMatch BedroomsYes

138 GREENINGDON Drive, Hamilton
House$699,900
$4,888/yr taxListing Courtesy of Royal LePage State Realty Inc.

172 SHERMAN Avenue S, Hamilton
House$699,850
$4,242/yr taxListing Courtesy of RE/MAX Escarpment Realty Inc.

172 SHERMAN AVENUE S, Hamilton (St. Clair)
House$699,850
$4,242/yr taxListing Courtesy of RE/MAX ESCARPMENT REALTY INC.

179 BURRIS STREET, Hamilton (St. Clair)
House$719,000
$4,716/yr taxListing Courtesy of RE/MAX ESCARPMENT REALTY INC.

1091 UPPER WELLINGTON Street, Hamilton
House$679,990
$3,720/yr taxListing Courtesy of Sutton Group Innovative Realty Inc.

27 WELBOURN DRIVE, Hamilton (Balfour)
House$719,900
$4,067/yr taxListing Courtesy of ROYAL LEPAGE REAL ESTATE SERVICES SUCCESS TEAM

1088 KING Street E, Hamilton
House$675,000
$3,883/yr taxListing Courtesy of Right at Home Realty

51 ELGAR Avenue, Hamilton
House$724,900
$4,881/yr taxListing Courtesy of RE/MAX Escarpment Realty Inc.

51 ELGAR AVENUE, Hamilton (Rolston)
House$724,900
$4,881/yr taxListing Courtesy of RE/MAX ESCARPMENT REALTY INC.

126 TISDALE Street N, Hamilton
House$725,000
$1,616/yr taxListing Courtesy of RE/MAX Twin City Realty Inc.

60 WEST 1ST STREET, Hamilton (Bonnington)
House$729,000
$5,749/yr taxListing Courtesy of KELLER WILLIAMS EDGE REALTY

179 BURRIS STREET, Hamilton (St. Clair)
House$729,000
$4,716/yr taxListing Courtesy of RE/MAX ESCARPMENT REALTY INC.

301 EAST 43RD Street, Hamilton
House$729,900
$4,656/yr taxListing Courtesy of Keller Williams Edge Realty

301 EAST 43RD STREET, Hamilton (Hampton Heights)
House$729,900
$4,656/yr taxListing Courtesy of KELLER WILLIAMS EDGE REALTY
Similar Properties ?Active Comparables — Search CriteriaSearch Radius2 kmPrice Range±5%Match Home TypeYesMatch BedroomsYes

138 GREENINGDON Drive, Hamilton
House$699,900
$4,888/yr taxListing Courtesy of Royal LePage State Realty Inc.

1091 UPPER WELLINGTON Street, Hamilton
House$679,990
$3,720/yr taxListing Courtesy of Sutton Group Innovative Realty Inc.

27 WELBOURN DRIVE, Hamilton (Balfour)
House$719,900
$4,067/yr taxListing Courtesy of ROYAL LEPAGE REAL ESTATE SERVICES SUCCESS TEAM

51 ELGAR Avenue, Hamilton
House$724,900
$4,881/yr taxListing Courtesy of RE/MAX Escarpment Realty Inc.

51 ELGAR AVENUE, Hamilton (Rolston)
House$724,900
$4,881/yr taxListing Courtesy of RE/MAX ESCARPMENT REALTY INC.

60 WEST 1ST STREET, Hamilton (Bonnington)
House$729,000
$5,749/yr taxListing Courtesy of KELLER WILLIAMS EDGE REALTY
Sold Comparables
Access to sold property data requires a registered and verified account with TRREB DDF integration.
Coming SoonRented Comparables
Access to rented property data requires a registered and verified account with TRREB DDF integration.
Coming SoonBook a Viewing
138 GREENINGDON DRIVE, Hamilton (Greeningdon), Ontario, L9A3A9

