1344 DUNDAS STREET E, Woodstock (Woodstock - South), Ontario, N4S7V9
MLS: X12763830 | Retail
$20.00 / monthly












Property Description
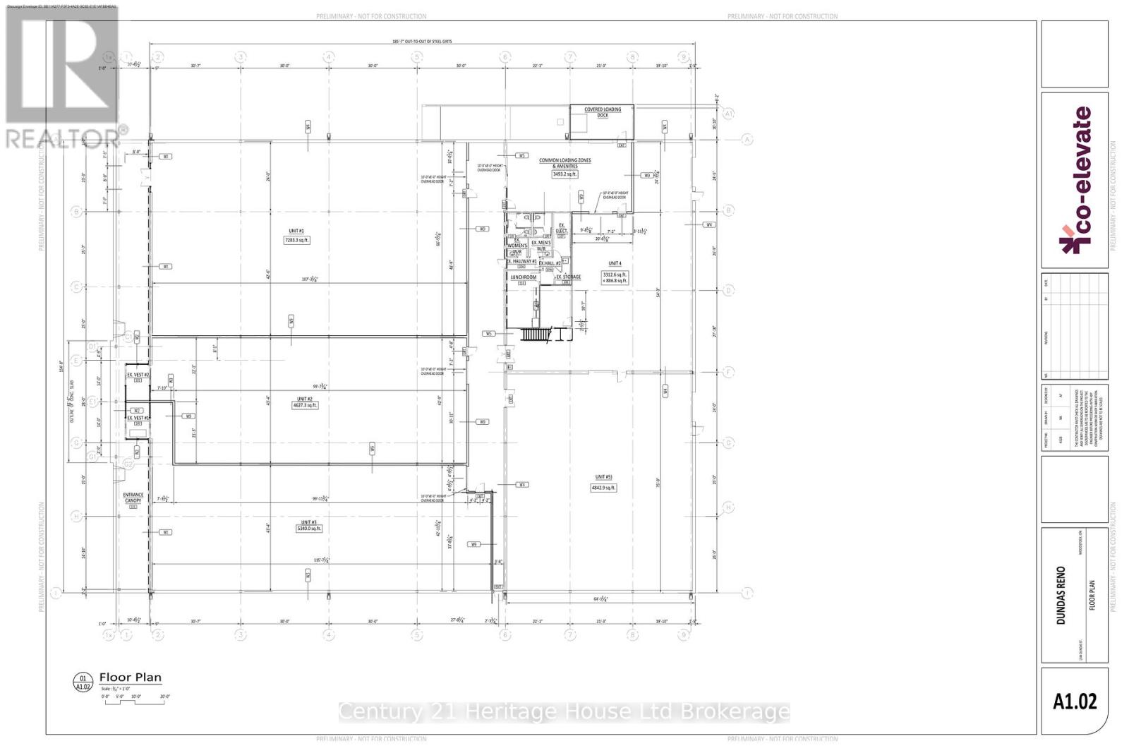
High-Exposure Commercial Opportunity - Woodstock, ON, Rare opportunity to acquire a standalone commercial building totaling over 29,000 SF on a 2.732-acre site with 208 ft of frontage on Dundas Street, Woodstock's primary commercial corridor. Located at a signalized intersection just off Hwy 401 and adjacent to Toyota Motor Manufacturing Canada, offering excellent visibility and access.Zoned M3-11, permitting a wide range of retail, commercial, warehousing, and light industrial uses. 24,000 SF of divisible space available. Building features include 18' clear height, 1 loading dock, 2 grade-level doors, 200A | 600V 3-phase power, sprinklered, LED lighting, pylon signage, and ~1 acre of fenced, secured outdoor storage. Surrounded by established industrial and retail users in a rapidly growing market.Ideal for owner-users, investors, or redevelopment. (id:64974)
Quick Facts
- Property Type: Retail
- Bedrooms: None
- Bathrooms: 2
- Living Area: 24,000 sq ft (2,229.7 m²)
- Frontage: 208 ft (63.2 m)
Costs
- Annual Taxes: $93,000.00
Listing Provided by: Century 21 Heritage House Ltd Brokerage
Board: Woodstock Ingersoll Tillsonburg and Area Association of REALTORS® (WITAAR)
Data provided via CREA DDF®.
Detailed Features
Interior & Systems
- Heating: Forced air, Natural gas
- Cooling: Fully air conditioned
Exterior & Construction
- Water: Municipal water
Lot & Land
- Frontage: 208 ft (63.2 m)
- Zoning: M3-11
Community & Neighbourhood
- Neighbourhood: Woodstock - South
Listing Information
Listing History
Buy/Sell/Terminated/Expired listing history for 1344 DUNDAS STREET E, Woodstock (Woodstock - South), Ontario, N4S7V9
Location & Neighborhood
🚗 Travel times
Neighborhood Walkability
Mortgage & Cost Calculators
Similar Properties
No active comparables found in this area.
Sold Comparables
Access to sold property data requires a registered and verified account with TRREB DDF integration.
Coming SoonRented Comparables
Access to rented property data requires a registered and verified account with TRREB DDF integration.
Coming Soon













