13358 HIGHWAY 48, Whitchurch-Stouffville, Ontario, L4A7X3
MLS: N12942438 | House (Freehold)
$1,690,000














Property Description
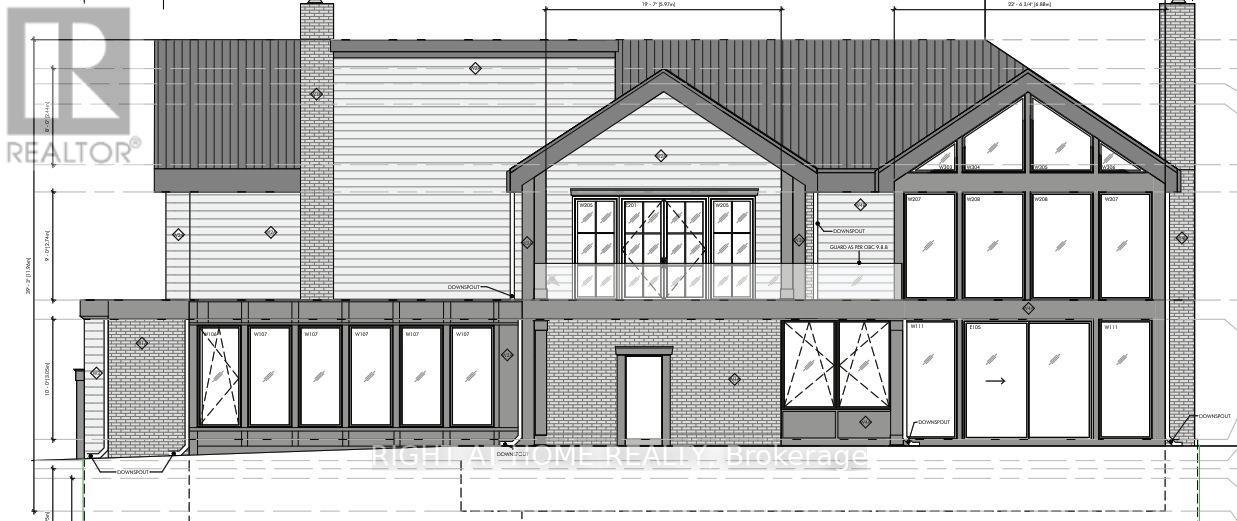
Rare opportunity to own a high-exposure property on the bustling Highway 48 corridor. This versatile address offers a perfect blend of rural charm and urban accessibility, situated just minutes from the growing communities of Stouffville and Mount Albert. The expansive lot provides excellent visibility for a potential live-work setup, home-based business, or a strategic long-term investment. With ample parking, a spacious yard, and close proximity to local dining, golf courses, and essential services, this property serves as a fantastic canvas for your vision. Whether you are looking to renovate the existing structure or explore future development possibilities, this location ensures your investment is well-positioned for growth. Architectural blueprint, structure drawings, sewage system design, etc. included with the sale. Existing property selling as-is. (id:64974)
Quick Facts
- Property Type: House (Freehold)
- Bedrooms: 3 (3 above)
- Bathrooms: 1
- Ownership: Freehold
- Attached: No
- Parking: 12.0 spaces (Detached Garage, Garage)
- Frontage: 265 ft (80.8 m)
Costs
- Annual Taxes: $6,645.01
Listing Provided by: RIGHT AT HOME REALTY
Board: Toronto Regional Real Estate Board
Data provided via CREA DDF®.
Detailed Features
Interior & Systems
- Heating: Forced air, Propane
- Cooling: Central air conditioning
- Basement: Full
- Flooring: Vinyl
Exterior & Construction
- Exterior: Brick
- Foundation: Concrete
- Sewer: Septic System
Lot & Land
- Frontage: 265 ft (80.8 m)
- Features: Wooded area, Conservation/green belt
Community & Neighbourhood
- Neighbourhood: Rural Whitchurch-Stouffville
Room Details (8 rooms)
Listing Information
Listing History
MLS listing activity for 13358 HIGHWAY 48, Whitchurch-Stouffville, Ontario, L4A7X3 — dates reflect when changes were recorded in the DDF
🚗 Travel times
Neighborhood Walkability
Mortgage & Cost Calculators
Similar Homes ?Similar Homes — Search CriteriaSearch Radius5 kmPrice Range±5%Match Home TypeYesMatch BedroomsYes

1345 POTTER DRIVE, Ottawa
House$1,690,000
$8,352/yr taxListing Courtesy of ROYAL LEPAGE TEAM REALTY

39 GILPIN CRESCENT, Collingwood
House$1,690,000
$7,486/yr taxListing Courtesy of RE/MAX By The Bay Brokerage

200 EUCLID AVENUE, Toronto (Trinity-Bellwoods)
House$1,690,000
$7,179/yr taxListing Courtesy of RE/MAX WEST REALTY INC.

48 ROYAL CRESCENT, Southwold
House$1,690,000
$7,773/yr taxListing Courtesy of SUTTON GROUP - SELECT REALTY

552 MORNING DOVE DRIVE, Oakville (WC Wedgewood Creek)
House$1,690,000
$7,161/yr taxListing Courtesy of HOMELIFE LANDMARK REALTY INC.

4734 LAKESIDE LANE, Loyalist (Lennox and Addington - South)
House$1,690,000
$17,872/yr taxListing Courtesy of ROYAL LEPAGE PROALLIANCE REALTY, BROKERAGE

153 ULSTER DRIVE, Oakville (BR Bronte)
House$1,690,000
$5,450/yr taxListing Courtesy of ROYAL LEPAGE SIGNATURE REALTY

76 HAVERSON BOULEVARD, Toronto (Keelesdale-Eglinton West)
House$1,690,000
$10,814/yr taxListing Courtesy of RE/MAX JAZZ INC.

11 DESTINY DRIVE, Leamington
House$1,690,000
Listing Courtesy of ROYAL LEPAGE BINDER REAL ESTATE

78 CLOVELLY COVE, Georgina (Pefferlaw)
House$1,690,000
$6,264/yr taxListing Courtesy of RE/MAX ULTIMATE REALTY INC.

9639 SIDEROAD 27 SIDE ROAD, Erin
House$1,689,999
$7,059/yr taxListing Courtesy of Real Broker Ontario Ltd.

4025 ROLLING VALLEY DRIVE, Mississauga (Erin Mills)
House$1,689,999
$9,749/yr taxListing Courtesy of SAM MCDADI REAL ESTATE INC.

193 PINE COVE Road, Burlington
House$1,689,900
$6,044/yr taxListing Courtesy of Easy List Realty Ltd.

193 PINE COVE ROAD, Burlington (Roseland)
House$1,689,900
$6,045/yr taxListing Courtesy of EASY LIST REALTY LTD.

772 BANTING COURT, Milton (DP Dorset Park)
House$1,689,900
$7,343/yr taxListing Courtesy of RE/MAX ESCARPMENT REALTY INC.
Similar Properties ?Active Comparables — Search CriteriaSearch Radius2 kmPrice Range±5%Match Home TypeYesMatch BedroomsYes
No active comparables found in this area.
No rental comparables found in this area.
Sold Comparables
Access to sold property data requires a registered and verified account with TRREB DDF integration.
Coming SoonRented Comparables
Access to rented property data requires a registered and verified account with TRREB DDF integration.
Coming SoonBook a Viewing
13358 HIGHWAY 48, Whitchurch-Stouffville, Ontario, L4A7X3
