1303 - 2060 LAKESHORE ROAD, Burlington (Brant), Ontario, L7R0G2
MLS: W12946468 | Apartment (Condo)
$1,495,000

















































Property Description
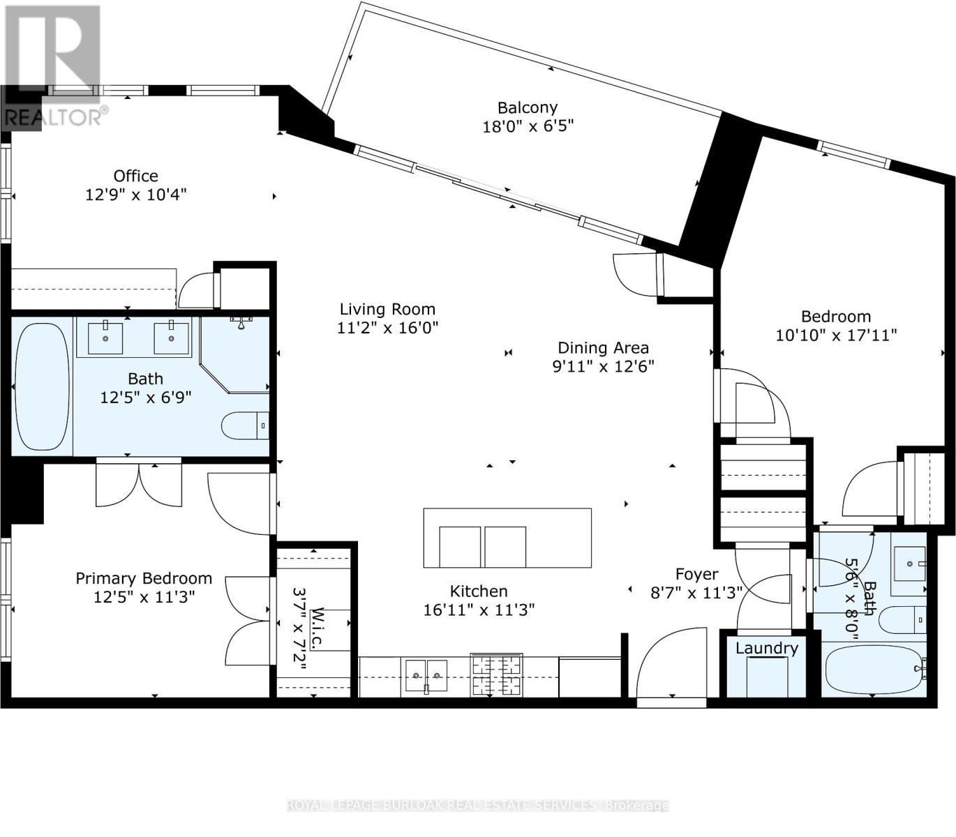
Experience unparalleled luxury at Bridgewater Residences on the lake. This stunning 1,269SF unit boasts a flawless layout and breathtaking, unobstructed views of Lake Ontario, from Burlington to the Toronto skyline. Every detail speaks of quality, from the hardwood floors to the high-end Thermador built in kitchen appliances, including a 5-burner gas range set in granite countertops. Floor-to-ceiling windows flood the open-concept living and dining area with natural light, while offering access to a spacious balcony equipped for BBQs. Both bedrooms feature spectacular views and luxurious en-suites-the primary with a 5-piece set including a separate tub and glass shower, all complemented by marble and granite finishes with heated floors. The secondary bedroom enjoys ensuite privileges and also boasts heated floors. A generous corner den provides a flexible space, ideal for a home office or gym, equipped with built-in cabinetry, which can be easily converted into a 3rd bedroom. Included are central vacuum and a garbage disposal unit. Enjoy the building's exclusive amenities: indoor pool, rooftop courtyard, dual gyms, games and party rooms, and a lakefront deck. Benefit from 24-hour concierge, bike storage, valet visitor parking, and two EV-ready parking spaces, enhancing this premium living experience. (id:64974)
Quick Facts
- Property Type: Apartment (Condo)
- Bedrooms: 2 (2 above)
- Bathrooms: 2
- Ownership: Condo/Strata
- Attached: Yes
- Parking: 2.0 spaces (Garage, Underground)
Costs
- Annual Taxes: $8,948.35
- Condo/HOA Fee: $1,647.76 / monthly
- Corp: Wilson Blanchard
- Includes: Common Area Maintenance, Insurance, Parking
Listing Provided by: ROYAL LEPAGE BURLOAK REAL ESTATE SERVICES
Board: Toronto Regional Real Estate Board
Data provided via CREA DDF®.
Detailed Features
Interior & Systems
- Heating: Forced air, Natural gas
- Cooling: Central air conditioning
- Basement: None
- Appliances: Washer, Refrigerator, Dishwasher, Dryer, Microwave, Hood Fan, Window Coverings, Garage door opener remote(s), Water Heater
Exterior & Construction
- Exterior: Brick
- Foundation: Block
Lot & Land
- Features: Balcony, In suite Laundry
- Zoning: DW-373
Community & Neighbourhood
- Community: Pets Allowed With Restrictions
- Building: Storage - Locker, Exercise Centre, Recreation Centre, Party Room, Security/Concierge
- Neighbourhood: Brant
Room Details (9 rooms)
Listing Information
Listing History
MLS listing activity for 1303 - 2060 LAKESHORE ROAD, Burlington (Brant), Ontario, L7R0G2 — dates reflect when changes were recorded in the DDF
🚗 Travel times
Neighborhood Walkability
Mortgage & Cost Calculators
Nearby Homes ?Nearby Homes — Search CriteriaSearch Radius1 kmPrice Range±5%Match BedroomsYesMatch BathroomsYes

2060 LAKESHORE Road Unit# 1303, Burlington
Condo - Apartment$1,495,000
$8,948/yr taxListing Courtesy of Royal LePage Burloak Real Estate Services

2003 - 2060 LAKESHORE ROAD, Burlington (Brant)
Condo - Apartment$6,000/mo
Listing Courtesy of RE/MAX Escarpment Realty Inc

803 - 2060 LAKESHORE ROAD, Burlington (Brant)
Single Family$4,900/mo
Listing Courtesy of ROYAL LEPAGE BURLOAK REAL ESTATE SERVICES

602 - 2060 LAKESHORE ROAD, Burlington (Brant)
Condo - Apartment$1,149,000
$6,063/yr taxListing Courtesy of RE/MAX ICON REALTY

2060 LAKESHORE Road Unit# 803, Burlington
Single Family$4,900/mo
Listing Courtesy of Royal LePage Burloak Real Estate Services

2060 LAKESHORE Road Unit# 2003, Burlington
Condo - Apartment$6,000/mo
Listing Courtesy of RE/MAX Escarpment Realty Inc.

2060 LAKESHORE Road Unit# 405, Burlington
Condo - Apartment$739,500
$3,789/yr taxListing Courtesy of RE/MAX REAL ESTATE CENTRE INC. BROKERAGE-3

2060 LAKESHORE Road Unit# 1102, Burlington
Condo - Apartment$659,900
$3,614/yr taxListing Courtesy of RE/MAX Escarpment Realty Inc.

2060 LAKESHORE Road Unit# 304, Burlington
Condo - Apartment$999,000
$6,111/yr taxListing Courtesy of RE/MAX Aboutowne Realty Corp.

2060 LAKESHORE Road Unit# 608, Burlington
Condo - Apartment$3,498,000
$17,836/yr taxListing Courtesy of Royal LePage Burloak Real Estate Services

2060 LAKESHORE Road Unit# 308, Burlington
Condo - Apartment$3,499,000
$15,911/yr taxListing Courtesy of Royal LePage State Realty Inc.

415 - 2075 LAKESHORE ROAD, Burlington (Brant)
Condo - Apartment$3,100/mo
Listing Courtesy of RE/MAX MILLENNIUM REAL ESTATE

1302 - 2075 LAKESHORE ROAD, Burlington (Brant)
Condo - Apartment$2,695/mo
Listing Courtesy of ROYAL LEPAGE IGNITE REALTY

408 - 2075 LAKESHORE ROAD, Burlington (Brant)
Condo - Apartment$2,600/mo
Listing Courtesy of ROYAL LEPAGE REAL ESTATE SERVICES LTD.

360 PEARL Street Unit# 804, Burlington
Condo - Apartment$1,049,900
$5,538/yr taxListing Courtesy of Royal LePage Burloak Real Estate Services
Similar Homes ?Similar Homes — Search CriteriaSearch Radius5 kmPrice Range±5%Match Home TypeYesMatch BedroomsYes

2060 LAKESHORE Road Unit# 1303, Burlington
Condo - Apartment$1,495,000
$8,948/yr taxListing Courtesy of Royal LePage Burloak Real Estate Services

1573 TRENT RIVER ROAD, Trent Hills
House$1,495,000
$9,265/yr taxListing Courtesy of ROYAL LEPAGE TERREQUITY REALTY

4836 45 HIGHWAY, Hamilton Township (Baltimore)
House$1,495,000
Listing Courtesy of ROYAL LEPAGE PROALLIANCE REALTY

2001 - 15 GLEBE STREET, Cambridge
Condo - Apartment$1,495,000
$8,102/yr taxListing Courtesy of CHESTNUT PARK REAL ESTATE LIMITED

15 GLEBE Street Unit# PH2001, Cambridge
Condo - Apartment$1,495,000
$8,102/yr taxListing Courtesy of Chestnut Park Real Estate Limited, Brokerage

2026 TINY BEACHES ROAD S, Tiny
House$1,495,000
$6,528/yr taxListing Courtesy of CENTURY 21 B.J. ROTH REALTY LTD.

1504 - 701 GENEVA STREET, St. Catharines (Lakeshore)
Condo - Apartment$1,495,000
$7,880/yr taxListing Courtesy of RE/MAX DYNAMICS REALTY

598 COLDSTREAM AVENUE, Toronto (Englemount-Lawrence)
House$1,495,000
$5,090/yr taxListing Courtesy of RE/MAX REALTRON REALTY INC.

10781 LAKESHORE ROAD W, Wainfleet (Lakeshore)
House$1,495,000
$11,390/yr taxListing Courtesy of ROYAL LEPAGE NRC REALTY

201 - 342 SPADINA ROAD, Toronto (Forest Hill South)
Condo - Apartment$1,495,000
$7,224/yr taxListing Courtesy of FOREST HILL REAL ESTATE INC.

1213 GLENCAIRN AVENUE, Toronto (Yorkdale-Glen Park)
House$1,495,000
$5,995/yr taxListing Courtesy of ROYAL LEPAGE SIGNATURE REALTY

LOT 11 MILLER DRIVE, Hamilton (Ancaster)
House$1,495,000
$7,000/yr taxListing Courtesy of RE/MAX ESCARPMENT REALTY INC.

32 TATTON COURT, King (King City)
Row / Townhouse$1,495,000
$7,429/yr taxListing Courtesy of ROYAL LEPAGE RCR REALTY

LOT 11 MILLER Drive, Hamilton
House$1,495,000
$1/yr taxListing Courtesy of RE/MAX Escarpment Realty Inc.

75 GLENDORA AVENUE, Toronto (Willowdale East)
House$1,495,000
$8,122/yr taxListing Courtesy of SUTTON GROUP-ADMIRAL REALTY INC.
Similar Properties ?Active Comparables — Search CriteriaSearch Radius2 kmPrice Range±5%Match Home TypeYesMatch BedroomsYes

2003 - 2060 LAKESHORE ROAD, Burlington (Brant)
Condo - Apartment$6,000/mo
Listing Courtesy of RE/MAX Escarpment Realty Inc

442 MAPLE Avenue Unit# 707, Burlington
Condo - Apartment$4,950/mo
Listing Courtesy of RE/MAX Escarpment Realty Inc.

803 - 2060 LAKESHORE ROAD, Burlington (Brant)
Single Family$4,900/mo
Listing Courtesy of ROYAL LEPAGE BURLOAK REAL ESTATE SERVICES

2060 LAKESHORE Road Unit# 803, Burlington
Single Family$4,900/mo
Listing Courtesy of Royal LePage Burloak Real Estate Services

2007 JAMES Street Unit# 1503, Burlington
Condo - Apartment$4,500/mo
Listing Courtesy of Royal LePage Burloak Real Estate Services

1503 - 2007 JAMES STREET, Burlington (Brant)
Condo - Apartment$4,500/mo
Listing Courtesy of ROYAL LEPAGE BURLOAK REAL ESTATE SERVICES

703 - 2007 JAMES STREET, Burlington (Brant)
Condo - Apartment$3,950/mo
Listing Courtesy of RE/MAX REAL ESTATE CENTRE INC.

430 PEARL Street Unit# 410, Burlington
Condo - Apartment$3,350/mo
$3,945/yr taxListing Courtesy of RE/MAX Escarpment Realty Inc.

442 MAPLE Avenue Unit# 503, Burlington
Condo - Apartment$3,300/mo
Listing Courtesy of Royal LePage Burloak Real Estate Services

2088 JAMES Street Unit# 1104, Burlington
Condo - Apartment$3,200/mo
Listing Courtesy of Royal LePage Burloak Real Estate Services

415 - 2075 LAKESHORE ROAD, Burlington (Brant)
Condo - Apartment$3,100/mo
Listing Courtesy of RE/MAX MILLENNIUM REAL ESTATE

2087 FAIRVIEW Street Unit# 2309, Burlington
Condo - Apartment$2,950/mo
$3,206/yr taxListing Courtesy of Royal LePage Burloak Real Estate Services

1209 - 2087 FAIRVIEW STREET, Burlington (Freeman)
Condo - Apartment$2,950/mo
Listing Courtesy of ROYAL LEPAGE REAL ESTATE SERVICES LTD.

2088 JAMES Street Unit# 310, Burlington
Condo - Apartment$2,895/mo
Listing Courtesy of Keller Williams Edge Hearth & Home Realty

312 - 2088 JAMES STREET, Burlington (Brant)
Condo - Apartment$2,775/mo
Listing Courtesy of ROYAL LEPAGE REAL ESTATE SERVICES LTD.
Sold Comparables
Access to sold property data requires a registered and verified account with TRREB DDF integration.
Coming SoonRented Comparables
Access to rented property data requires a registered and verified account with TRREB DDF integration.
Coming SoonBook a Viewing
1303 - 2060 LAKESHORE ROAD, Burlington (Brant), Ontario, L7R0G2
