13 ST DAVIDS STREET W, Thorold (Thorold Downtown), Ontario, L2V2L1
MLS: X12948012 | Vacant Land
$999,999








Property Description
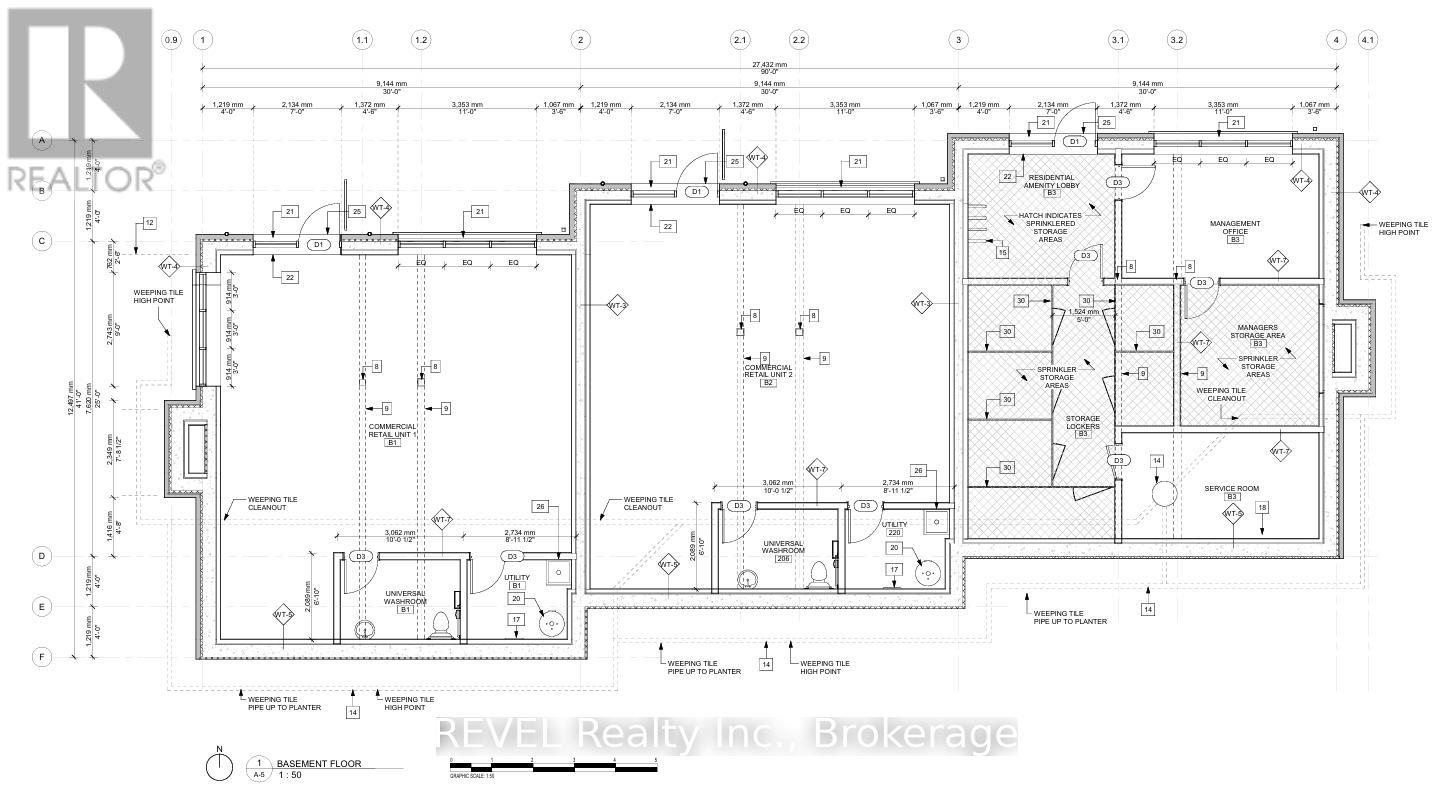
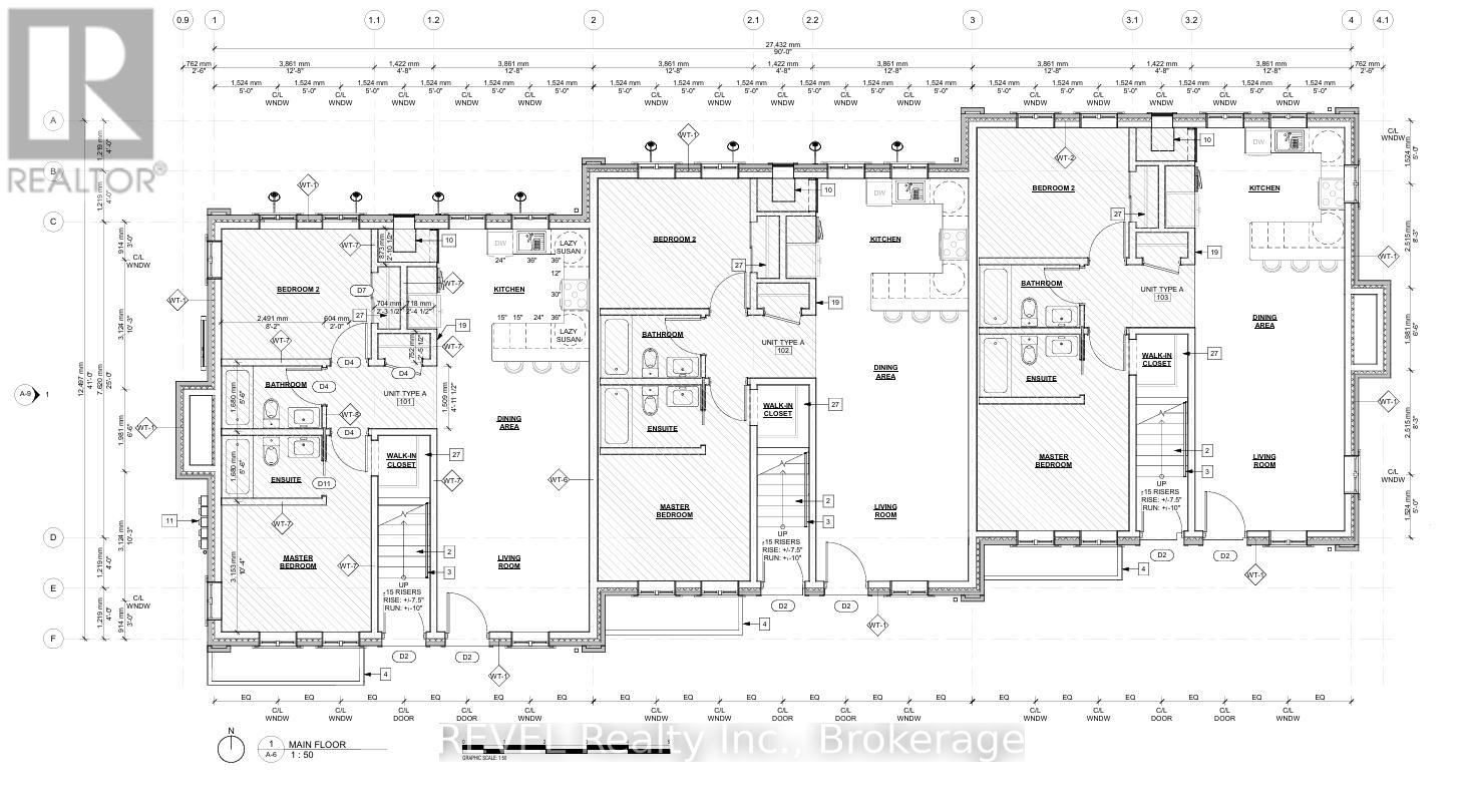
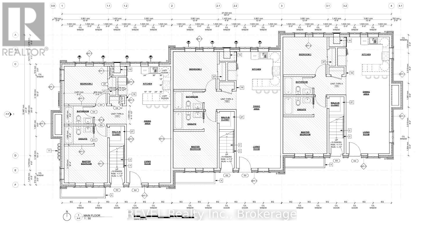
Amazing Development Opportunity! SITE APPROVED for a 9 unit building including 6 residential and 3 commercial units. This is an incredible investment opportunity located in the heart of downtown Thorold. Location is optimal as it is close to all amenities. Preliminary legwork has been done. Nothing to do but obtain a building permit. Buyer to do their due diligence with the City of Thorold for permitted uses. (id:64974)
Quick Facts
- Property Type: Vacant Land
- Bedrooms: None
- Bathrooms: 0
- Frontage: 87 ft (26.5 m)
Costs
- Annual Taxes: $1,906.00
Listing Provided by: REVEL Realty Inc., Brokerage
Board: Niagara Association of REALTORS®
Data provided via CREA DDF®.
Detailed Features
Exterior & Construction
- Sewer: Sanitary sewer
- Water: Municipal water
Lot & Land
- Frontage: 87 ft (26.5 m)
- Zoning: E1
Community & Neighbourhood
- Neighbourhood: 557 - Thorold Downtown
Listing Information
Listing History
MLS listing activity for 13 ST DAVIDS STREET W, Thorold (Thorold Downtown), Ontario, L2V2L1 — dates reflect when changes were recorded in the DDF
🚗 Travel times
Neighborhood Walkability
Mortgage & Cost Calculators
Nearby Homes ?Nearby Homes — Search CriteriaSearch Radius1 kmPrice Range±5%Match BedroomsYesMatch BathroomsYes
Similar Homes ?Similar Homes — Search CriteriaSearch Radius5 kmPrice Range±5%Match Home TypeYesMatch BedroomsYes

1070 SNYDERS FLATS Road, Bloomingdale
Vacant Land$999,999
Listing Courtesy of EXP REALTY

0 PEBBLESTONE ROAD, Durham
Vacant Land$999,999
$1,788/yr taxListing Courtesy of ROYAL HERITAGE REALTY LTD.

206 CHARLES Street, Waterford
Vacant Land$999,999
$3,226/yr taxListing Courtesy of RE/MAX Escarpment Realty Inc.

2747 CHAMBERLAND STREET, Clarence-Rockland
Vacant Land$999,999
Listing Courtesy of ROYAL LEPAGE INTEGRITY REALTY

00 ROBINSON LANE, Laurentian Valley
Vacant Land$999,999
Listing Courtesy of ROYAL LEPAGE EDMONDS & ASSOCIATES

31 - 00 COUNTY ROAD, South Dundas
Vacant Land$1,000,000
$874/yr taxListing Courtesy of RE/MAX GOLD REALTY INC.

670 WILLIAM STREET, Cobourg
Vacant Land$1,000,000
$5,474/yr taxListing Courtesy of CENTURY 21 UNITED REALTY INC.

2515 1ST CONC RD ROAD, Norfolk
Vacant Land$1,000,000
$3,643/yr taxListing Courtesy of T.L. Willaert Realty Ltd Brokerage

0 CONCESSION 4 ROAD, Brock
Vacant Land$999,900
$1,625/yr taxListing Courtesy of RE/MAX ALL-STARS REALTY INC.

372 MCDOUGALL ROAD, McDougall
Vacant Land$999,900
$755/yr taxListing Courtesy of RE/MAX Parry Sound Muskoka Realty Ltd

1135 NORFOLK CTY RD 19 W, Vanessa
Vacant Land$999,900
$1,209/yr taxListing Courtesy of Real Broker Ontario Ltd.

SOUTH OF KEADY GREY ROAD 3 S, Chatsworth
Vacant Land$999,900
$705/yr taxListing Courtesy of RE/MAX Grey Bruce Realty Inc.

341 SOUTHDALE ROAD E, London South (South W)
Vacant Land$999,900
Listing Courtesy of SAM SINGH REALTY INC.

LOT 15 REBECCA ROAD, Thames Centre
Vacant Land$999,000
$2,295/yr taxListing Courtesy of ROYAL LEPAGE FLOWER CITY REALTY

25 WILLIAM STREET, Brantford
Vacant Land$999,000
$15,788/yr taxListing Courtesy of EXP REALTY
Similar Properties ?Active Comparables — Search CriteriaSearch Radius2 kmPrice Range±5%Match Home TypeYesMatch BedroomsYes
No active comparables found in this area.
Sold Comparables
Access to sold property data requires a registered and verified account with TRREB DDF integration.
Coming SoonRented Comparables
Access to rented property data requires a registered and verified account with TRREB DDF integration.
Coming SoonBook a Viewing
13 ST DAVIDS STREET W, Thorold (Thorold Downtown), Ontario, L2V2L1


