13 ST DAVIDS STREET W, Thorold (Thorold Downtown), Ontario, L2V2L1
MLS: X12436040 | Vacant Land
$1,299,000








Property Description
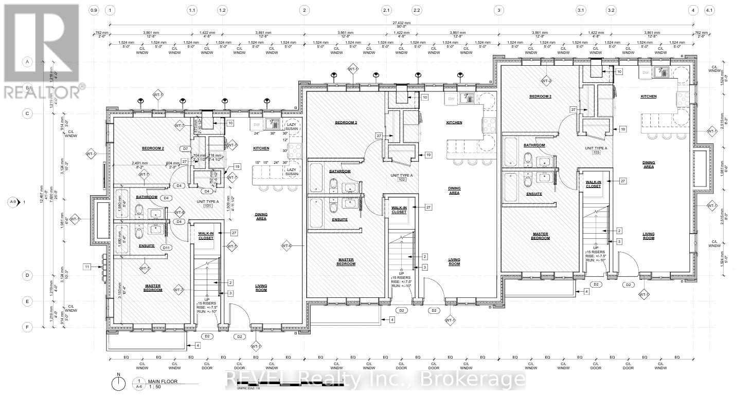
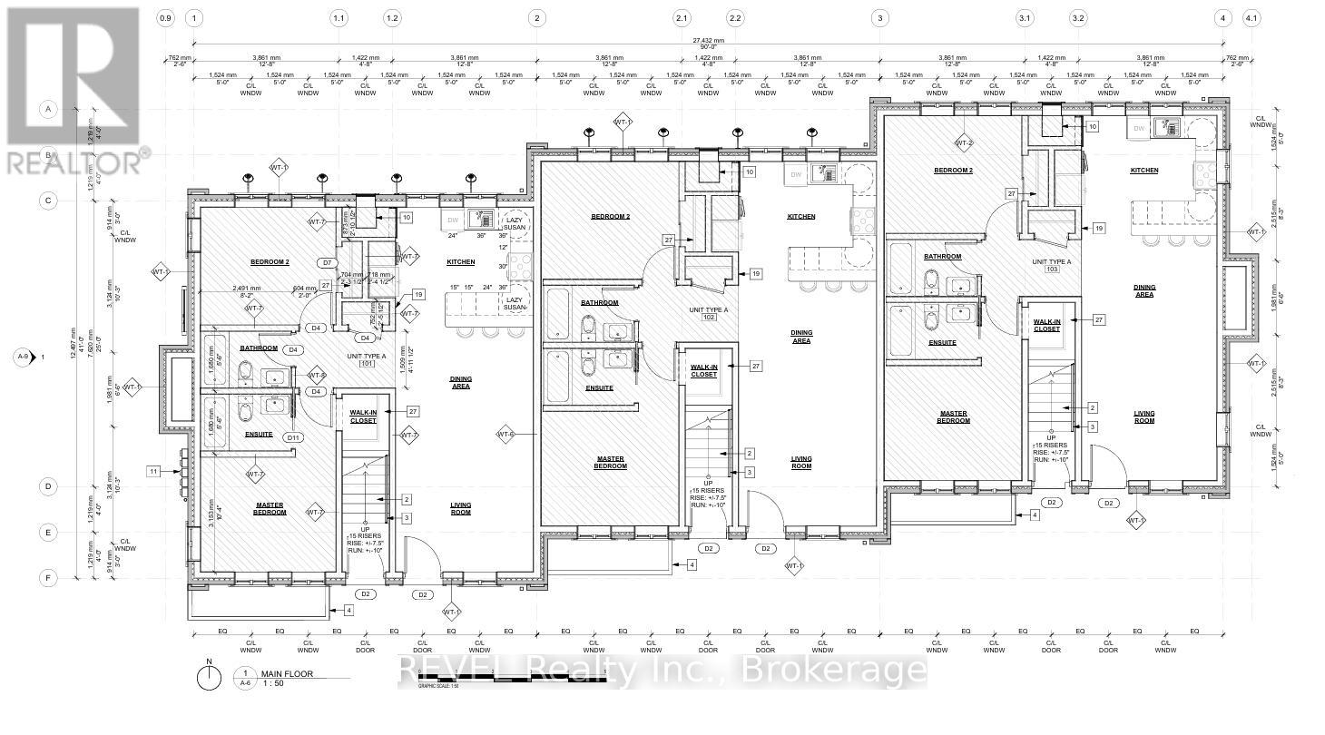
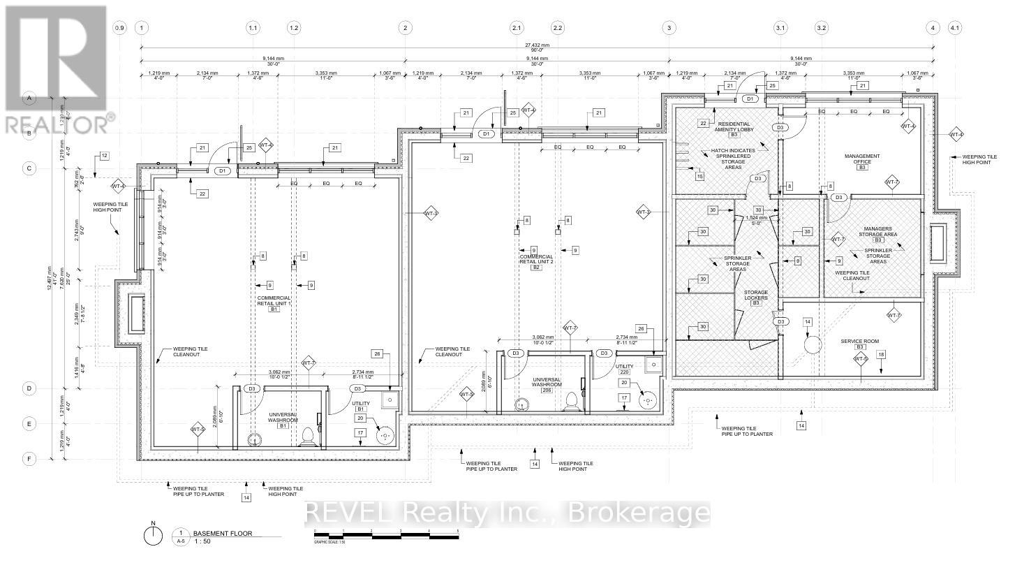
SITE APPROVED for a 9 unit building including 6 residential and 3 commercial units. This is an incredible investment opportunity located in the heart of downtown Thorold. Location is optimal as it is close to all amenities. Preliminary legwork has been done. Nothing to do but obtain a building permit. Buyer to do their due diligence with the City of Thorold for permitted uses. (id:64974)
Quick Facts
- Property Type: Vacant Land
- Bedrooms: None
- Bathrooms: 0
- Frontage: 87 ft (26.5 m)
Costs
- Annual Taxes: $1,906.00
Listing Provided by: REVEL Realty Inc., Brokerage
Board: Niagara Association of REALTORS®
Data provided via CREA DDF®.
Detailed Features
Exterior & Construction
- Sewer: Sanitary sewer
- Water: Municipal water
Lot & Land
- Frontage: 87 ft (26.5 m)
- Zoning: E1
Community & Neighbourhood
- Neighbourhood: 557 - Thorold Downtown
Listing Information
Listing History
Buy/Sell/Terminated/Expired listing history for 13 ST DAVIDS STREET W, Thorold (Thorold Downtown), Ontario, L2V2L1
Location & Neighborhood
🚗 Travel times
Neighborhood Walkability
Mortgage & Cost Calculators
Nearby Homes (Within 2km)
Similar Homes
Similar Properties
No rental comparables found in this area.
Sold Comparables
Access to sold property data requires a registered and verified account with TRREB DDF integration.
Coming SoonRented Comparables
Access to rented property data requires a registered and verified account with TRREB DDF integration.
Coming Soon































