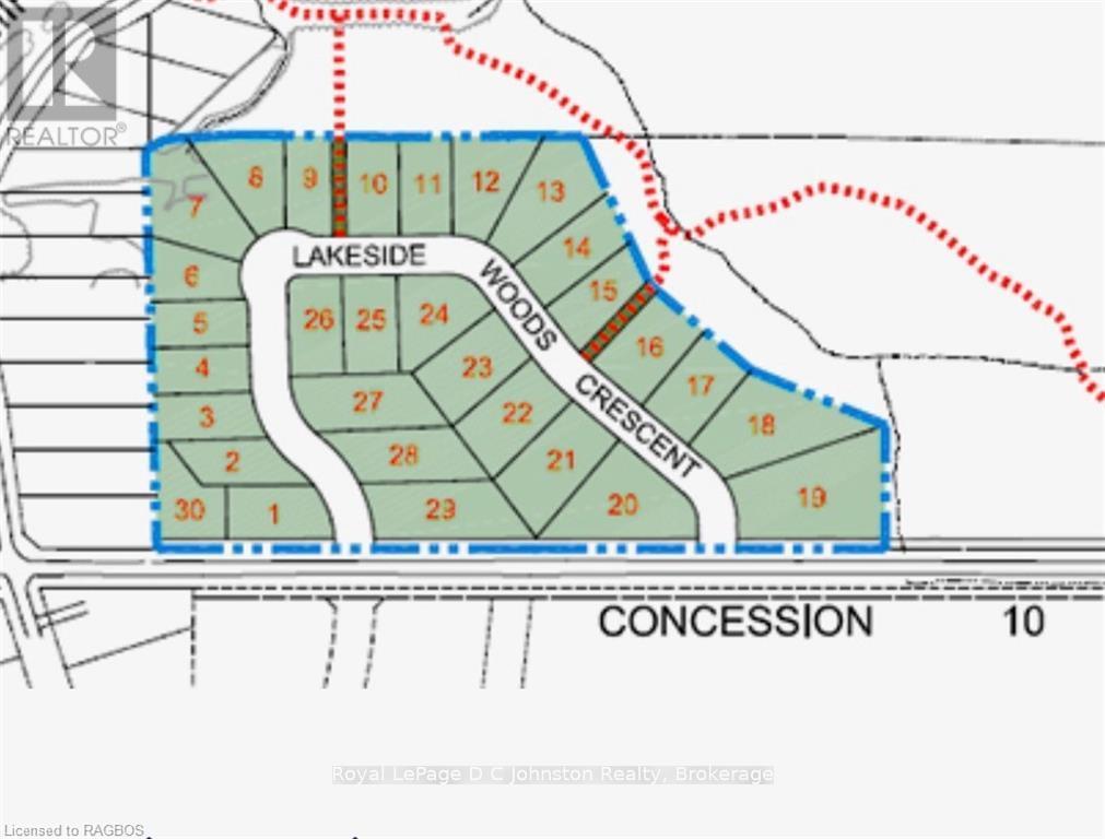
13 LAKESIDE WOODS CRESCENT, Saugeen Shores, Ontario, N0H2C6
MLS: X11952572 | Vacant Land
$424,900







Property Description
This fabulous 1/2 acre building site in beautiful Lakeside Woods is one of the last lots available to build on in this development. It offers an idyllic, treed location just steps to the beautiful shoreline of Lake Huron. Lakeside Woods is a neighbourhood designed with architectural guidelines and tree retention plans to ensure the perfect setting for your dream home. Spend endless hours hiking, cross country skiing or snowshoeing on the Woodland Trail system just outside your front door! You can also enjoy the ever-changing views of great Lake Huron from a paved cycling and walking trail that extends along the shore between Port Elgin and Southampton. This large pie shaped lot measures 24000 square feet. Services available include: municipal water, natural gas, electricity, fibre optic high speed Internet, and telephone. A septic system will be required. (id:64974)
Quick Facts
- Property Type: Vacant Land
- Bedrooms: None
- Bathrooms: 0
Costs
- Annual Taxes: $2,130.80 (2024)
Listing Provided by: Royal LePage D C Johnston Realty
Board: OnePoint Association of REALTORS®
Data provided via CREA DDF®.
Detailed Features
Interior & Systems
- Utilities: Electricity, Cable, Wireless
Exterior & Construction
- Sewer: Septic System
- Water: Municipal water
Lot & Land
- Features: Wooded area, Level
- Zoning: R1-2
Community & Neighbourhood
- Neighbourhood: Saugeen Shores
Listing Information
Listing History
Buy/Sell/Terminated/Expired listing history for 13 LAKESIDE WOODS CRESCENT, Saugeen Shores, Ontario, N0H2C6
Location & Neighborhood
🚗 Travel times
Neighborhood Walkability
Mortgage & Cost Calculators
Nearby Homes (Within 2km)
Similar Homes
Similar Properties
No rental comparables found in this area.
Sold Comparables
Access to sold property data requires a registered and verified account with TRREB DDF integration.
Coming SoonRented Comparables
Access to rented property data requires a registered and verified account with TRREB DDF integration.
Coming Soon






















