125 TREMBLE DRIVE, West Grey, Ontario, N0G1R0
MLS: X12942506 | Townhouse (Freehold)
$459,900



Property Description
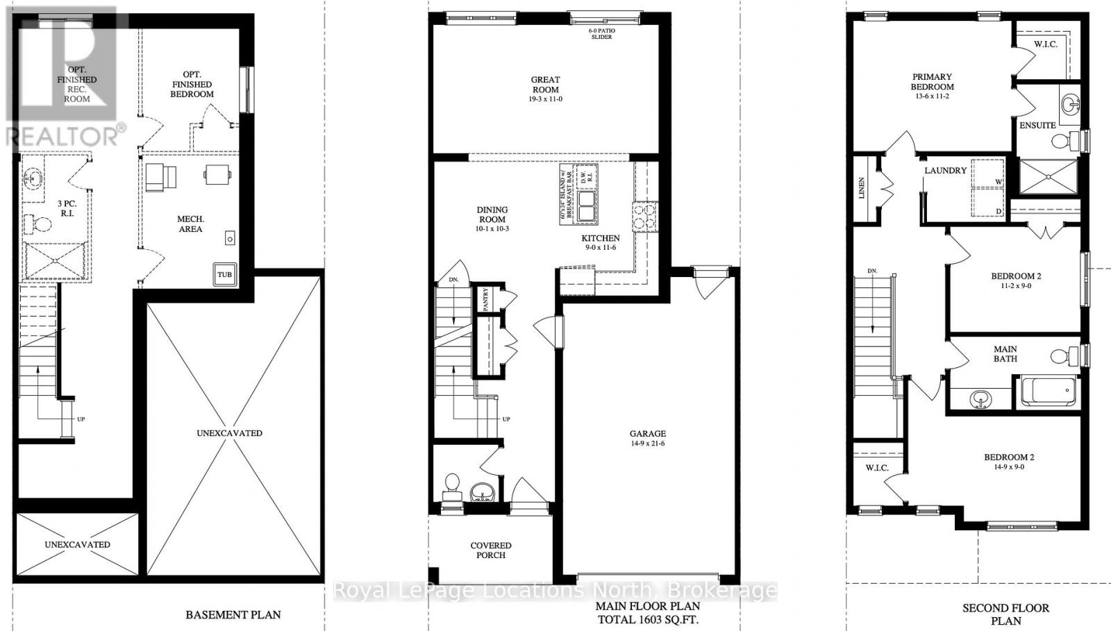
To be built! This 1,603 sq.ft., 3-bedroom, 2.5-bathroom townhome by Sunvale Homes is scheduled for completion in January 2027. Featuring 9-foot ceilings on the main level and a bright, functional layout, this home is designed for comfortable everyday living and entertaining. Buyers will enjoy the exciting opportunity to choose their own finishes, creating a space that reflects their personal style and preferences. Located in the desirable Carriage Crossing community in Durham, this growing neighbourhood combines small-town charm with everyday convenience. Surrounded by scenic trails, parks, and nearby rivers, and just minutes from local shops and recreation, it's perfect for families, first-time buyers, or anyone seeking a relaxed lifestyle Convenient access to Highway 6 makes commuting easy while allowing you to enjoy the peaceful setting of West Grey. Includes sod, garden package and paved driveway. This is the Millstone model. Additional closing costs apply. Price does not include HST. Buyers who qualify under the government rebate program, pending legislation, may be eligible for a full HST rebate. Purchasers must verify their eligibility directly with their own legal or financial advisors. Block 3 unit 13. (id:64974)
Quick Facts
- Property Type: Townhouse (Freehold)
- Bedrooms: 3 (3 above)
- Bathrooms: 3 (1 half)
- Ownership: Freehold
- Attached: Yes
- Parking: 3.0 spaces (Attached Garage, Garage)
- Frontage: 27 ft (8.1 m)
Listing Provided by: Royal LePage Locations North
Board: OnePoint Association of REALTORS®
Data provided via CREA DDF®.
Detailed Features
Interior & Systems
- Heating: Forced air, Natural gas
- Cooling: None
- Basement: Unfinished, Full
Exterior & Construction
- Exterior: Brick, Vinyl siding
- Foundation: Poured Concrete
- Sewer: Sanitary sewer
- Water: Municipal water
Lot & Land
- Frontage: 27 ft (8.1 m)
- Features: Sump Pump
Community & Neighbourhood
- Neighbourhood: West Grey
Listing Information
Listing History
MLS listing activity for 125 TREMBLE DRIVE, West Grey, Ontario, N0G1R0 — dates reflect when changes were recorded in the DDF
🚗 Travel times
Neighborhood Walkability
Mortgage & Cost Calculators
Nearby Homes ?Nearby Homes — Search CriteriaSearch Radius1 kmPrice Range±5%Match BedroomsYesMatch BathroomsYes

126 EMERSON WAY, West Grey
House$529,900
Listing Courtesy of Royal LePage Locations North

463 DURHAM ROAD E, West Grey
House$596,400
Listing Courtesy of Keller Williams Realty Centres

313634 HIGHWAY 6 HIGHWAY W, West Grey
House$639,000
$3,571/yr taxListing Courtesy of Royal LePage RCR Realty

150 DURHAM ROAD W, West Grey
Row / Townhouse$539,900
$3,110/yr taxListing Courtesy of Coldwell Banker Neumann Real Estate

150 MILL STREET, West Grey
House$449,900
Listing Courtesy of Century 21 Heritage House Ltd.

376 LAMBTON STREET, West Grey
House$599,000
$2,550/yr taxListing Courtesy of Wilfred McIntee & Co Limited

323135 DURHAM ROAD E, West Grey
House$899,000
$5,044/yr taxListing Courtesy of Century 21 Heritage House Ltd

403123 GREY ROAD 4 ROAD, West Grey
House$1,395,000
$6,933/yr taxListing Courtesy of Chestnut Park Real Estate
Similar Homes ?Similar Homes — Search CriteriaSearch Radius5 kmPrice Range±5%Match Home TypeYesMatch BedroomsYes

4 - 229 BRUCE STREET S, West Grey
Row / Townhouse$462,831
Listing Courtesy of Century 21 Heritage House Ltd.

UNIT 3 - 227 BRUCE STREET S, West Grey
Row / Townhouse$454,900
Listing Courtesy of Royal LePage Exchange Realty Co.

429 LAMBTON STREET W, West Grey
House$474,000
$1,860/yr taxListing Courtesy of Royal LePage RCR Realty

1740 SPRUCEWOOD AVENUE Unit# 208, LaSalle
Condo - Apartment$459,900
Listing Courtesy of DEERBROOK REALTY INC.

428 - 36 VIA BAGNATO, Toronto (Yorkdale-Glen Park)
Condo - Apartment$459,900
$2,421/yr taxListing Courtesy of RIGHT AT HOME REALTY

630 - 2 EVA ROAD, Toronto (Etobicoke West Mall)
Condo - Apartment$459,900
$2,493/yr taxListing Courtesy of SAM MCDADI REAL ESTATE INC.

2215 - 51 EAST LIBERTY STREET, Toronto (Niagara)
Condo - Apartment$459,900
$2,345/yr taxListing Courtesy of ROYAL LEPAGE SIGNATURE REALTY

2906 - 21 HILLCREST AVENUE, Toronto (Willowdale East)
Condo - Apartment$459,900
$2,292/yr taxListing Courtesy of HOMELIFE/BAYVIEW REALTY INC.

1304 - 330 PRINCE CHARLES DRIVE, Welland (Broadway)
Condo - Apartment$459,900
$3,347/yr taxListing Courtesy of RE/MAX NIAGARA REALTY LTD, BROKERAGE

72 ASH AVENUE PVT, Puslinch
Modular$459,900
$1,767/yr taxListing Courtesy of RE/MAX Real Estate Centre Inc.

209 - 149 CHURCH STREET, King (Schomberg)
Condo - Apartment$459,900
$2,270/yr taxListing Courtesy of ROYAL LEPAGE MAXIMUM REALTY

402 - 60 BAYCLIFFE CRESCENT, Brampton (Northwest Brampton)
Condo - Apartment$459,900
$2,906/yr taxListing Courtesy of CENTURY 21 PEOPLE'S CHOICE REALTY INC.

302 - 225 MALTA AVENUE, Brampton (Fletcher's Creek South)
Condo - Apartment$459,900
$1,728/yr taxListing Courtesy of INDEX REALTY BROKERAGE INC.

332 - 18 MONDEO DRIVE, Toronto (Dorset Park)
Condo - Apartment$459,900
$1,734/yr taxListing Courtesy of THE NOOK REALTY INC.

S612 - 455 FRONT STREET E, Toronto (Waterfront Communities)
Condo - Apartment$459,900
$2,194/yr taxListing Courtesy of RE/MAX CROSSROADS REALTY INC.
Similar Properties ?Active Comparables — Search CriteriaSearch Radius2 kmPrice Range±5%Match Home TypeYesMatch BedroomsYes

4 - 229 BRUCE STREET S, West Grey
Row / Townhouse$462,831
Listing Courtesy of Century 21 Heritage House Ltd.

UNIT 3 - 227 BRUCE STREET S, West Grey
Row / Townhouse$454,900
Listing Courtesy of Royal LePage Exchange Realty Co.

429 LAMBTON STREET W, West Grey
House$474,000
$1,860/yr taxListing Courtesy of Royal LePage RCR Realty
No rental comparables found in this area.
Sold Comparables
Access to sold property data requires a registered and verified account with TRREB DDF integration.
Coming SoonRented Comparables
Access to rented property data requires a registered and verified account with TRREB DDF integration.
Coming SoonBook a Viewing
125 TREMBLE DRIVE, West Grey, Ontario, N0G1R0
