1247 OLD 8 HIGHWAY, Hamilton, Ontario, L0R1Z0
MLS: X12972380 | House (Freehold)
$808,000































Property Description
An exceptional opportunity to acquire commercially zoned land in the heart of Sheffield, Ontario. Situated along a high visibility stretch of Old Highway 8, this expansive parcel offers flexible industrial/commercial zoning, making it ideal for a wide range of uses including warehousing, contractor yard, light manufacturing, equipment storage, or future development. The property benefits from excellent road frontage and easy access to nearby transportation routes, including Highway 401 and Highway 8, connecting Cambridge, Hamilton, and the wider Golden Horseshoe region. With limited industrial land inventory in the area, this site presents strong long-term investment potential or a perfect location for an owner-user seeking room to grow. (id:64974)
Quick Facts
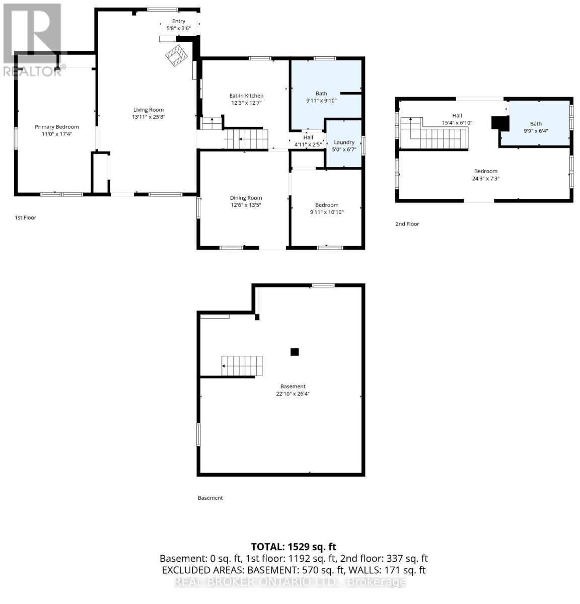
- Property Type: House (Freehold)
- Bedrooms: 3 (3 above)
- Bathrooms: 2
- Ownership: Freehold
- Attached: No
- Fireplaces: Yes
- Parking: 8.0 spaces (Attached Garage, Garage)
- Frontage: 124 ft (37.8 m)
Costs
- Annual Taxes: $5,049.00 (2026)
Listing Provided by: REAL BROKER ONTARIO LTD.
Board: Toronto Regional Real Estate Board
Data provided via CREA DDF®.
Detailed Features
Interior & Systems
- Heating: Forced air, Natural gas
- Cooling: None
- Basement: Unfinished, Full
- Appliances: All, Stove, Water Heater
- Utilities: Electricity, Cable
Exterior & Construction
- Exterior: Brick, Aluminum siding
- Foundation: Block
- Sewer: Septic System
- Water: Drilled Well
Lot & Land
- Frontage: 124 ft (37.8 m)
- Features: Level lot, Wooded area, Flat site
- View: View
Community & Neighbourhood
- Community: Community Centre
- Neighbourhood: Rural Flamborough
Listing Information
Listing History
MLS listing activity for 1247 OLD 8 HIGHWAY, Hamilton, Ontario, L0R1Z0 — dates reflect when changes were recorded in the DDF
🚗 Travel times
Neighborhood Walkability
Mortgage & Cost Calculators
Nearby Homes ?Nearby Homes — Search CriteriaSearch Radius1 kmPrice Range±5%Match BedroomsYesMatch BathroomsYes

1247 OLD HIGHWAY 8, Hamilton
House$808,000
$5,049/yr taxListing Courtesy of Real Broker Ontario Ltd.

1291 OLD HIGHWAY 8, Hamilton
House$2,400,000
$4,380/yr taxListing Courtesy of SAM MCDADI REAL ESTATE INC.
Similar Homes ?Similar Homes — Search CriteriaSearch Radius5 kmPrice Range±5%Match Home TypeYesMatch BedroomsYes

1247 OLD HIGHWAY 8, Hamilton
House$808,000
$5,049/yr taxListing Courtesy of Real Broker Ontario Ltd.

608 - 33 CHARLES STREET E, Toronto (Church-Yonge Corridor)
Condo - Apartment$808,000
$3,544/yr taxListing Courtesy of BOSLEY REAL ESTATE LTD.

60 52ND STREET S, Wasaga Beach
House$807,900
$987/yr taxListing Courtesy of Royal LePage Locations North

6 WINTER Way, Brantford
House$807,500
$5,424/yr taxListing Courtesy of Re/Max Twin City Realty Inc.

122 SHELTER COVE DRIVE, Westport
House$808,761
Listing Courtesy of RIDEAU REALTY LIMITED

LOT 12 HAMPTON LANE, Barrie (Ardagh)
House$809,000
Listing Courtesy of RE/MAX ELITE REAL ESTATE

25 STRODE DRIVE, Toronto (Eglinton East)
House$809,000
$3,951/yr taxListing Courtesy of RIGHT AT HOME REALTY

1008 - 20 SOUDAN AVENUE, Toronto (Mount Pleasant West)
Condo - Apartment$809,000
Listing Courtesy of RE/MAX ULTIMATE REALTY INC.

35 VENTURA LANE, Ajax (Central)
Row / Townhouse$809,000
$5,022/yr taxListing Courtesy of INTERNATIONAL REALTY FIRM, INC.

4703 - 20 SHORE BREEZE DRIVE, Toronto (Mimico)
Condo - Apartment$809,000
$4,615/yr taxListing Courtesy of TFN REALTY INC.

104 BILLINGTON CRESCENT, Toronto (Parkwoods-Donalda)
House$809,000
$4,404/yr taxListing Courtesy of ROYAL LEPAGE SIGNATURE REALTY

84 PINEWOOD PLACE, Deep River
House$807,000
$5,028/yr taxListing Courtesy of CENTURY 21 ASPIRE REALTY LTD.

112 KING Street E Unit# LPH7, Hamilton
Condo - Apartment$809,000
$10,465/yr taxListing Courtesy of RE/MAX Escarpment Golfi Realty Inc.

506 - 71 WYNDHAM STREET S, Guelph (St. Patrick's Ward)
Condo - Apartment$809,000
$5,353/yr taxListing Courtesy of RE/MAX ABOUTOWNE REALTY CORP.

28 LOCKHART COURT, Trent Hills (Warkworth)
House$807,000
$3,579/yr taxListing Courtesy of KELLER WILLIAMS ENERGY REAL ESTATE
Similar Properties ?Active Comparables — Search CriteriaSearch Radius2 kmPrice Range±5%Match Home TypeYesMatch BedroomsYes
No rental comparables found in this area.
Sold Comparables
Access to sold property data requires a registered and verified account with TRREB DDF integration.
Coming SoonRented Comparables
Access to rented property data requires a registered and verified account with TRREB DDF integration.
Coming SoonBook a Viewing
1247 OLD 8 HIGHWAY, Hamilton, Ontario, L0R1Z0
