1238 KINGSTON ROAD, Toronto (Birchcliffe-Cliffside), Ontario, M1N1P3
MLS: E12825472 | Retail
$22.00 / square feet


























Property Description
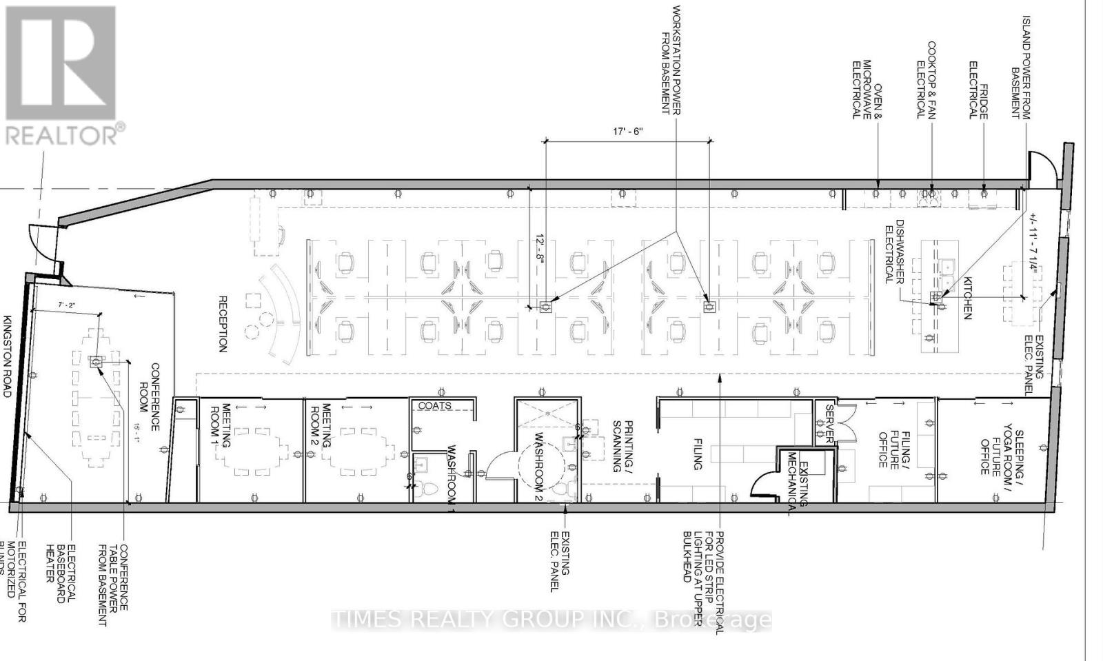
A clean, modern 3,500 sq ft commercial space offering a highly functional layout with a balance of open-concept areas and private rooms. The space is designed to accommodate a range of uses with minimal modification. Large open workspace suitable for office, showroom, school, fitness floor. Multiple enclosed rooms ideal for offices, treatment rooms, or meeting spaces. Glass boardroom / private offices allowing light to flow throughout. Dedicated reception / lounge area at entry. Kitchen / staff area. Two washrooms. High 14 foot ceilings and Extensive glazing providing strong natural light. Suit Professional office (legal, real estate, creative, tech), Showroom / studio with client-facing presentation areas, Spa / wellness clinic with multiple treatment rooms already defined, Fitness / movement studio (yoga, pilates, functional training), Hybrid workspace combining private consult rooms and open collaboration. Located on Kingston Road in the Upper Beaches, the space benefits from strong street presence and accessibility, making it suitable for both client-facing and operational businesses. Max 5 year lease. Demolition clause. Some photos are virtually staged. (id:64974)
Quick Facts
- Property Type: Retail
- Bedrooms: None
- Bathrooms: None
- Living Area: 3,500 sq ft (325.2 m²)
- Frontage: 30 ft (9.1 m)
Costs
- Annual Taxes: $14.00
Listing Provided by: TIMES REALTY GROUP INC.
Board: Toronto Regional Real Estate Board
Data provided via CREA DDF®.
Detailed Features
Interior & Systems
- Heating: Forced air, Natural gas
- Cooling: Fully air conditioned
Exterior & Construction
- Water: Municipal water
Lot & Land
- Frontage: 30 ft (9.1 m)
- Zoning: commercial
Community & Neighbourhood
- Neighbourhood: Birchcliffe-Cliffside
Listing Information
Listing History
Buy/Sell/Terminated/Expired listing history for 1238 KINGSTON ROAD, Toronto (Birchcliffe-Cliffside), Ontario, M1N1P3
Location & Neighborhood
🚗 Travel times
Neighborhood Walkability
Mortgage & Cost Calculators
Similar Properties
No active comparables found in this area.
Sold Comparables
Access to sold property data requires a registered and verified account with TRREB DDF integration.
Coming SoonRented Comparables
Access to rented property data requires a registered and verified account with TRREB DDF integration.
Coming Soon













