123 THORNTON AVENUE, London East (East B), Ontario, N5Y2Y6
MLS: X12935138 | House (Freehold)
$475,000











































Property Description
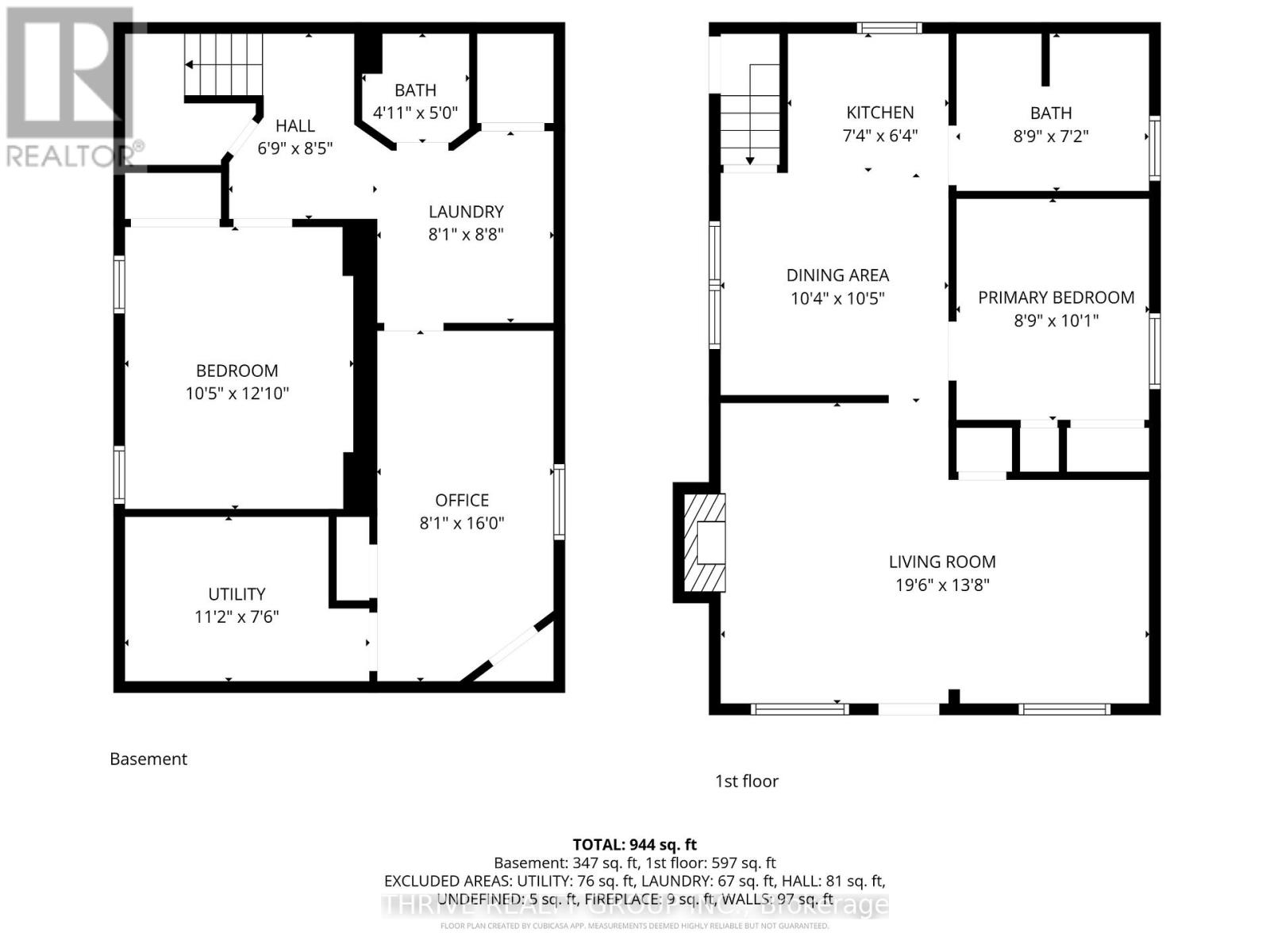
A charming bungalow in the heart of Old North, perfectly situated on a quiet street and just a short walk to local cafés, pubs, parks, and more. This inviting home offers the ideal blend of character, updates, and lifestyle. Step inside to find two separate living spaces, including a cozy front living room with a gas fireplace, perfect for relaxing evenings. The kitchen is functional and bright, featuring an eat-in dining area and views of the backyard. The main floor also includes a spacious primary bedroom with ample storage and a beautiful 4-piece bathroom. Downstairs, you'll find a finished lower level with two additional rooms and a 2-piece bathroom, offering flexibility for guests, a home office, or extra living space. Recent updates throughout the home provide peace of mind and modern comfort, including professionally installed engineered hardwood flooring (2026), updated bathroom finishes (2026), a new washer (2026), dryer (2025), and hot water heater (2026), fresh paint, new carpet, and keyless entry recently installed for your convenience. Other perks include forced/central air heating and cooling, modern windows (and lots of them), and newly installed front steps (2026). One of the best highlights: the deep 150-foot lot with fully fenced backyard - featuring a patio ideal for outdoor dining or lounging, a stunning magnolia tree, a fire pit area perfect for summer nights under the stars, and more than enough space for an addition. With parking for two cars and an unbeatable location, this home is perfect for first-time buyers, downsizers, or anyone looking to get into one of London's most sought-after neighbourhoods. Welcome home to Thornton Ave, one of the most comfortable and cozy streets in central London! (id:64974)
Quick Facts
- Property Type: House (Freehold)
- Style: Bungalow
- Bedrooms: 2 (1 above, 1 below)
- Bathrooms: 2 (1 half)
- Ownership: Freehold
- Attached: No
- Fireplaces: 1
- Parking: 2.0 spaces (No Garage)
- Frontage: 33 ft (10.1 m)
Costs
- Annual Taxes: $3,956.00 (2025)
Listing Provided by: THRIVE REALTY GROUP INC.
Board: London and St. Thomas Association of REALTORS®
Data provided via CREA DDF®.
Detailed Features
Interior & Systems
- Heating: Forced air, Natural gas
- Cooling: Central air conditioning
- Basement: Finished, N/A
- Appliances: Washer, Refrigerator, Stove, Dryer, Microwave
Exterior & Construction
- Style: Bungalow
- Exterior: Vinyl siding
- Foundation: Concrete
- Sewer: Sanitary sewer
- Water: Municipal water
Lot & Land
- Frontage: 33 ft (10.1 m)
- Zoning: R14
Community & Neighbourhood
- Building: Fireplace(s)
- Neighbourhood: East B
Listing Information
Listing History
MLS listing activity for 123 THORNTON AVENUE, London East (East B), Ontario, N5Y2Y6 — dates reflect when changes were recorded in the DDF
🚗 Travel times
Neighborhood Walkability
Mortgage & Cost Calculators
Nearby Homes ?Nearby Homes — Search CriteriaSearch Radius1 kmPrice Range±5%Match BedroomsYesMatch BathroomsYes

688 WILLIAM STREET, London East (East F)
House$474,900
$3,370/yr taxListing Courtesy of SAKER REALTY CORPORATION

908 MAITLAND STREET, London East (East B)
House$734,900
$6,806/yr taxListing Courtesy of SUTTON GROUP - SELECT REALTY

379 GROSVENOR STREET, London East (East B)
House$4,000/mo
Listing Courtesy of CENTURY 21 ATRIA REALTY INC.

379 GROSVENOR STREET, London East (East B)
House$749,900
$7,343/yr taxListing Courtesy of CENTURY 21 ATRIA REALTY INC.

945 COLBORNE STREET, London East (East B)
House$529,900
$4,124/yr taxListing Courtesy of RE/MAX ADVANTAGE REALTY LTD.

396 VICTORIA STREET, London East (East B)
House$1,098,000
$7,544/yr taxListing Courtesy of RE/MAX CENTRE CITY REALTY INC.

873 WILLIAM STREET, London East (East B)
House$649,900
$4,778/yr taxListing Courtesy of ONE PERCENT REALTY LTD.

908 WILLIAM STREET, London East (East B)
House$849,900
$6,437/yr taxListing Courtesy of THE REALTY FIRM INC.

BASEMENT - 877 WATERLOO STREET, London East (East B)
Other$1,850/mo
Listing Courtesy of ROYAL LEPAGE TRILAND REALTY

882.5 WILLIAM STREET, London East (East B)
House$549,900
$4,127/yr taxListing Courtesy of KELLER WILLIAMS LIFESTYLES

937 WATERLOO STREET, London East (East B)
House$989,900
$7,125/yr taxListing Courtesy of ROYAL LEPAGE TRILAND REALTY

991 COLBORNE STREET, London East (East B)
House$899,900
$6,035/yr taxListing Courtesy of COLDWELL BANKER POWER REALTY

858 WILLIAM STREET, London East (East B)
House$1,500,000
$5,250/yr taxListing Courtesy of CENTURY 21 FIRST CANADIAN CORP

1001 MAITLAND STREET, London East (East B)
House$4,650/mo
Listing Courtesy of REALTY ONE GROUP FLAGSHIP

598 ROSS STREET, London East (East C)
House$614,900
$3,034/yr taxListing Courtesy of OAK AND KEY REAL ESTATE BROKERAGE, INC.
Similar Homes ?Similar Homes — Search CriteriaSearch Radius5 kmPrice Range±5%Match Home TypeYesMatch BedroomsYes

119 CONNAUGHT AVENUE, London East (East G)
Single Family$475,000
$2,414/yr taxListing Courtesy of THE REALTY FIRM INC.

903 - 695 RICHMOND STREET, London East (East F)
Condo - Apartment$474,900
$2,749/yr taxListing Courtesy of CENTURY 21 FIRST CANADIAN CORP

688 WILLIAM STREET, London East (East F)
House$474,900
$3,370/yr taxListing Courtesy of SAKER REALTY CORPORATION

313 - 260 VILLAGEWALK BOULEVARD, London North (North R)
Condo - Apartment$469,900
$3,571/yr taxListing Courtesy of HOMELIFE LANDMARK REALTY INC.

1101 - 19 KING STREET, London East (East K)
Condo - Apartment$469,900
$5,314/yr taxListing Courtesy of RE/MAX ADVANTAGE REALTY LTD.

1235 RICHMOND Street Unit# 1807, London
Condo - Apartment$485,000
$3,269/yr taxListing Courtesy of Chestnut Park Realty Southwestern Ontario Ltd., Brokerage

1016 - 1235 RICHMOND STREET, London East (East B)
Condo - Apartment$489,000
$2,850/yr taxListing Courtesy of ROYAL LEPAGE SIGNATURE REALTY

901 - 240 VILLAGEWALK BOULEVARD, London North (North R)
Condo - Apartment$489,900
$3,520/yr taxListing Courtesy of RE/MAX ADVANTAGE REALTY LTD.

119 CONNAUGHT AVENUE, London East (East G)
House$459,900
$2,414/yr taxListing Courtesy of THE REALTY FIRM INC.

592 ROSEDALE STREET, London East (East F)
House$495,000
$3,403/yr taxListing Courtesy of KELLER WILLIAMS LIFESTYLES
Similar Properties ?Active Comparables — Search CriteriaSearch Radius2 kmPrice Range±5%Match Home TypeYesMatch BedroomsYes

903 - 695 RICHMOND STREET, London East (East F)
Condo - Apartment$474,900
$2,749/yr taxListing Courtesy of CENTURY 21 FIRST CANADIAN CORP

688 WILLIAM STREET, London East (East F)
House$474,900
$3,370/yr taxListing Courtesy of SAKER REALTY CORPORATION

1235 RICHMOND Street Unit# 1807, London
Condo - Apartment$485,000
$3,269/yr taxListing Courtesy of Chestnut Park Realty Southwestern Ontario Ltd., Brokerage

1016 - 1235 RICHMOND STREET, London East (East B)
Condo - Apartment$489,000
$2,850/yr taxListing Courtesy of ROYAL LEPAGE SIGNATURE REALTY

592 ROSEDALE STREET, London East (East F)
House$495,000
$3,403/yr taxListing Courtesy of KELLER WILLIAMS LIFESTYLES

2206 - 505 TALBOT STREET, London East (East F)
Condo - Apartment$3,099/mo
Listing Courtesy of NU-VISTA PINNACLE REALTY BROKERAGE INC

710 - 1235 RICHMOND STREET, London East (East B)
Condo - Apartment$2,550/mo
Listing Courtesy of CENTURY 21 FIRST CANADIAN CORP

201 - 425 DUNDAS STREET, London East (East G)
Other$2,250/mo
Listing Courtesy of ROYAL LEPAGE TRILAND REALTY

306 - 7 PICTON STREET, London East (East F)
Condo - Apartment$2,200/mo
Listing Courtesy of ROYAL LEPAGE TRILAND REALTY

308 - 460 WELLINGTON STREET, London East (East F)
Condo - Apartment$2,200/mo
Listing Courtesy of COLDWELL BANKER POWER REALTY

412 - 600 TALBOT STREET, London East (East F)
Condo - Apartment$2,099/mo
Listing Courtesy of CENTURY 21 FIRST CANADIAN CORP

305 - 155 KENT STREET, London East (East F)
Condo - Apartment$2,000/mo
Listing Courtesy of CENTURY 21 FIRST CANADIAN TRUSTED HOME REALTY INC.

407 - 155 KENT STREET, London East (East F)
Condo - Apartment$2,000/mo
Listing Courtesy of BLUE FOREST REALTY INC.
Sold Comparables
Access to sold property data requires a registered and verified account with TRREB DDF integration.
Coming SoonRented Comparables
Access to rented property data requires a registered and verified account with TRREB DDF integration.
Coming SoonBook a Viewing
123 THORNTON AVENUE, London East (East B), Ontario, N5Y2Y6
