120 MILL STREET, Champlain, Ontario, K0B1R0
MLS: X12923110 | House (Freehold)
$585,000



Property Description
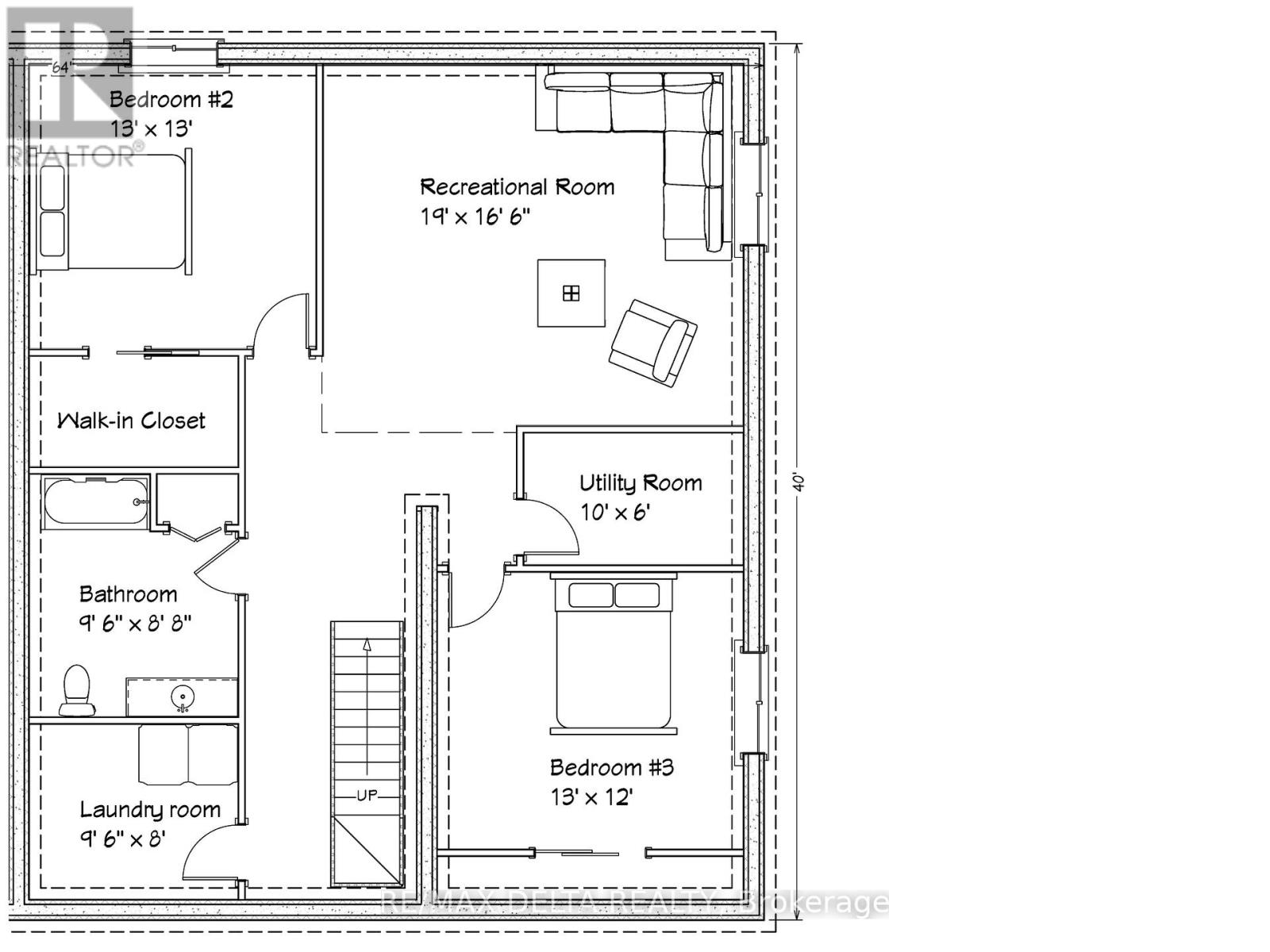
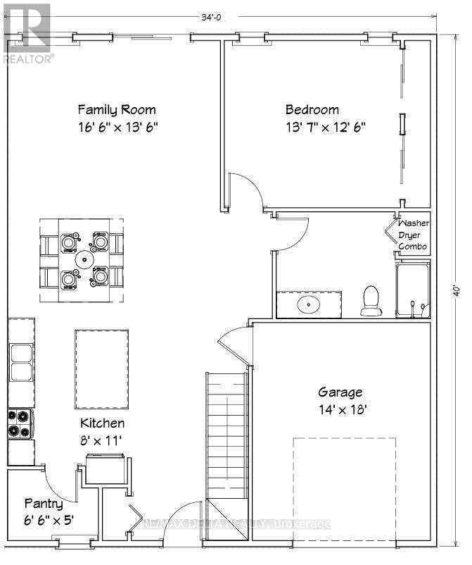
Your forever home is coming to life! This beautiful 1-bedroom semi-detached bungalow is being built in a well-established neighbourhood in picturesque Vankleek Hill. Quality construction and custom design make this one a great investment in your future. This forever home is designed with adaptable spaces that grow with you through every stage of life, providing enduring style, long-term comfort, convenience, and lasting value. Enjoy the spacious feel of 9' ceilings. Benefit from advanced, energy-efficient construction that keeps indoor temperatures comfortable year-round while dramatically reducing utility costs. High-performance foundation materials, modern insulation and low-solar windows will create a quieter, healthier living environment with long-term savings built right in. Open-concept main floor living includes: kitchen with granite counter-tops, LR, DR, main floor bedroom, a full bath and laundry. Unfinished basement: Designed to accommodate 2 additional bedrooms, large recreation room, full bath and second laundry. Quality materials, smart layout choices. The basement can be finished at an additional cost. Fully landscaped with 2-car paved driveway, natural gas central heating, central A/C, Automatic Garage Door Opener, Composite and Vinyl Siding. Tarion New Home Warranty. Note: HST is applicable to Sale Price. (id:64974)
Quick Facts
- Property Type: House (Freehold)
- Style: Raised bungalow
- Bedrooms: 1 (1 above)
- Bathrooms: 2
- Ownership: Freehold
- Attached: Yes
- Parking: 2.0 spaces (Attached Garage, Garage)
- Frontage: 40 ft (12.2 m)
Listing Provided by: RE/MAX DELTA REALTY
Board: Ottawa Real Estate Board
Data provided via CREA DDF®.
Detailed Features
Interior & Systems
- Heating: Forced air, Natural gas
- Cooling: Central air conditioning
- Basement: Unfinished, N/A
- Appliances: Water meter, Garage door opener remote(s)
- Utilities: Sewer, Electricity
Exterior & Construction
- Style: Raised bungalow
- Exterior: Vinyl siding
- Foundation: Insulated Concrete Forms
- Sewer: Sanitary sewer
- Water: Municipal water
Lot & Land
- Frontage: 40 ft (12.2 m)
- Features: Carpet Free
- Zoning: R2 - 15
Community & Neighbourhood
- Community: Community Centre
- Neighbourhood: 613 - Vankleek Hill
Room Details (3 rooms)
Listing Information
Listing History
MLS listing activity for 120 MILL STREET, Champlain, Ontario, K0B1R0 — dates reflect when changes were recorded in the DDF
🚗 Travel times
Neighborhood Walkability
Mortgage & Cost Calculators
Nearby Homes ?Nearby Homes — Search CriteriaSearch Radius1 kmPrice Range±5%Match BedroomsYesMatch BathroomsYes

46 MILL STREET, Champlain
House$315,000
$1,890/yr taxListing Courtesy of LPT REALTY

3 ARBER STREET, Champlain
House$764,900
$5,560/yr taxListing Courtesy of RE/MAX HALLMARK REALTY GROUP

100 PENDLETON STREET, Champlain
House$899,000
$5,677/yr taxListing Courtesy of RE/MAX DELTA REALTY

132 HIGH STREET, Champlain
House$775,000
$3,754/yr taxListing Courtesy of RE/MAX DELTA REALTY
Similar Homes ?Similar Homes — Search CriteriaSearch Radius5 kmPrice Range±5%Match Home TypeYesMatch BedroomsYes

1104 - 90 LANDRY STREET, Ottawa
Condo - Apartment$585,000
$4,351/yr taxListing Courtesy of ROYAL LEPAGE TEAM REALTY

22 DEARING DRIVE, South Huron (Stephen)
Row / Townhouse$585,000
$3,000/yr taxListing Courtesy of TEAM GLASSER REAL ESTATE BROKERAGE INC.

121 EDWARD STREET, Saugeen Shores
House$585,000
$3,216/yr taxListing Courtesy of Royal LePage D C Johnston Realty

519 - 9201 YONGE STREET, Richmond Hill (Langstaff)
Condo - Apartment$585,000
$2,720/yr taxListing Courtesy of TFN REALTY INC.

2515 - 319 JARVIS STREET, Toronto (Moss Park)
Condo - Apartment$585,000
$4,393/yr taxListing Courtesy of CENTURY 21 ATRIA REALTY INC.

SPH22 - 600 QUEENS QUAY W, Toronto (Waterfront Communities)
Condo - Apartment$585,000
$2,458/yr taxListing Courtesy of SOTHEBY'S INTERNATIONAL REALTY CANADA

2015 - 460 ADELAIDE STREET E, Toronto (Moss Park)
Condo - Apartment$585,000
$2,881/yr taxListing Courtesy of RE/MAX METROPOLIS REALTY

15 - 111 KING STREET E, Ingersoll (Ingersoll - South)
Row / Townhouse$585,000
$3,672/yr taxListing Courtesy of RE/MAX a-b Realty Ltd Brokerage

701 - 9245 JANE STREET, Vaughan (Maple)
Condo - Apartment$585,000
$2,900/yr taxListing Courtesy of RIGHT AT HOME REALTY

904 - 5 ST JOSEPH STREET, Toronto (Bay Street Corridor)
Condo - Apartment$585,000
$3,250/yr taxListing Courtesy of RE/MAX HALLMARK YORK GROUP REALTY LTD.

202 - 300 CROFT STREET, Port Hope
Condo - Apartment$585,000
$3,868/yr taxListing Courtesy of ROYAL LEPAGE PROALLIANCE REALTY

2607 - 2908 HIGHWAY 7 ROAD, Vaughan (Concord)
Condo - Apartment$585,000
$2,865/yr taxListing Courtesy of RE/MAX EXCEL REALTY LTD.

520 - 12 WOODSTREAM BOULEVARD, Vaughan (Vaughan Grove)
Condo - Apartment$585,000
$2,528/yr taxListing Courtesy of REALTY WEALTH GROUP INC.

509 - 16 MCADAM AVENUE, Toronto (Yorkdale-Glen Park)
Condo - Apartment$585,000
$3,160/yr taxListing Courtesy of SUTTON GROUP-ADMIRAL REALTY INC.

UNIT # 3201 - 300 CROFT STREET, Port Hope
Condo - Row / Townhouse$585,000
$3,946/yr taxListing Courtesy of Royal LePage Our Neighbourhood Realty
Similar Properties ?Active Comparables — Search CriteriaSearch Radius2 kmPrice Range±5%Match Home TypeYesMatch BedroomsYes
No active comparables found in this area.
No rental comparables found in this area.
Sold Comparables
Access to sold property data requires a registered and verified account with TRREB DDF integration.
Coming SoonRented Comparables
Access to rented property data requires a registered and verified account with TRREB DDF integration.
Coming SoonBook a Viewing
120 MILL STREET, Champlain, Ontario, K0B1R0
