12 WHITE OWL Crescent, Brantford, Ontario, N3P1A2
MLS: 40812813 | House (Freehold)
$485,000



































Property Description
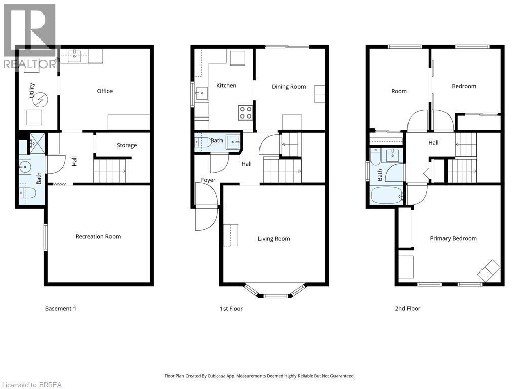
Welcome to 12 White Owl Crescent, a home with so much potential, featuring 2 bedrooms plus a den, (previously was third bedroom and can be converted back,) and 3 bathrooms in Brantford’s desirable North End. This semi-detached home offers bright living spaces with a large bay window in the front living room, sliding doors off the dining room leading to the deck, and a finished basement with additional living space ideal for lounging, a home office or flex area, and a convenient wet bar with cabinetry. The main level includes a 2-piece powder room, the upper level is complete with a full 4-piece bathroom, and the basement offers a 3-piece bath, making this home well-suited for everyday living and growing families. The large backyard is a standout feature—perfect for kids, dogs, outdoor play, and future family plans. With major updates completed in the last five years, including windows, roof, furnace, A/C, and driveway, you can move in with confidence while adding your own personal touches over time. A fantastic opportunity for first-time buyers or a young family looking to settle into a friendly, convenient North End community. (id:64974)
Quick Facts
- Property Type: House (Freehold)
- Style: 2 Level
- Bedrooms: 2 (2 above)
- Bathrooms: 3 (1 half)
- Living Area: 1,165 sq ft (108.2 m²)
- Above Grade: 1,165 sq ft (108.2 m²)
- Ownership: Freehold
- Attached: Yes
- Parking: 2.0 spaces
- Frontage: 28 ft (8.5 m)
Costs
- Annual Taxes: $2,857.80
Listing Provided by: Re/Max Twin City Realty Inc.
Board: Brantford Regional Real Estate Assn Inc
Data provided via CREA DDF®.
Detailed Features
Interior & Systems
- Heating: Forced air
- Cooling: Central air conditioning
- Basement: Finished, Full
- Appliances: Washer, Refrigerator, Dishwasher, Stove, Dryer
Exterior & Construction
- Style: 2 Level
- Exterior: Aluminum siding, Other, Brick Veneer
- Sewer: Municipal sewage system
- Water: Municipal water
Lot & Land
- Frontage: 28 ft (8.5 m)
- Zoning: R2
Community & Neighbourhood
- Subdivision: 2018 - Brantwood Park
Room Details (14 rooms)
Listing Information
Listing History
MLS listing activity for 12 WHITE OWL Crescent, Brantford, Ontario, N3P1A2 — dates reflect when changes were recorded in the DDF
🚗 Travel times
Neighborhood Walkability
Mortgage & Cost Calculators
Nearby Homes ?Nearby Homes — Search CriteriaSearch Radius1 kmPrice Range±5%Match BedroomsYesMatch BathroomsYes

12 WHITE OWL CRESCENT, Brantford
House$485,000
$2,858/yr taxListing Courtesy of RE/MAX TWIN CITY REALTY INC.

677 PARK Road N Unit# 141, Brantford
Condo - Row / Townhouse$494,900
$3,984/yr taxListing Courtesy of Re/Max Twin City Realty Inc

31 COXWELL Crescent, Brantford
House$699,975
$4,686/yr taxListing Courtesy of Century 21 Heritage House LTD

84 VISCOUNT ROAD, Brantford
House$894,900
$5,200/yr taxListing Courtesy of RE/MAX REAL ESTATE CENTRE INC.

104 VISCOUNT Road, Brantford
House$779,900
$4,394/yr taxListing Courtesy of Re/Max Twin City Realty Inc.

9 INGLEWOOD Street, Brantford
House$625,000
$3,780/yr taxListing Courtesy of RE/MAX Escarpment Realty Inc.

26 HALLMARK Street, Brantford
House$609,995
$3,856/yr taxListing Courtesy of Peak Realty Ltd.

27 JASPER Street, Brantford
House$599,900
$3,780/yr taxListing Courtesy of Century 21 Heritage House Ltd

D2 - 12 BRANTWOOD PARK ROAD, Brantford
Condo - Row / Townhouse$524,900
$3,749/yr taxListing Courtesy of RE/MAX TWIN CITY REALTY INC.

12 BRANTWOOD PARK Road Unit# D2, Brantford
Condo - Row / Townhouse$524,900
$3,749/yr taxListing Courtesy of Re/Max Twin City Realty Inc

76 ENFIELD Crescent, Brantford
House$719,900
$4,748/yr taxListing Courtesy of Century 21 Heritage House LTD

179 BANBURY Road, Brantford
House$729,999
$4,579/yr taxListing Courtesy of Century 21 Heritage House Ltd

179 BANBURY ROAD, Brantford
House$729,999
$4,579/yr taxListing Courtesy of CENTURY 21 HERITAGE HOUSE LTD

655 PARK Road N Unit# 48, Brantford
Condo - Row / Townhouse$649,900
$6,515/yr taxListing Courtesy of Revel Realty Inc

117 GILLIN Road, Brantford
House$849,000
$6,468/yr taxListing Courtesy of RE/MAX Escarpment Realty Inc.
Similar Homes ?Similar Homes — Search CriteriaSearch Radius5 kmPrice Range±5%Match Home TypeYesMatch BedroomsYes

12 WHITE OWL CRESCENT, Brantford
House$485,000
$2,858/yr taxListing Courtesy of RE/MAX TWIN CITY REALTY INC.

677 PARK Road N Unit# 141, Brantford
Condo - Row / Townhouse$494,900
$3,984/yr taxListing Courtesy of Re/Max Twin City Realty Inc

213 ELGIN Street, Brantford
House$474,900
$2,212/yr taxListing Courtesy of Coldwell Banker Homefront Realty

10 - 550 GREY STREET W, Brantford
Row / Townhouse$499,888
$4,438/yr taxListing Courtesy of ORIGIN COLLECTIVE REALTY LTD.

303 - 34 NORMAN STREET, Brantford
Condo - Apartment$505,000
$2,750/yr taxListing Courtesy of HONESTDOOR INC.
Similar Properties ?Active Comparables — Search CriteriaSearch Radius2 kmPrice Range±5%Match Home TypeYesMatch BedroomsYes

12 WHITE OWL CRESCENT, Brantford
House$485,000
$2,858/yr taxListing Courtesy of RE/MAX TWIN CITY REALTY INC.

677 PARK Road N Unit# 141, Brantford
Condo - Row / Townhouse$494,900
$3,984/yr taxListing Courtesy of Re/Max Twin City Realty Inc
No rental comparables found in this area.
Sold Comparables
Access to sold property data requires a registered and verified account with TRREB DDF integration.
Coming SoonRented Comparables
Access to rented property data requires a registered and verified account with TRREB DDF integration.
Coming SoonBook a Viewing
12 WHITE OWL Crescent, Brantford, Ontario, N3P1A2
