12 SEA QUEEN Road, Port Rowan, Ontario, N0E1M0
MLS: 40743708 | Duplex (Freehold)
$699,000






















Property Description
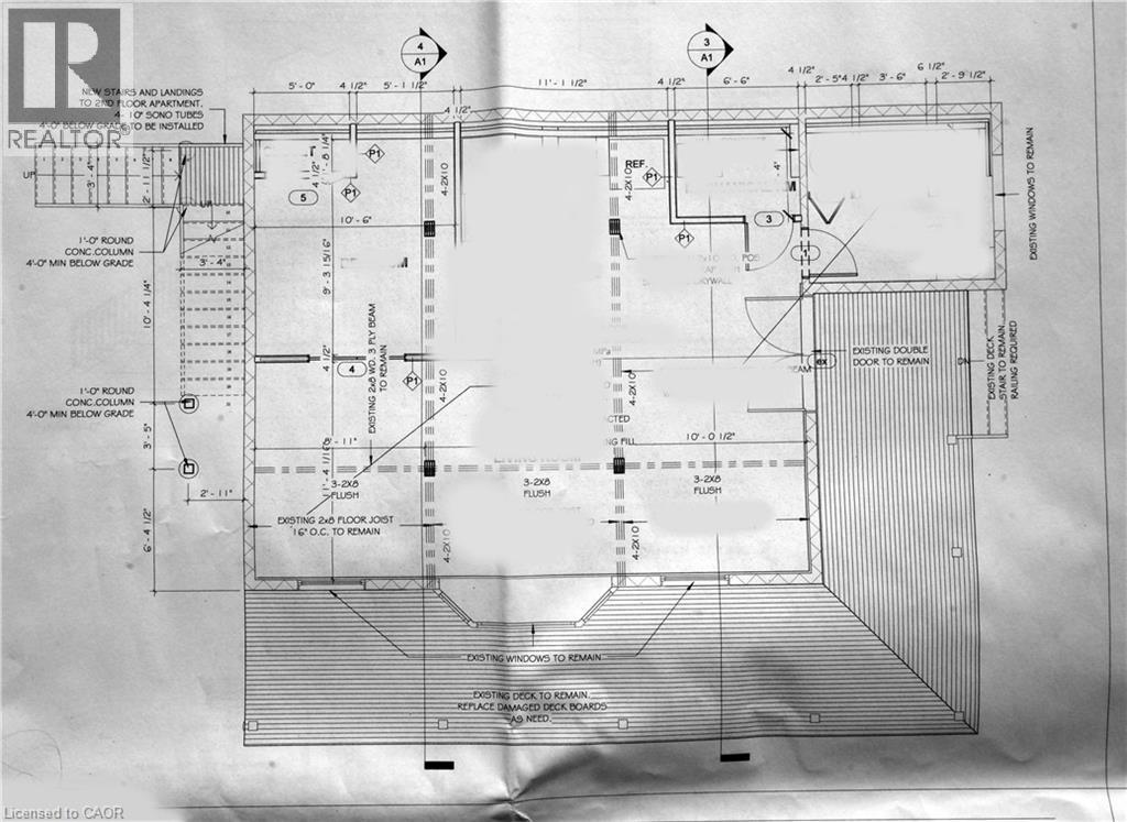
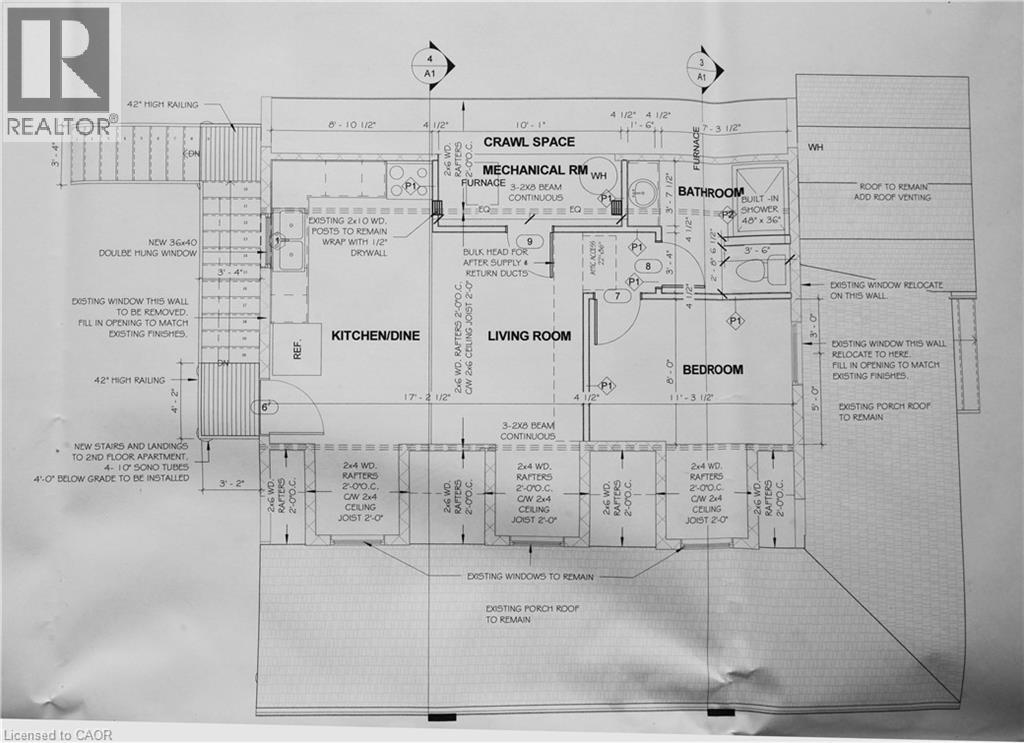
WATERFRONT DUPLEX with commercial unit on the main floor and one bedroom residential unit above, both with stunning water views. The duplex sits on a 107 ft. wide lot and is ready for finishing touches - already framed, partially wired and plumbed with furnaces on site. Serviced with municipal water, two hydro meters and natural gas with sanitary sewer at the lot line. Separate laundry/utility room (10'x9') with own access that can be shared between lower and upper unit. Metal exterior staircase to upper apartment. Lower level is 30' x 25' and features Bay window and covered front porch. Property adjacent to a park with the harbour in front. Finish this beauty and live upstairs and run a business below or make this your next waterfront investment. Zoning allows for plenty of options! Can be purchased with adjoining property at 10 & 11 Sea Queen. (id:64974)
Quick Facts
- Property Type: Duplex (Freehold)
- Bedrooms: 2
- Bathrooms: 2
- Living Area: 1,300 sq ft (120.8 m²)
- Above Grade: 1,300 sq ft (120.8 m²)
- Ownership: Freehold
- Attached: Yes
- Parking: 3 spaces
- Frontage: 107 ft (32.6 m)
Costs
- Annual Taxes: $4,368.00
Listing Provided by: GOLD COAST REAL ESTATE LTD. BROKERAGE
Board: Cornerstone Association of REALTORS®
Data provided via CREA DDF®.
Detailed Features
Interior & Systems
- Heating: Forced air, Natural gas
- Cooling: None
- Basement: None
Exterior & Construction
- Exterior: Hardboard
- Sewer: Municipal sewage system
- Water: Municipal water
Lot & Land
- Frontage: 107 ft (32.6 m)
- Features: Cul-de-sac, Southern exposure
- View: Direct Water View
- Waterfront: Waterfront
- Water Body: Lake Erie
- Zoning: CM(H) & 14.397
Community & Neighbourhood
- Community: Quiet Area, High Traffic Area
- Subdivision: Port Rowan
Listing Information
Listing History
Buy/Sell/Terminated/Expired listing history for 12 SEA QUEEN Road, Port Rowan, Ontario, N0E1M0
Location & Neighborhood
🚗 Travel times
Neighborhood Walkability
Mortgage & Cost Calculators
Similar Homes
Similar Properties
No rental comparables found in this area.
Sold Comparables
Access to sold property data requires a registered and verified account with TRREB DDF integration.
Coming SoonRented Comparables
Access to rented property data requires a registered and verified account with TRREB DDF integration.
Coming Soon
























