12 COURTNEY CRESCENT, Welland (N. Welland), Ontario, L3C7H9
MLS: X12967342 | House (Freehold)
$649,900





























Property Description
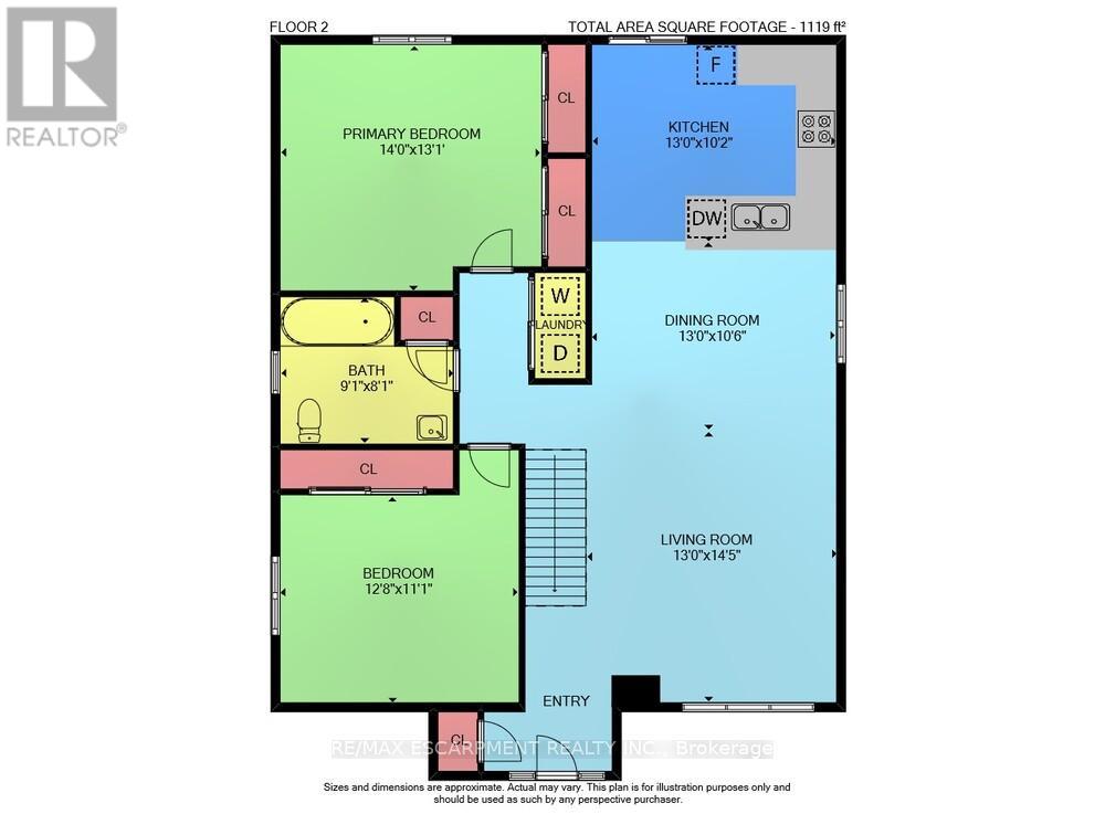
COMFORTABLE FAMILY LIVING...Thoughtfully maintained by original owners, 12 Courtney Crescent in Welland is a FULLY FINISHED BUNGALOW that offers a functional layout, quality updates, and everyday comfort. A covered porch welcomes you into the bright foyer with coat closet and convenient inside access from attached garage. Main level has been freshly painted and features hardwood flooring throughout the OPEN CONCEPT living & dining area, creating a warm and inviting space. The kitchen is well-appointed w/ceramic tile floor, breakfast peninsula for casual seating, and a full appliance package including fridge, stove, built-in microwave & dishwasher. Wood grain cabinetry paired w/glass backsplash adds a clean, modern touch. Updated windows (2025 glass) enhance natural light and overall efficiency. Step outside the sliding doors to a TWO-TIERED DECK overlooking a partially fenced yard w/BONUS Rubbermaid shed. Inside, the main floor continues to impress w/a spacious primary bedroom w/laminate flooring featuring DOUBLE CLOSETS, and convenient MF laundry. A 4-pc bath offers linen & broom storage, w/a tub that has been modified but can be converted back if desired. A second bedroom provides a generous closet & laminate flooring, consistent throughout bedrooms. The FULLY FINISHED lower level expands your living space w/a massive FAMILY ROOM anchored by an electric fireplace, PLUS 3-pc bath, laminate flooring & versatile bonus room (currently staged as an office), adding flexibility for growing families or those working from home. ADDITIONAL FEATURES include central vac, furnace & A/C (2004), roof (2017), driveway (2025) & sump pump w/battery backup for added peace of mind. A well-rounded home offering space, function, and long-term value in a great Welland location ~ close to the Welland Canal, shopping, Niagara College, hospital & easy highway access. Note - there is an easement for community drainage. CLICK ON MULTIMEDIA for virtual tour, drone photos, floor plans & more. (id:64974)
Quick Facts
- Property Type: House (Freehold)
- Style: Bungalow
- Bedrooms: 2 (2 above)
- Bathrooms: 2
- Ownership: Freehold
- Attached: No
- Fireplaces: 1
- Parking: 5.0 spaces (Attached Garage, Garage)
- Frontage: 40 ft (12.3 m)
Costs
- Annual Taxes: $4,582.78 (2026)
Listing Provided by: RE/MAX ESCARPMENT REALTY INC.
Board: Toronto Regional Real Estate Board
Data provided via CREA DDF®.
Detailed Features
Interior & Systems
- Heating: Forced air, Natural gas
- Cooling: Central air conditioning
- Basement: Finished, Full
- Appliances: Washer, Refrigerator, Satellite Dish, Central Vacuum, Dishwasher, Stove, Dryer, Microwave, Window Coverings, Garage door opener, Water Heater
- Utilities: Sewer, Electricity, Cable
Exterior & Construction
- Style: Bungalow
- Exterior: Vinyl siding, Brick Veneer
- Foundation: Poured Concrete
- Sewer: Sanitary sewer
- Water: Municipal water
Lot & Land
- Frontage: 40 ft (12.3 m)
- Features: Sump Pump
- Zoning: RL2-1
Community & Neighbourhood
- Community: Community Centre
- Building: Fireplace(s)
- Neighbourhood: 767 - N. Welland
Room Details (11 rooms)
Listing Information
Listing History
MLS listing activity for 12 COURTNEY CRESCENT, Welland (N. Welland), Ontario, L3C7H9 — dates reflect when changes were recorded in the DDF
🚗 Travel times
Neighborhood Walkability
Mortgage & Cost Calculators
Nearby Homes ?Nearby Homes — Search CriteriaSearch Radius1 kmPrice Range±5%Match BedroomsYesMatch BathroomsYes

12 COURTNEY Crescent, Welland
House$649,900
$4,583/yr taxListing Courtesy of RE/MAX Escarpment Realty Inc.

5 HOPKINS STREET, Thorold (Hurricane/Merrittville)
House$1,090,000
$8,317/yr taxListing Courtesy of AKARAT GROUP INC.

375 ST LAWRENCE DRIVE, Welland (N. Welland)
House$679,900
$5,153/yr taxListing Courtesy of ROYAL LEPAGE FRANK REAL ESTATE

36 ALICIA CRESCENT, Thorold (Hurricane/Merrittville)
House$859,900
$6,365/yr taxListing Courtesy of COLDWELL BANKER COMMUNITY PROFESSIONALS

36 ALICIA Crescent, Thorold
House$859,900
$6,365/yr taxListing Courtesy of Coldwell Banker Community Professionals

51 ALICIA Crescent, Thorold
House$879,000
$0/yr taxListing Courtesy of eXp Realty (Team Branch)

51 ALICIA CRESCENT, Thorold (Hurricane/Merrittville)
House$879,000
Listing Courtesy of EXP REALTY

111 ALICIA Crescent, Thorold
Row / Townhouse$635,000
$1/yr taxListing Courtesy of Right at Home Realty

5 SECORD STREET, Thorold (Hurricane/Merrittville)
House$879,000
$5,591/yr taxListing Courtesy of CENTURY 21 PEOPLE'S CHOICE REALTY INC.

MAIN - 25 WILKERSON STREET, Thorold (Hurricane/Merrittville)
House$2,950/mo
Listing Courtesy of HOMELIFE/FUTURE REALTY INC.

BSMT - 25 WILKERSON STREET, Thorold (Hurricane/Merrittville)
House$1,650/mo
Listing Courtesy of HOMELIFE/FUTURE REALTY INC.

25 MCFARLAND STREET, Thorold (Hurricane/Merrittville)
House$869,900
$5,904/yr taxListing Courtesy of ROYAL LEPAGE NRC REALTY

29 QUAKER Road, Welland
House$625,000
$4,488/yr taxListing Courtesy of RE/MAX Escarpment Realty Inc.

29 QUAKER ROAD, Welland (N. Welland)
House$625,000
$4,488/yr taxListing Courtesy of RE/MAX ESCARPMENT REALTY INC.

3 SWART LANE, Thorold (Hurricane/Merrittville)
Row / Townhouse$650,000
$4,780/yr taxListing Courtesy of RIGHT AT HOME REALTY
Similar Homes ?Similar Homes — Search CriteriaSearch Radius5 kmPrice Range±5%Match Home TypeYesMatch BedroomsYes

12 COURTNEY Crescent, Welland
House$649,900
$4,583/yr taxListing Courtesy of RE/MAX Escarpment Realty Inc.

314 - 980 YONGE STREET, Toronto (Annex)
Condo - Apartment$649,900
$3,175/yr taxListing Courtesy of FOREST HILL REAL ESTATE INC.

619 - 825 CHURCH STREET, Toronto (Rosedale-Moore Park)
Condo - Apartment$649,900
$4,253/yr taxListing Courtesy of ROYAL LEPAGE SUPREME REALTY

192 MILL, Lakeshore
House$649,900
Listing Courtesy of DEERBROOK PLUS REALTY INC

2183 ASPHODEL 5 LINE, Asphodel-Norwood
House$649,900
$3,635/yr taxListing Courtesy of KIC REALTY

1201 DUNDAS Street E Unit# 902, Toronto
Condo - Apartment$649,900
$2,669/yr taxListing Courtesy of Royal LePage Burloak Real Estate Services

30 SERENITY PLACE, Huntsville (Chaffey)
Row / Townhouse$649,900
$4,801/yr taxListing Courtesy of RE/MAX Professionals North

902 - 1201 DUNDAS STREET E, Toronto (South Riverdale)
Condo - Apartment$649,900
$2,669/yr taxListing Courtesy of ROYAL LEPAGE BURLOAK REAL ESTATE SERVICES

868 - 135 LOWER SHERBOURNE STREET W, Toronto (Moss Park)
Condo - Apartment$649,900
$3,591/yr taxListing Courtesy of HOMELIFE/BAYVIEW REALTY INC.

1107 - 319 JARVIS STREET, Toronto (Church-Yonge Corridor)
Condo - Apartment$649,900
$4,276/yr taxListing Courtesy of SAM MCDADI REAL ESTATE INC.

180 George Street Unit# PH208, Ottawa
Condo - Apartment$649,900
Listing Courtesy of RE/MAX SUDBURY INC., BROKERAGE

2302 - 7 MABELLE AVENUE, Toronto (Islington-City Centre West)
Condo - Apartment$649,900
$2,836/yr taxListing Courtesy of REAL BROKER ONTARIO LTD.

655 PARK Road N Unit# 48, Brantford
Condo - Row / Townhouse$649,900
$6,515/yr taxListing Courtesy of Revel Realty Inc

704 - 223 PRINCESS STREET, Kingston (East of Sir John A. Blvd)
Condo - Apartment$649,900
Listing Courtesy of ROYAL LEPAGE PROALLIANCE REALTY, BROKERAGE

86 - 2245 BUR OAK AVENUE, Markham (Greensborough)
Condo - Row / Townhouse$649,900
$2,744/yr taxListing Courtesy of GALLO REAL ESTATE LTD.
Similar Properties ?Active Comparables — Search CriteriaSearch Radius2 kmPrice Range±5%Match Home TypeYesMatch BedroomsYes
Sold Comparables
Access to sold property data requires a registered and verified account with TRREB DDF integration.
Coming SoonRented Comparables
Access to rented property data requires a registered and verified account with TRREB DDF integration.
Coming SoonBook a Viewing
12 COURTNEY CRESCENT, Welland (N. Welland), Ontario, L3C7H9

