119 CELINA STREET, Oshawa (Central), Ontario, L1H4N3
MLS: E12684158 | Retail
$799,900













Property Description
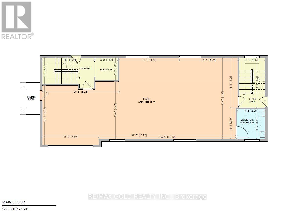
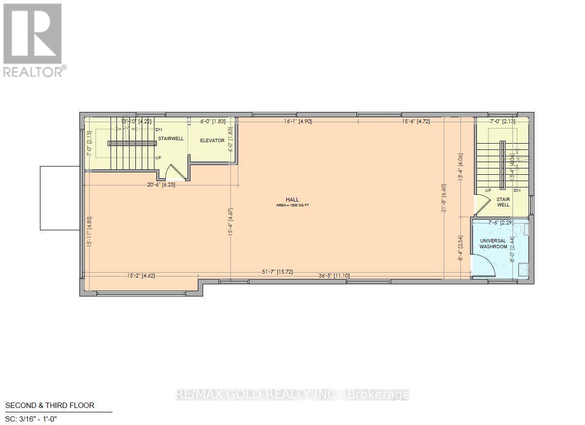
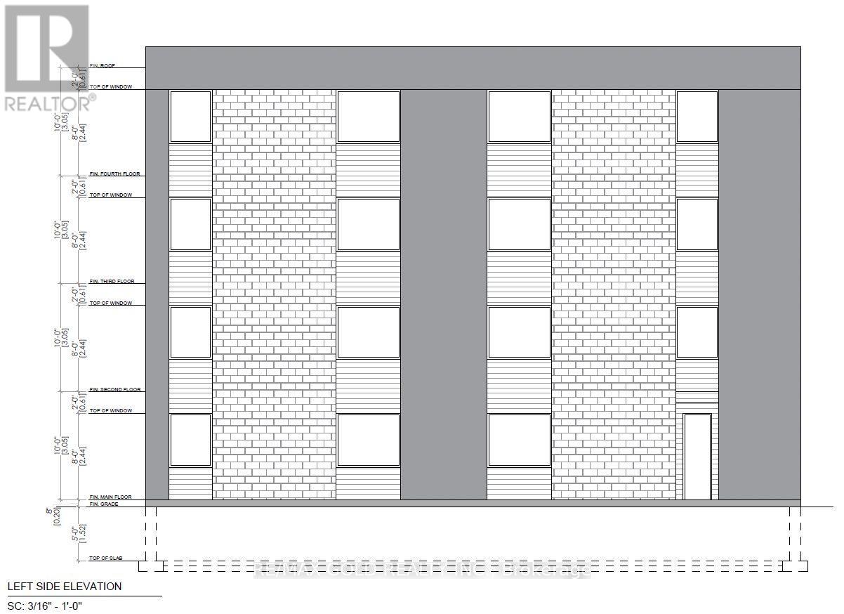
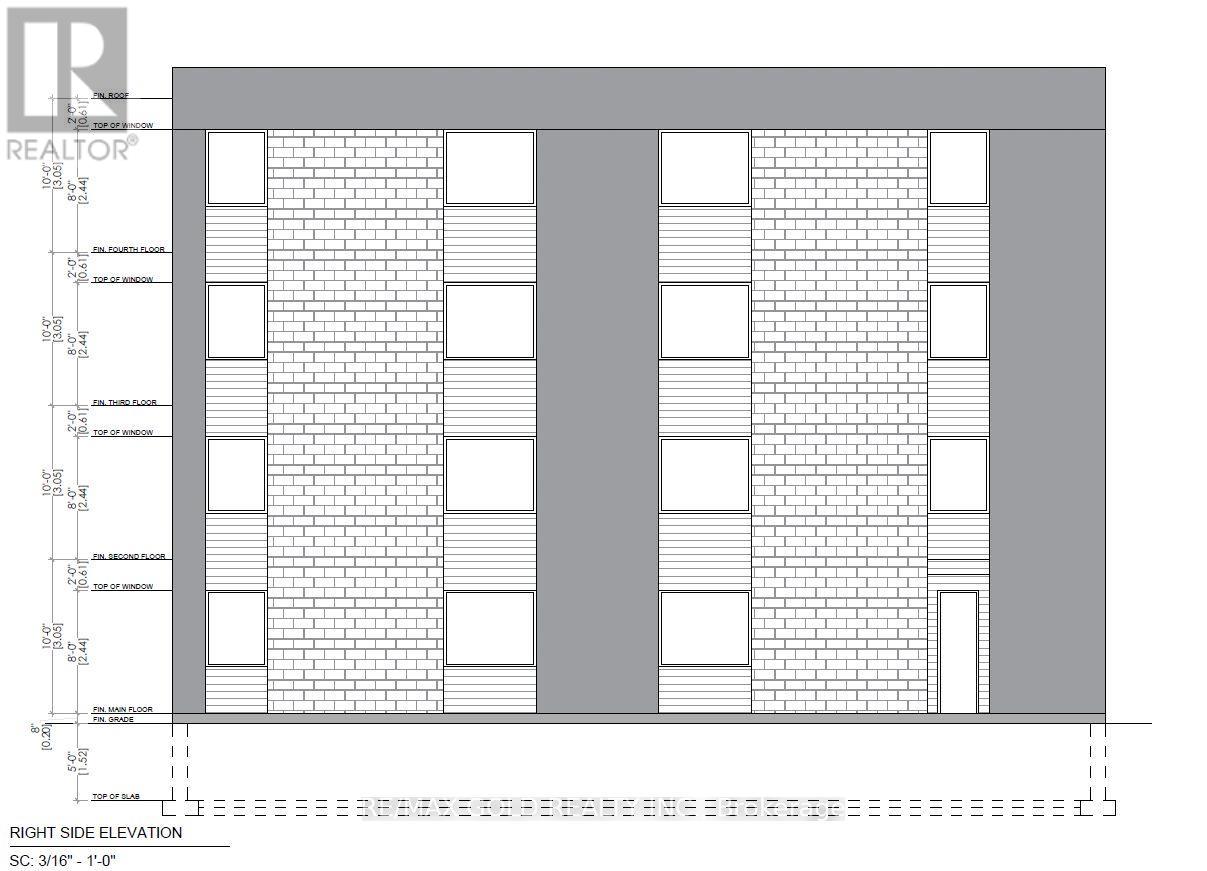
Prime Commercial Development Opportunity in Oshawa. This property offers approved zoning and is designed as a highly versatile open-shell space, accommodating a broad range of uses including retail, professional offices, medical, fitness, and specialty services. Zoned UGC-B (Urban Growth Centre) with additional flexible zoning options (R2/R3A/R6B), the site presents an excellent opportunity for development. Featuring a 41.25-foot frontage lot, the property benefits from outstanding exposure and strong visibility in a prime location near Simcoe Street, Durham College, the GO Station, and essential amenities. This future-ready development is ideal for investors, developers, and owner-operators seeking to establish or expand in one of Durham Region's fastest-growing markets. Don't miss this opportunity to bring your business vision to life in a purpose-built, high-exposure commercial space in thriving Oshawa. Currently 2 bedroom Plus 2 washroom .Can be rented . (id:64974)
Quick Facts
- Property Type: Retail
- Bedrooms: 2
- Bathrooms: 1
- Living Area: 4,000 sq ft (371.6 m²)
- Parking: 3 spaces
- Frontage: 41 ft (12.6 m)
Costs
- Annual Taxes: $2,256.98
Listing Provided by: RE/MAX GOLD REALTY INC.
Board: Toronto Regional Real Estate Board
Data provided via CREA DDF®.
Detailed Features
Interior & Systems
- Heating: No heat
- Cooling: None
Exterior & Construction
- Water: Municipal water
Lot & Land
- Frontage: 41 ft (12.6 m)
- Zoning: UGC-B
Community & Neighbourhood
- Neighbourhood: Central
Listing Information
Listing History
Buy/Sell/Terminated/Expired listing history for 119 CELINA STREET, Oshawa (Central), Ontario, L1H4N3
Location & Neighborhood
🚗 Travel times
Neighborhood Walkability
Mortgage & Cost Calculators
Nearby Homes (Within 2km)
Similar Homes
Similar Properties
No rental comparables found in this area.
Sold Comparables
Access to sold property data requires a registered and verified account with TRREB DDF integration.
Coming SoonRented Comparables
Access to rented property data requires a registered and verified account with TRREB DDF integration.
Coming Soon





























