1185 HONEYWOOD DR DRIVE, London South (South U), Ontario, N6M0L6
MLS: X12945732 | House (Freehold)
$818,900












Property Description
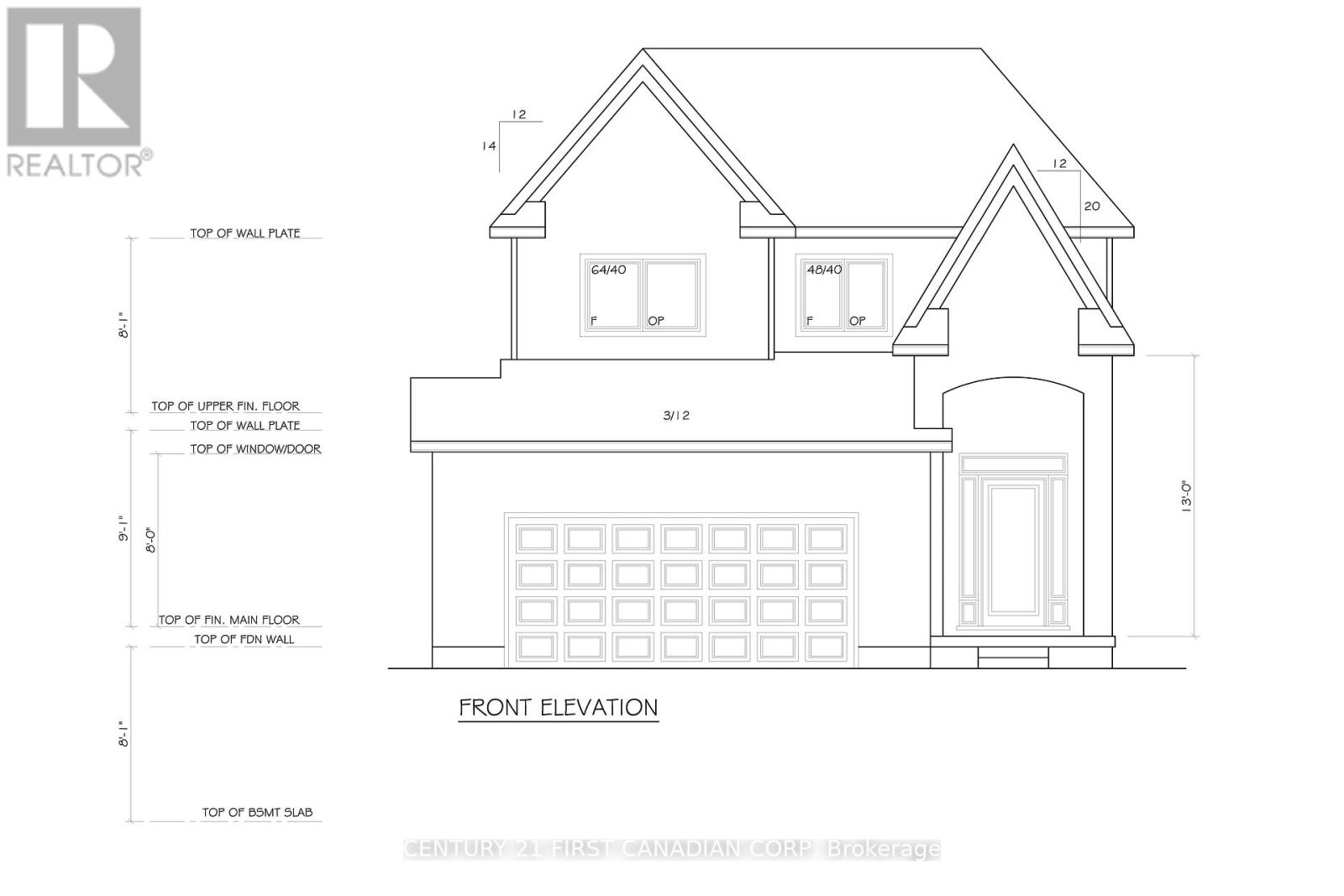
Modern Living Backing Onto Nature - The Emerald III Model to be build on a Walk-out Premium Lot. Don't miss this incredible opportunity to own a brand-new, thoughtfully designed home in the desirable Jacksons Meadows community. This Model offers 1,862 sq ft of functional, family-friendly living space with a striking steep front façade and a bright, open-concept layout. Backing onto a scenics trail and forest, this home delivers both privacy and picturesque views right from your backyard.The main floor features elegant hardwood flooring, oak stairs, and expansive windows that flood the space with natural light. The stylish kitchen is designed for both everyday living and entertaining, complete with a large quartz/granite island that flows into the dining area-perfectly positioned to enjoy the tranquil outdoor setting. The living room features an electric fireplace, creating a warm and modern ambiance. Upstairs, you'll find four spacious bedrooms, including a primary retreat with a walk-in closet finished 3-piece ensuite featuring quartz/granite countertops. A second 3-piece bathroom, convenient upper-level laundry, and a linen closet. Built by Vander Wielen Design & Build Inc., this to-be-built home allows buyers to personalize finishes, colours, and upgrades to match their unique style. Located in a rapidly growing neighbourhood, Jacksons Meadows offers exceptional convenience-close to schools, shopping, restaurants, parks, and quick access to Highway 401. A new state-of-the-art public school with childcare facilities is currently under construction nearby.Bonus: For a limited time, the builder is including a $7,500 appliance package. HST Rebate has been adjusted and is reflected in the listed price in accordance with the new temporarily HST Rebate regulations effective April 1, 2026. CONTACT Realtor for more details. Images are for illustration purposes only ; final design, materials, and finishes may vary depending on clients selections. (id:64974)
Quick Facts
- Property Type: House (Freehold)
- Bedrooms: 4 (4 above)
- Bathrooms: 3 (1 half)
- Ownership: Freehold
- Attached: No
- Fireplaces: 1
- Parking: 4.0 spaces (Attached Garage, Garage)
- Frontage: 37 ft (11.2 m)
Listing Provided by: CENTURY 21 FIRST CANADIAN CORP
Board: London and St. Thomas Association of REALTORS®
Data provided via CREA DDF®.
Detailed Features
Interior & Systems
- Heating: Forced air, Electric
- Cooling: Central air conditioning
- Basement: Unfinished, N/A
- Appliances: Washer, Refrigerator, Water meter, Dishwasher, Stove, Dryer, Water Heater
- Flooring: Tile, Hardwood
- Utilities: Sewer, Electricity, Cable
Exterior & Construction
- Exterior: Brick, Vinyl siding
- Foundation: Concrete
- Sewer: Sanitary sewer
- Water: Municipal water
Lot & Land
- Frontage: 37 ft (11.2 m)
- Features: Wooded area, Carpet Free, Sump Pump
Community & Neighbourhood
- Building: Fireplace(s)
- Neighbourhood: South U
Room Details (12 rooms)
Listing Information
Listing History
MLS listing activity for 1185 HONEYWOOD DR DRIVE, London South (South U), Ontario, N6M0L6 — dates reflect when changes were recorded in the DDF
🚗 Travel times
Neighborhood Walkability
Mortgage & Cost Calculators
Nearby Homes ?Nearby Homes — Search CriteriaSearch Radius1 kmPrice Range±5%Match BedroomsYesMatch BathroomsYes

1189 HONEYWOOD DRIVE, London South (South U)
House$889,900
Listing Courtesy of NU-VISTA PREMIERE REALTY INC.

1214 HONEYWOOD DRIVE, London South (South U)
House$724,039
Listing Courtesy of STREETCITY REALTY INC.

1226 HONEYWOOD DRIVE, London South (South U)
House$725,880
Listing Courtesy of STREETCITY REALTY INC.

LOT 25 - 845 DARNLEY BOULEVARD, London South (South U)
House$899,900
Listing Courtesy of RE/MAX REAL ESTATE CENTRE INC.

1260 HONEYWOOD DRIVE, London South (South U)
House$949,900
Listing Courtesy of RE/MAX REALTY SERVICES INC.

LOT 207 HOBBS DRIVE, London South (South U)
House$754,900
Listing Courtesy of CENTURY 21 FIRST CANADIAN CORP

828 GATESTONE ROAD, London South (South U)
House$749,900
Listing Courtesy of NU-VISTA PREMIERE REALTY INC.

844 GATESTONE ROAD ROAD, London South (South U)
House$755,663
Listing Courtesy of CENTURY 21 FIRST CANADIAN CORP

6 - 335 LIGHTHOUSE ROAD, London South (South S)
Condo - House$535,000
$4,070/yr taxListing Courtesy of HOMELIFE/FUTURE REALTY INC.

463 SOUTH LEAKSDALE CIRCLE, London South (South U)
House$699,900
$5,415/yr taxListing Courtesy of THRIVE REALTY GROUP INC.

779 NORTH LEAKSDALE CIRCLE, London South (South U)
House$769,900
$5,046/yr taxListing Courtesy of KELLER WILLIAMS LIFESTYLES

21 - 2579 SHEFFIELD BOULEVARD, London South (South U)
House$720,000
$5,331/yr taxListing Courtesy of KAPSONS REALTY POINT

14 - 1199 REARDON BOULEVARD, London South (South U)
Condo - Row / Townhouse$394,999
$2,665/yr taxListing Courtesy of THE REALTY FIRM INC.

10 - 2605 KETTERING PLACE, London South (South U)
Condo - Row / Townhouse$489,900
Listing Courtesy of NU-VISTA PINNACLE REALTY BROKERAGE INC

231 CHELTON ROAD, London South (South U)
House$715,000
$4,708/yr taxListing Courtesy of KIGO REALTY INC.
Similar Homes ?Similar Homes — Search CriteriaSearch Radius5 kmPrice Range±5%Match Home TypeYesMatch BedroomsYes

14 - 2835 SHEFFIELD PLACE, London South (South U)
Condo - House$818,690
$6,292/yr taxListing Courtesy of SUTTON GROUP - SELECT REALTY

2698 BOBOLINK LANE, London South (South U)
House$820,000
Listing Courtesy of ROYAL LEPAGE TRILAND PREMIER BROKERAGE

2704 BOBOLINK LANE, London South (South U)
House$836,300
Listing Courtesy of ROYAL LEPAGE TRILAND PREMIER BROKERAGE

2884 DOYLE DRIVE, London South (South U)
House$799,900
$5,180/yr taxListing Courtesy of COLDWELL BANKER POWER REALTY

262 HESSELMAN CRESCENT, London South (South U)
House$849,900
Listing Courtesy of ROYAL LEPAGE TRILAND PREMIER BROKERAGE

1038 DEARNESS DRIVE, London South (South Y)
House$784,900
$4,543/yr taxListing Courtesy of EXP REALTY
Similar Properties ?Active Comparables — Search CriteriaSearch Radius2 kmPrice Range±5%Match Home TypeYesMatch BedroomsYes

14 - 2835 SHEFFIELD PLACE, London South (South U)
Condo - House$818,690
$6,292/yr taxListing Courtesy of SUTTON GROUP - SELECT REALTY

2698 BOBOLINK LANE, London South (South U)
House$820,000
Listing Courtesy of ROYAL LEPAGE TRILAND PREMIER BROKERAGE

2704 BOBOLINK LANE, London South (South U)
House$836,300
Listing Courtesy of ROYAL LEPAGE TRILAND PREMIER BROKERAGE

2884 DOYLE DRIVE, London South (South U)
House$799,900
$5,180/yr taxListing Courtesy of COLDWELL BANKER POWER REALTY

262 HESSELMAN CRESCENT, London South (South U)
House$849,900
Listing Courtesy of ROYAL LEPAGE TRILAND PREMIER BROKERAGE
No rental comparables found in this area.
Sold Comparables
Access to sold property data requires a registered and verified account with TRREB DDF integration.
Coming SoonRented Comparables
Access to rented property data requires a registered and verified account with TRREB DDF integration.
Coming SoonBook a Viewing
1185 HONEYWOOD DR DRIVE, London South (South U), Ontario, N6M0L6
