117 SPRING ROAD, Georgina (Keswick North), Ontario, L4P2K4
MLS: N12796214 | Vacant Land
$2,340,000






Property Description
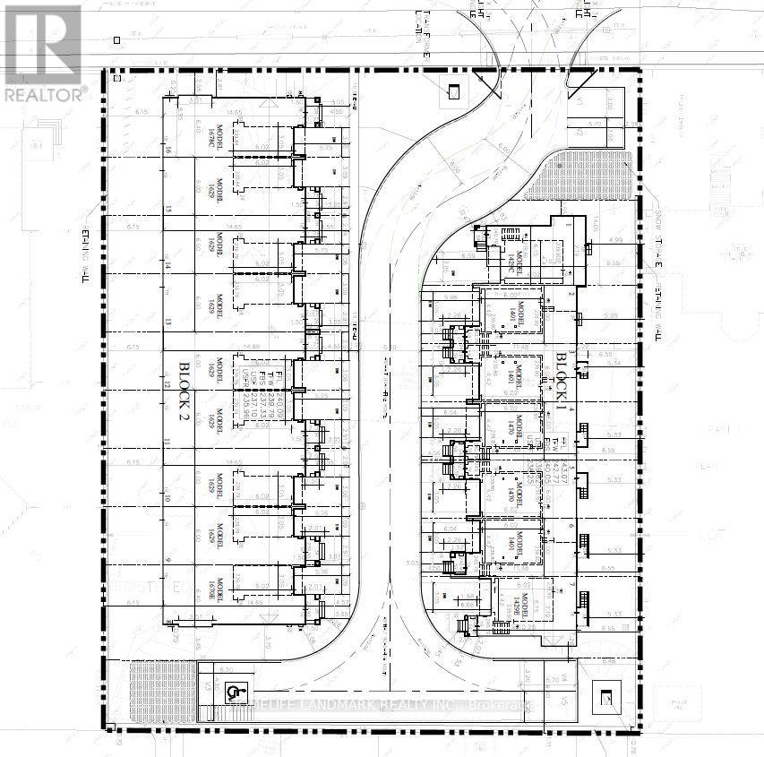
Attention Builders and Developers! Rare Opportunity! Approved for 16 Freehold Townhouses! Traditional Architectural Design with Private Backyards. Walkout Models Available. 1.0-Acre Located within Existing Residential Community. Draft Plan Approved. Service Allocation Reserved. Close to All Amenities. (id:64974)
Quick Facts
- Property Type: Vacant Land
- Bedrooms: None
- Bathrooms: 0
- Frontage: 182 ft (55.4 m)
Costs
- Annual Taxes: $3,419.11 (2025)
Listing Provided by: HOMELIFE LANDMARK REALTY INC.
Board: Toronto Regional Real Estate Board
Data provided via CREA DDF®.
Detailed Features
Interior & Systems
- Utilities: Sewer, Electricity, Cable
Lot & Land
- Frontage: 182 ft (55.4 m)
- Zoning: R3-73(H) - Medium Density Residential Zone
Community & Neighbourhood
- Neighbourhood: Keswick North
Listing Information
Listing History
Buy/Sell/Terminated/Expired listing history for 117 SPRING ROAD, Georgina (Keswick North), Ontario, L4P2K4
Location & Neighborhood
🚗 Travel times
Neighborhood Walkability
Mortgage & Cost Calculators
Nearby Homes (Within 2km)
Similar Homes
Similar Properties
No rental comparables found in this area.
Sold Comparables
Access to sold property data requires a registered and verified account with TRREB DDF integration.
Coming SoonRented Comparables
Access to rented property data requires a registered and verified account with TRREB DDF integration.
Coming Soon























