116 ROBERT ROAD, Asphodel-Norwood (Norwood), Ontario, K0L2V0
MLS: X12882404 | House (Freehold)
$499,900

























Property Description
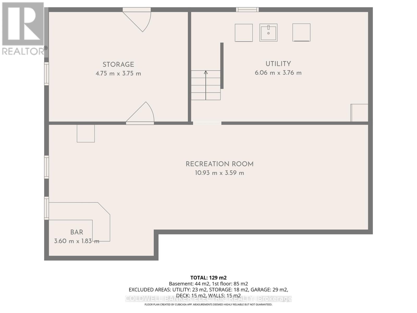
Welcome to 116 Robert Road in the welcoming community of Norwood, Ontario, a place where small-town charm meets everyday convenience. Located just a short drive east of Peterborough, Ontario, Norwood offers the lifestyle many buyers are searching for: a friendly community, local shops and services, and easy access to nature, all while remaining within commuting distance of Peterborough. This solid brick 2-bedroom bungalow is a wonderful opportunity for first-time buyers, young families, or those looking to downsize without giving up space. Set on a generous lot in a quiet, semi-rural setting, the property offers the feel of country living while still benefiting from full municipal services. A durable steel roof and attached garage add peace of mind and everyday convenience. Inside, the main level offers comfortable living with two bedrooms and a full bath, while the simi finished rec room downstairs creates extra space for relaxing, entertaining, or a play area for kids. The basement also includes additional unfinished space with a walk-up to the backyard, ideal for a workshop, hobby area, or future bedroom depending on your needs. The spacious partially fenced yard provides plenty of room for gardening, outdoor gatherings, or simply enjoying the quiet surroundings that make Norwood such a desirable place to call home. The current owners are moving on as their growing family needs more space, creating an excellent opportunity for buyers looking for affordable home in a great community just outside Peterborough. If you're searching for a property that offers value, flexibility, and the relaxed lifestyle of a close-knit village, 116 Robert Road is well worth a look! (id:64974)
Quick Facts
- Property Type: House (Freehold)
- Style: Bungalow
- Bedrooms: 2 (2 above)
- Bathrooms: 1
- Ownership: Freehold
- Attached: No
- Parking: 3 spaces (Attached Garage, Garage)
- Frontage: 145 ft (44.2 m)
Costs
- Annual Taxes: $2,601.00 (2025)
Listing Provided by: COLDWELL BANKER ELECTRIC REALTY
Board: Central Lakes Association of REALTORS®
Data provided via CREA DDF®.
Detailed Features
Interior & Systems
- Heating: Forced air, Natural gas
- Cooling: Central air conditioning
- Basement: Partially finished, Full, Walk-up, N/A, N/A
- Appliances: Washer, Refrigerator, Dishwasher, Stove, Dryer, Microwave, Water Heater
- Utilities: Sewer, Electricity, Cable
Exterior & Construction
- Style: Bungalow
- Exterior: Brick
- Foundation: Block
- Sewer: Sanitary sewer
- Water: Municipal water
Lot & Land
- Frontage: 145 ft (44.2 m)
- Features: Cul-de-sac, Level lot
- Zoning: R1
Community & Neighbourhood
- Neighbourhood: Norwood
Room Details (8 rooms)
Listing Information
Listing History
Buy/Sell/Terminated/Expired listing history for 116 ROBERT ROAD, Asphodel-Norwood (Norwood), Ontario, K0L2V0
Location & Neighborhood
🚗 Travel times
Neighborhood Walkability
Mortgage & Cost Calculators
Nearby Homes (Within 2km)
Similar Homes
Similar Properties
No rental comparables found in this area.
Sold Comparables
Access to sold property data requires a registered and verified account with TRREB DDF integration.
Coming SoonRented Comparables
Access to rented property data requires a registered and verified account with TRREB DDF integration.
Coming Soon























