115 WELLINGTON STREET, Grey Highlands, Ontario, N0C1C0
MLS: X12665900 | Residential Commercial Mix
$449,000
















































Property Description
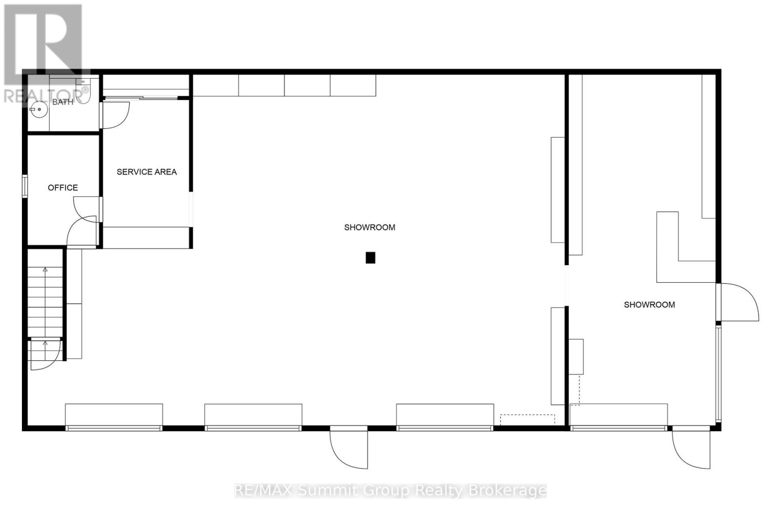
Set in the village of Feversham and backing onto the Beaver River, this light industrial property offers endless opportunities for your business. With large front windows, multiple access doors, a side deck, and ample parking, it's an ideal setup for a business that needs both visibility and functionality. The main part of the showroom has a ceiling height of 9.5 ft, while the section known as "Tippy Canoe" features a clearance of 14 ft. Picture a modern kitchen showroom, stone countertops, maybe a dedicated window and door sales space, a siding or garage door showroom, equipment sales, a building supply center, or possibly a yoga or fitness studio. The light industrial zoning permits a variety of uses, including warehousing and wholesaling, assembly and light manufacturing, open storage, equipment sales, and one residence for security or caretaking purposes. Upstairs, an unfinished loft adds future potential. It could be used for staff space, storage, or even a residential unit to help offset expenses. There is currently no well or septic in place. If you've been looking for a versatile property where you can grow your business and create a space that stands out, this is it. (id:64974)
Quick Facts
- Property Type: Residential Commercial Mix
- Bedrooms: None
- Bathrooms: 1
- Living Area: 2,080 sq ft (193.2 m²)
- Parking: 7 spaces
- Frontage: 100 ft (30.6 m)
Costs
- Annual Taxes: $2,664.48 (2025)
Listing Provided by: RE/MAX Summit Group Realty Brokerage
Board: OnePoint Association of REALTORS®
Data provided via CREA DDF®.
Detailed Features
Interior & Systems
- Cooling: Fully air conditioned
Lot & Land
- Frontage: 100 ft (30.6 m)
- Zoning: M1-011, H
Community & Neighbourhood
- Neighbourhood: Grey Highlands
Listing Information
Listing History
Buy/Sell/Terminated/Expired listing history for 115 WELLINGTON STREET, Grey Highlands, Ontario, N0C1C0
Location & Neighborhood
🚗 Travel times
Neighborhood Walkability
Mortgage & Cost Calculators
Nearby Homes (Within 2km)
Similar Homes
Similar Properties
No rental comparables found in this area.
Sold Comparables
Access to sold property data requires a registered and verified account with TRREB DDF integration.
Coming SoonRented Comparables
Access to rented property data requires a registered and verified account with TRREB DDF integration.
Coming Soon

























