115 - 85 CURLEW DRIVE, Toronto (Parkwoods-Donalda), Ontario, M3A2P8
MLS: C12701498 | Offices
$1,450.00 / monthly








Property Description
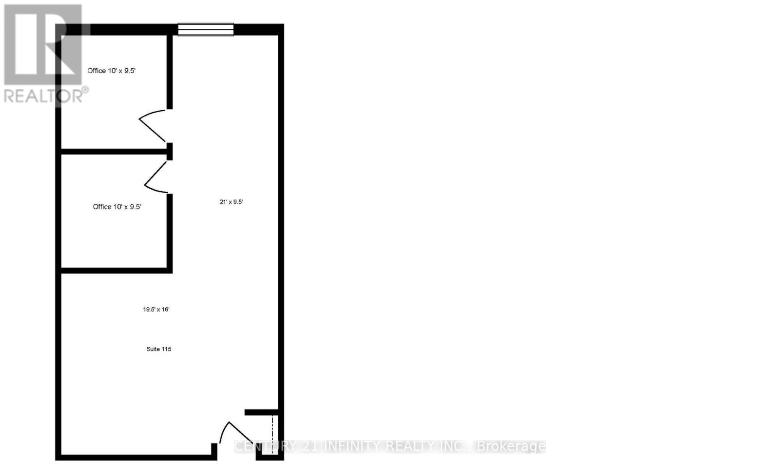
Main Floor Suite In A Professional Office Building. Two Private Offices Plus Open Area. Ample Surface Parking. On-Site Property Management. Very Close To All Amenities. Total Monthly Rent Is $1450 + $854 TMI. This Includes All Utilities! (id:64974)
Directions: Cross Streets: Lawrence Ave E / Curlew Dr. ** Directions: North on Curlew Drive from Lawrence Ave E.
Quick Facts
- Property Type: Offices
- Bedrooms: None
- Bathrooms: None
- Living Area: 970 sq ft (90.1 m²)
Costs
- Annual Taxes: $854.00
Listing Provided by: CENTURY 21 INFINITY REALTY INC.
Board: Central Lakes Association of REALTORS®
Data provided via CREA DDF®.
Detailed Features
Interior & Systems
- Heating: Forced air, Natural gas
- Cooling: Fully air conditioned
Exterior & Construction
- Water: Municipal water
Lot & Land
- Zoning: Commercial Office
Community & Neighbourhood
- Neighbourhood: Parkwoods-Donalda
Listing Information
Listing History
Buy/Sell/Terminated/Expired listing history for 115 - 85 CURLEW DRIVE, Toronto (Parkwoods-Donalda), Ontario, M3A2P8
Location & Neighborhood
📍
🚗 Travel times
Neighborhood Walkability
Mortgage & Cost Calculators
Nearby Homes (Within 2km)
Similar Homes
Similar Properties
Active Comparables
Rent Comparables
Sold Comparables
Rented Comparables
Sold Comparables
Access to sold property data requires a registered and verified account with TRREB DDF integration.
Coming SoonRented Comparables
Access to rented property data requires a registered and verified account with TRREB DDF integration.
Coming Soon


































