111 Trailridge Drive, Sudbury, Ontario, P3E6L8
MLS: 2127145 | House (Freehold)
$619,900















































Property Description
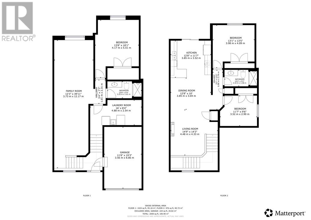
Located in the desirable Algonquin neighbourhood, 111 Trailridge offers easy, low-maintenance living in a quality-built 1,060 sq. ft home by Belmar (2018) that still feels like new. The bright and inviting main floor features a functional layout with 2 beds and 1 bath, complemented by a modern kitchen, ceramic tiles, and great natural light throughout. The fully finished lower level adds even more space with a large rec room, an additional bedroom and bathroom, and room to create a 4th bedroom if needed. Outside, enjoy a paved driveway and minimal exterior upkeep. Perfect for downsizers or anyone seeking a like-new home with minimal yard maintenance, all in a family-friendly location that’s hard to beat. Low utility costs: gas approx. $80/month and hydro & water approx. $140/month. Call today to book a private showing! (id:64974)
Quick Facts
- Property Type: House (Freehold)
- Style: Bungalow
- Bedrooms: 3
- Bathrooms: 2
- Ownership: Freehold
Listing Provided by: RE/MAX CROWN REALTY (1989) INC., BROKERAGE (SUDBURY)
Board: Sudbury Real Estate Board
Data provided via CREA DDF®.
Detailed Features
Interior & Systems
- Heating: Forced air
- Cooling: Central air conditioning
- Basement: Full
- Flooring: Tile, Carpeted
Exterior & Construction
- Style: Bungalow
- Exterior: Brick, Vinyl siding
- Roof: Asphalt shingle, Unknown
- Foundation: Concrete
- Fencing: Partially fenced
- Sewer: Municipal sewage system
- Water: Municipal water
Lot & Land
- Zoning: R2-2
Community & Neighbourhood
- Community: Family Oriented, Quiet Area, Seniors Oriented, School Bus
Room Details (9 rooms)
Listing Information
Listing History
MLS listing activity for 111 Trailridge Drive, Sudbury, Ontario, P3E6L8 — dates reflect when changes were recorded in the DDF
🚗 Travel times
Neighborhood Walkability
Mortgage & Cost Calculators
Nearby Homes ?Nearby Homes — Search CriteriaSearch Radius1 kmPrice Range±5%Match BedroomsYesMatch BathroomsYes

21 Vintage Way, Sudbury
House$719,900
Listing Courtesy of EXP REALTY, BROKERAGE

154 Rinkside Court Unit# Basement, Sudbury
House$2,800/mo
Listing Courtesy of ROYAL LEPAGE NORTH HERITAGE REALTY, BROKERAGE

64 Sweetberry Drive, Sudbury
House$599,700
Listing Courtesy of RE/MAX CROWN REALTY (1989) INC., BROKERAGE (SUDBURY)

163 Countryside Drive, Sudbury
House$695,000
Listing Courtesy of ROYAL LEPAGE NORTH HERITAGE REALTY, BROKERAGE
Similar Homes ?Similar Homes — Search CriteriaSearch Radius5 kmPrice Range±5%Match Home TypeYesMatch BedroomsYes

139 Copper Street, Sudbury
House$639,900
Listing Courtesy of COLDWELL BANKER - CHARLES MARSH REAL ESTATE, BROKERAGE

78 CROMWELL Crescent, Hamilton
House$619,900
$5,020/yr taxListing Courtesy of Royal LePage State Realty Inc.

15 - 4300 KALAR ROAD, Niagara Falls (Ascot)
Condo - Row / Townhouse$619,900
$4,121/yr taxListing Courtesy of ROYAL LEPAGE NRC REALTY

33 CEDARWOOD STREET, Quinte West (Frankford Ward)
House$619,900
Listing Courtesy of ROYAL LEPAGE PROALLIANCE REALTY

16 PARIS Road, Brantford
House$619,900
$4,763/yr taxListing Courtesy of Coldwell Banker Homefront Realty

375 SILVERBIRCH Boulevard, Hamilton
Condo - House$619,900
$4,547/yr taxListing Courtesy of RE/MAX Escarpment Realty Inc.

404 - 70 ANNIE CRAIG DRIVE, Toronto (Mimico)
Condo - Apartment$619,900
$2,896/yr taxListing Courtesy of RE/MAX WEST REALTY INC.

38 QUINELLA PLACE, London South (South C)
Condo - Row / Townhouse$619,900
$5,666/yr taxListing Courtesy of OAK AND KEY REAL ESTATE BROKERAGE, INC.

378 COUNTY ROAD 25 ROAD, Prince Edward County (North Marysburg Ward)
House$619,900
$3,200/yr taxListing Courtesy of EKORT REALTY LTD.

80 CAITHNESS Street W Unit# 101, Caledonia
Condo - Apartment$619,900
$1/yr taxListing Courtesy of RE/MAX Escarpment Realty Inc.

375 SILVERBIRCH BOULEVARD, Hamilton
Condo - House$619,900
$4,547/yr taxListing Courtesy of RE/MAX ESCARPMENT REALTY INC.

11572 HWY 3 HIGHWAY, Wainfleet (Marshville/Winger)
House$619,900
$4,306/yr taxListing Courtesy of ROYAL LEPAGE NRC REALTY

129 TRADEWINDS CRESCENT, North Grenville
House$619,900
$3,606/yr taxListing Courtesy of PAUL RUSHFORTH REAL ESTATE INC.

844 PRINCIPALE STREET, Casselman
House$619,900
$5,384/yr taxListing Courtesy of MARTELS REAL ESTATE INC.

78 CROMWELL CRESCENT, Hamilton (Greenford)
House$619,900
$5,020/yr taxListing Courtesy of ROYAL LEPAGE STATE REALTY
Similar Properties ?Active Comparables — Search CriteriaSearch Radius2 kmPrice Range±5%Match Home TypeYesMatch BedroomsYes
No active comparables found in this area.
No rental comparables found in this area.
Sold Comparables
Access to sold property data requires a registered and verified account with TRREB DDF integration.
Coming SoonRented Comparables
Access to rented property data requires a registered and verified account with TRREB DDF integration.
Coming SoonBook a Viewing
111 Trailridge Drive, Sudbury, Ontario, P3E6L8
