110 FREELTON Road, Flamborough, Ontario, L8B0Z3
MLS: 40816077 | Other
$799,000












































Property Description
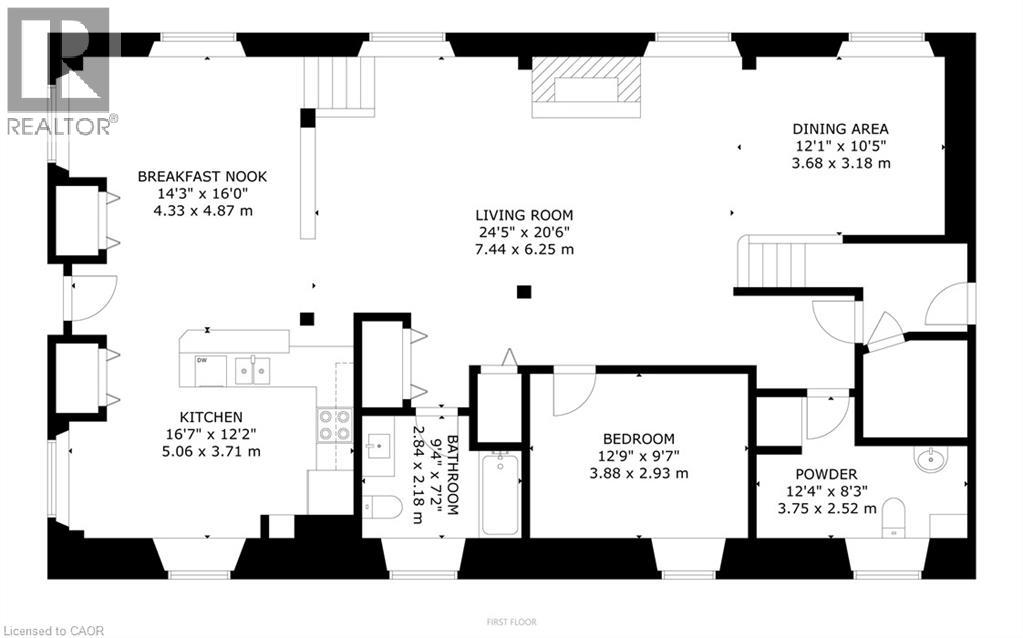
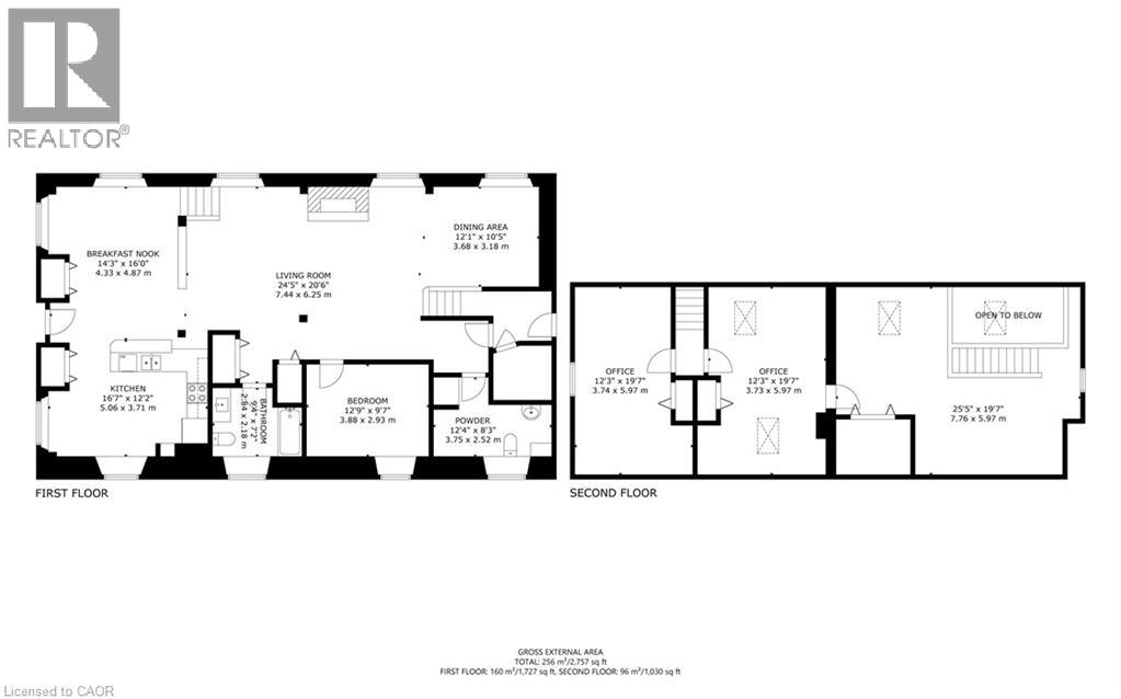
Welcome to 110 Freelton Road. The property is zoned as Settlement Commercial (S2) as per City of Hamilton Zoning Map. Historically a Black Smith Shop, to a residential home, and now currently being used for an office. Steps to Freelton Community Park, and only minutes to Waterdown, or Puslinch, and the 401. Great opportunity for a business owner. Original Charm and Character throughout and very well kept over the years. Many updates with over 2700 square feet of finished space. Lots of parking with additional alley access. There are 3 bedrooms/Offices with additional loft area for more office space or a board room. LET'S GET MOVING!™ (id:64974)
Quick Facts
- Property Type: Other
- Bedrooms: None
- Bathrooms: None
- Living Area: 2,757 sq ft (256.1 m²)
- Year Built: 1870
- Ownership: Freehold
- Parking: 6.0 spaces
- Frontage: 45 ft (13.7 m)
Costs
- Annual Taxes: $3,895.00
Listing Provided by: RE/MAX Escarpment Realty Inc.
Board: Cornerstone Association of REALTORS®
Data provided via CREA DDF®.
Detailed Features
Interior & Systems
- Basement: None
- Utilities: Natural Gas, Electricity, Telephone
Exterior & Construction
- Exterior: Stone
- Foundation: Stone
- Sewer: Septic System
- Water: Well
Lot & Land
- Frontage: 45 ft (13.7 m)
- Features: Paved driveway, Crushed stone driveway
- Zoning: S2
Community & Neighbourhood
- Subdivision: 043 - Flamborough West
Listing Information
Listing History
MLS listing activity for 110 FREELTON Road, Flamborough, Ontario, L8B0Z3 — dates reflect when changes were recorded in the DDF
🚗 Travel times
Neighborhood Walkability
Mortgage & Cost Calculators
Nearby Homes ?Nearby Homes — Search CriteriaSearch Radius1 kmPrice Range±5%Match BedroomsYesMatch BathroomsYes
Similar Homes ?Similar Homes — Search CriteriaSearch Radius5 kmPrice Range±5%Match Home TypeYesMatch BedroomsYes

209 Second ST, Kenora
Other$799,000
$7,478/yr taxListing Courtesy of RE/MAX NORTHWEST REALTY LTD.

1271 Highway 71, Nestor Falls
Other$799,000
$5,521/yr taxListing Courtesy of RE/MAX NORTHWEST REALTY LTD.

455 KING Street E, Hamilton
Other$799,900
$13,090/yr taxListing Courtesy of Keller Williams Complete Realty

1247 OLD HIGHWAY 8, Hamilton
Other$808,000
$11,533/yr taxListing Courtesy of Real Broker Ontario Ltd.
Similar Properties ?Active Comparables — Search CriteriaSearch Radius2 kmPrice Range±5%Match Home TypeYesMatch BedroomsYes
No active comparables found in this area.
No rental comparables found in this area.
Sold Comparables
Access to sold property data requires a registered and verified account with TRREB DDF integration.
Coming SoonRented Comparables
Access to rented property data requires a registered and verified account with TRREB DDF integration.
Coming SoonBook a Viewing
110 FREELTON Road, Flamborough, Ontario, L8B0Z3

