11 SYCAMORE DRIVE, Tillsonburg, Ontario, N4G5S3
MLS: X12983488 | House (Freehold)
$689,900




Property Description
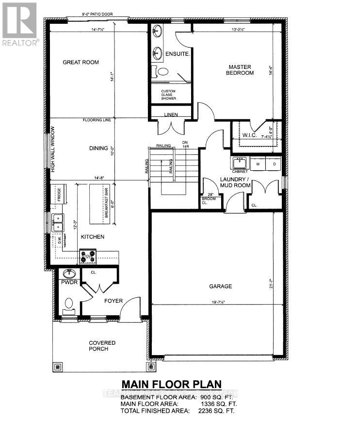
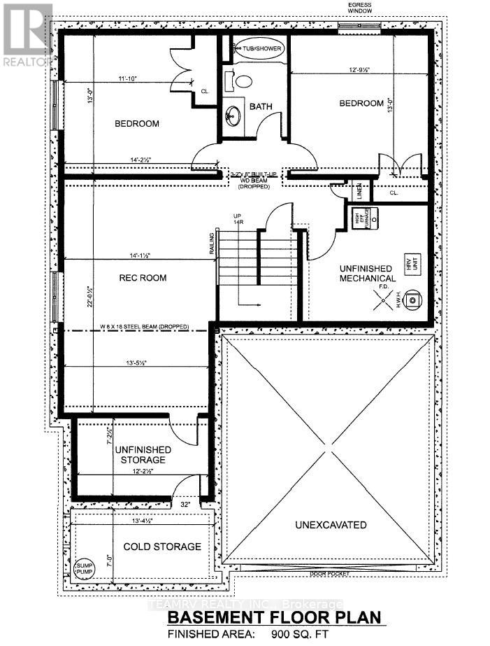
Discover the perfect blend of luxury and comfort in this stunning custom bungalow, nestled on a spacious 52' lot in Tillsonburg's prestigious new home subdivision. Built by a renowned quality home builder Trevalli Homes. This almost ready to move-in gem features a welcoming covered front porch that invites you inside. Step into a breathtaking main floor adorned with 9' ceiling, kitchen, great room, dinette, and hallway. The gourmet kitchen is a chef's dream, boasting an Island with breakfast bar, granite countertops, and seamless transitions to the stylish powder room and en-suite that features a frameless glass shower. The true highlight is the finished basement, offering a spacious rec room, additional bathroom, and two cozy bedrooms-perfect for guests or family. This meticulously crafted home is priced to sell, so don't miss your chance to make it yours before it's gone! ** Prices are shown net of applicable HST rebates for qualified purchasers, subject to purchasers' eligibility****Open House every Saturday and Sunday 1-4 pm at builder's model home at 4 Thompson Crt, Tillsonburg** (id:64974)
Quick Facts
- Property Type: House (Freehold)
- Style: Bungalow
- Bedrooms: 3 (1 above, 2 below)
- Bathrooms: 3 (1 half)
- Ownership: Freehold
- Attached: No
- Parking: 4.0 spaces (Attached Garage, Garage)
- Frontage: 52 ft (15.8 m)
Listing Provided by: TEAMRV REALTY INC.
Board: Toronto Regional Real Estate Board
Data provided via CREA DDF®.
Detailed Features
Interior & Systems
- Heating: Forced air, Natural gas
- Cooling: Central air conditioning
- Basement: Partially finished, Full
Exterior & Construction
- Style: Bungalow
- Exterior: Brick, Vinyl siding
- Foundation: Poured Concrete
- Sewer: Sanitary sewer
- Water: Municipal water
Lot & Land
- Frontage: 52 ft (15.8 m)
Community & Neighbourhood
- Neighbourhood: Tillsonburg
Room Details (7 rooms)
Listing Information
Listing History
MLS listing activity for 11 SYCAMORE DRIVE, Tillsonburg, Ontario, N4G5S3 — dates reflect when changes were recorded in the DDF
🚗 Travel times
Neighborhood Walkability
Mortgage & Cost Calculators
Nearby Homes ?Nearby Homes — Search CriteriaSearch Radius1 kmPrice Range±5%Match BedroomsYesMatch BathroomsYes

69 WILLIAM STREET, Tillsonburg
House$687,800
$4,437/yr taxListing Courtesy of Century 21 Heritage House Ltd Brokerage

6 HEMLOCK DRIVE, Tillsonburg
House$854,900
Listing Courtesy of TEAMRV REALTY INC.

27 SYCAMORE DRIVE, Tillsonburg
Single Family$749,900
Listing Courtesy of Century 21 Heritage House Ltd Brokerage

24 WILLIAM STREET, Tillsonburg
House$1,100,000
$6,150/yr taxListing Courtesy of TIMES REALTY GROUP INC.

18 WALNUT DRIVE, Tillsonburg
House$699,900
$1,268/yr taxListing Courtesy of Dotted Line Real Estate Inc Brokerage

14 WILLIAM STREET, Tillsonburg
House$849,900
$5,405/yr taxListing Courtesy of EXP REALTY

97 BEECH BOULEVARD, Tillsonburg
House$899,900
$6,084/yr taxListing Courtesy of Century 21 Heritage House Ltd Brokerage

114 BEECH BOULEVARD, Tillsonburg
House$779,900
Listing Courtesy of Century 21 Heritage House Ltd Brokerage

6 CAMDON COURT, Tillsonburg
House$655,000
$4,319/yr taxListing Courtesy of RE/MAX a-b Realty Ltd Brokerage

6 NANCY COURT, Tillsonburg
House$710,000
$4,260/yr taxListing Courtesy of RE/MAX PARAMOUNT REALTY

109 DENRICH AVENUE, Tillsonburg
Row / Townhouse$547,000
$3,479/yr taxListing Courtesy of RE/MAX a-b Realty Ltd Brokerage

41 LOWRIE CRESCENT, Tillsonburg
House$759,500
$5,152/yr taxListing Courtesy of RE/MAX a-b Realty Ltd Brokerage

43 LOWRIE Crescent, Tillsonburg
House$799,900
$5,398/yr taxListing Courtesy of eXp Realty

43 LOWRIE CRESCENT, Tillsonburg
House$799,900
$5,398/yr taxListing Courtesy of EXP REALTY

21 BELMONT AVENUE, Tillsonburg
House$1,250,000
$7,335/yr taxListing Courtesy of RE/MAX CENTRE CITY REALTY INC.
Similar Homes ?Similar Homes — Search CriteriaSearch Radius5 kmPrice Range±5%Match Home TypeYesMatch BedroomsYes

124687 MALL ROAD, Norwich
House$689,900
$3,195/yr taxListing Courtesy of RE/MAX Tri-County Realty Inc Brokerage

69 WILLIAM STREET, Tillsonburg
House$687,800
$4,437/yr taxListing Courtesy of Century 21 Heritage House Ltd Brokerage

90 WESTON DRIVE, Tillsonburg
House$699,900
$5,416/yr taxListing Courtesy of RE/MAX a-b Realty Ltd Brokerage

302 - 5 WOOD HAVEN DRIVE, Tillsonburg
Condo - Row / Townhouse$679,900
$5,810/yr taxListing Courtesy of ROYAL LEPAGE TRILAND ROBERT DILORETO REALTY

18 WALNUT DRIVE, Tillsonburg
House$699,900
$1,268/yr taxListing Courtesy of Dotted Line Real Estate Inc Brokerage

347 BROADWAY STREET, Tillsonburg
House$679,900
$2,991/yr taxListing Courtesy of RE/MAX a-b Realty Ltd Brokerage

101 - 5 WOODHAVEN DRIVE, Tillsonburg
Condo - Row / Townhouse$675,000
$5,501/yr taxListing Courtesy of RE/MAX CENTRE CITY REALTY INC.
Similar Properties ?Active Comparables — Search CriteriaSearch Radius2 kmPrice Range±5%Match Home TypeYesMatch BedroomsYes

69 WILLIAM STREET, Tillsonburg
House$687,800
$4,437/yr taxListing Courtesy of Century 21 Heritage House Ltd Brokerage

90 WESTON DRIVE, Tillsonburg
House$699,900
$5,416/yr taxListing Courtesy of RE/MAX a-b Realty Ltd Brokerage

302 - 5 WOOD HAVEN DRIVE, Tillsonburg
Condo - Row / Townhouse$679,900
$5,810/yr taxListing Courtesy of ROYAL LEPAGE TRILAND ROBERT DILORETO REALTY

18 WALNUT DRIVE, Tillsonburg
House$699,900
$1,268/yr taxListing Courtesy of Dotted Line Real Estate Inc Brokerage

347 BROADWAY STREET, Tillsonburg
House$679,900
$2,991/yr taxListing Courtesy of RE/MAX a-b Realty Ltd Brokerage

101 - 5 WOODHAVEN DRIVE, Tillsonburg
Condo - Row / Townhouse$675,000
$5,501/yr taxListing Courtesy of RE/MAX CENTRE CITY REALTY INC.
No rental comparables found in this area.
Sold Comparables
Access to sold property data requires a registered and verified account with TRREB DDF integration.
Coming SoonRented Comparables
Access to rented property data requires a registered and verified account with TRREB DDF integration.
Coming SoonBook a Viewing
11 SYCAMORE DRIVE, Tillsonburg, Ontario, N4G5S3
