11 MONTRESSOR DRIVE, Toronto (St. Andrew-Windfields), Ontario, M2P1Y9
MLS: C12733814 | House (Freehold)
$7,300,000














Property Description
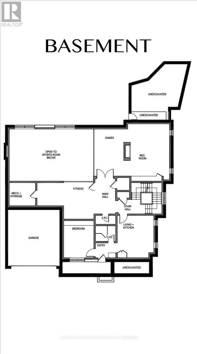
An exceptional opportunity to purchase a brand new, custom-built luxury home in the prestigious St. Andrew-Windfields neighbourhood, situated on a rare ravine-backed lot of approximately 12,800 sq. ft. This offering allows a buyer to acquire the property as a fully designed and approved new build, with all architectural plans, engineering, and approvals already completed and a reputable builder prepared to deliver the home. The approved design features over 7,600 sq. ft. of living space, thoughtfully planned to maximize scale, natural light, and the ravine setting. All major pre-construction work has been completed, including architectural design by Contempo Studio, HVAC and grading design, and building permit submission-providing a streamlined path from purchase to construction. Buyers benefit from significantly reduced timelines and risk compared to starting a custom build from scratch. The home design includes grand principal rooms, high ceilings, elevator provision, expansive outdoor terraces, and a backyard concept ideal for entertaining and enjoying the natural surroundings. Finishes may be customized within the builder's specifications, offering a balance of personalization and certainty. A rare chance to secure a brand new luxury residence without the typical delays associated with design, approvals, and permitting. Full drawings, specifications, and build details available upon request. (id:64974)
Quick Facts
- Property Type: House (Freehold)
- Bedrooms: 7 (6 above, 1 below)
- Bathrooms: 10 (1 half)
- Ownership: Freehold
- Attached: No
- Fireplaces: Yes
- Parking: 8 spaces (Garage)
- Frontage: 65 ft (19.9 m)
Costs
- Annual Taxes: $14,252.00
Listing Provided by: CENTURY 21 REGAL REALTY INC.
Board: Toronto Regional Real Estate Board
Data provided via CREA DDF®.
Detailed Features
Interior & Systems
- Heating: Forced air, Natural gas
- Cooling: Central air conditioning
- Basement: Other, See Remarks, Walk-up, N/A, N/A
Exterior & Construction
- Exterior: Brick
- Sewer: Sanitary sewer
- Water: Municipal water
Lot & Land
- Frontage: 65 ft (19.9 m)
Community & Neighbourhood
- Neighbourhood: St. Andrew-Windfields
Listing Information
Listing History
Buy/Sell/Terminated/Expired listing history for 11 MONTRESSOR DRIVE, Toronto (St. Andrew-Windfields), Ontario, M2P1Y9
Location & Neighborhood
🚗 Travel times
Neighborhood Walkability
Mortgage & Cost Calculators
Nearby Homes (Within 2km)
Similar Homes
Similar Properties
No rental comparables found in this area.
Sold Comparables
Access to sold property data requires a registered and verified account with TRREB DDF integration.
Coming SoonRented Comparables
Access to rented property data requires a registered and verified account with TRREB DDF integration.
Coming Soon



























