11 HICKORY HOLLOW, Nanticoke, Ontario, N0A1P0
MLS: 40812572 | Modular (Leasehold)
$429,900



























Property Description
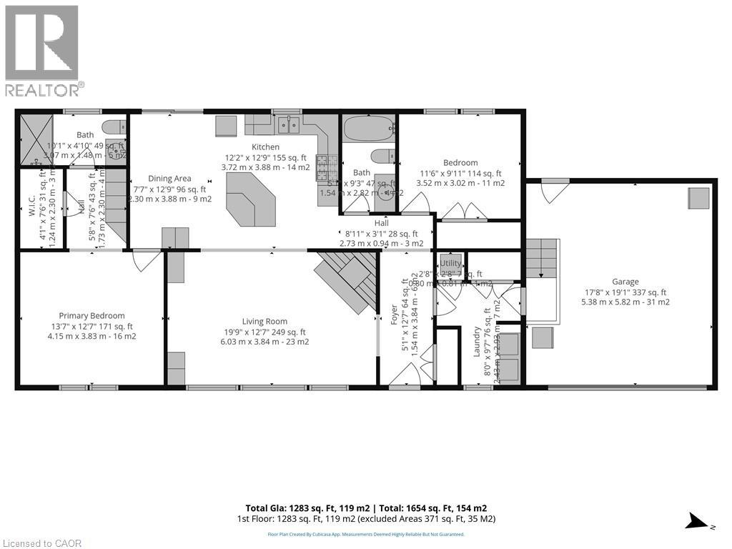
Welcome to 11 Hickory Hollow, tucked within the gated Sandusk Creek Community near Selkirk Conservation Area and the scenic shores of Lake Erie. Whether you’re searching for a peaceful weekend retreat or a full-time lifestyle change, this charming 2-bedroom, 2-bath bungalow offers the perfect place to slow down and enjoy life at your own pace. Step inside to a bright, open-concept layout where the windows fill the living room with natural light, flowing seamlessly into the kitchen and dining area—ideal for relaxed everyday living or hosting family and friends. Main floor laundry adds convenience, while sliding doors lead to a private back deck—perfect for morning coffee, evening dinners, or simply unwinding with a good book. Designed for comfort and ease, this home is especially appealing for those looking to downsize, retire, or simplify without sacrificing lifestyle. A large insulated and heated garage. Double asphalt driveway provide ample space for guests. Life in Sandusk Creek is all about enjoying the outdoors. Residents have access to a private outdoor pool, walking trails, greenbelt views, a dog park, and exclusive access to a marina and boat slips with easy access to Sandusk Creek and Lake Erie, plus easy access to beaches, campgrounds, and conservation areas, every day feels like a getaway. Conveniently located within a short drive to Selkirk, Port Dover, and Simcoe, you’ll enjoy the balance of peaceful living with access to shops, dining, and essential amenities—including hospitals—nearby. If you’ve been dreaming of a slower pace, a connection to nature, and a home that offers both comfort and community, 11 Hickory Hollow is ready to welcome you. Book your showing today. (id:64974)
Quick Facts
- Property Type: Modular (Leasehold)
- Style: Bungalow
- Bedrooms: 2 (2 above)
- Bathrooms: 2
- Living Area: 1,280 sq ft (118.9 m²)
- Above Grade: 1,280 sq ft (118.9 m²)
- Year Built: 2023
- Ownership: Leasehold
- Attached: No
- Fireplaces: 1
- Parking: 3.0 spaces (Attached Garage)
- Frontage: 70 ft (21.3 m)
Costs
- Annual Taxes: $2,422.00
Listing Provided by: RE/MAX Erie Shores Realty Inc. Brokerage
Board: Cornerstone Association of REALTORS®
Data provided via CREA DDF®.
Detailed Features
Interior & Systems
- Heating: Forced air, Natural gas
- Cooling: Central air conditioning
- Basement: None
- Appliances: Washer, Refrigerator, Stove, Dryer, Window Coverings, Garage door opener, Microwave Built-in
Exterior & Construction
- Style: Bungalow
- Exterior: Vinyl siding
- Sewer: Septic System
- Water: Municipal water
Lot & Land
- Frontage: 70 ft (21.3 m)
- Features: Conservation/green belt, Paved driveway, Automatic Garage Door Opener
- Zoning: N A2F, N A2
Community & Neighbourhood
- Community: Quiet Area
- Subdivision: 876 - Nanticoke
Room Details (9 rooms)
Listing Information
Listing History
MLS listing activity for 11 HICKORY HOLLOW, Nanticoke, Ontario, N0A1P0 — dates reflect when changes were recorded in the DDF
🚗 Travel times
Neighborhood Walkability
Mortgage & Cost Calculators
Nearby Homes ?Nearby Homes — Search CriteriaSearch Radius1 kmPrice Range±5%Match BedroomsYesMatch BathroomsYes

20 HICKORY HOLLOW, Nanticoke
Modular$399,900
Listing Courtesy of RE/MAX Escarpment Realty Inc.

20 HICKORY HOLLOW, Haldimand (Nanticoke)
Modular$399,900
Listing Courtesy of RE/MAX ESCARPMENT REALTY INC.

17 BENT WILLOW COURT, Haldimand (Nanticoke)
House$475,000
$420/yr taxListing Courtesy of RE/MAX ESCARPMENT REALTY INC.

3 COPPER BEECH Drive, Nanticoke
House$374,900
$2,301/yr taxListing Courtesy of RE/MAX Escarpment Realty Inc.

10 BENT WILLOW Court, Haldimand County
Modular$334,999
$2,036/yr taxListing Courtesy of Real Broker Ontario Ltd.

10 BENT WILLOW COURT, Haldimand (Nanticoke)
Modular$334,999
$2,036/yr taxListing Courtesy of Real Broker Ontario Ltd.

22 COPPER BEECH DRIVE, Haldimand (Nanticoke)
Modular$365,200
$1,782/yr taxListing Courtesy of KELLER WILLIAMS COMPLETE REALTY

22 COPPER BEECH Drive, Nanticoke
Modular$365,200
$1,782/yr taxListing Courtesy of Keller Williams Complete Realty

36 SHADY LANE, Haldimand (Nanticoke)
Single Family$389,900
$2,555/yr taxListing Courtesy of RE/MAX ESCARPMENT REALTY INC.

36 SHADY Lane, Selkirk
Modular$389,900
$2,555/yr taxListing Courtesy of RE/MAX Escarpment Realty Inc.

17 SILVER ASPEN Drive, Selkirk
Modular$398,999
$2,845/yr taxListing Courtesy of Realty Network

7 FOREST TRAIL, Haldimand (Nanticoke)
Other$452,899
$2,436/yr taxListing Courtesy of FAIR AGENT REALTY

1034 SOUTH COAST Drive, Nanticoke
House$829,900
$4,371/yr taxListing Courtesy of Century 21 Heritage Group Ltd

968 SOUTH COAST DRIVE, Haldimand
House$625,000
$3,046/yr taxListing Courtesy of RE/MAX ESCARPMENT REALTY INC.

968 SOUTH COAST Drive, Selkirk
House$625,000
$3,046/yr taxListing Courtesy of RE/MAX Escarpment Realty Inc.
Similar Homes ?Similar Homes — Search CriteriaSearch Radius5 kmPrice Range±5%Match Home TypeYesMatch BedroomsYes

7 PARK Street, Nanticoke
House$449,900
$1,594/yr taxListing Courtesy of RE/MAX Escarpment Realty Inc.

181 JAMES Street N Unit# 503, Hamilton
Condo - Apartment$429,900
$4,050/yr taxListing Courtesy of RE/MAX Escarpment Realty Inc.

1807 - 388 PRINCE OF WALES DRIVE, Mississauga (City Centre)
Condo - Apartment$429,900
$2,790/yr taxListing Courtesy of WEST-100 METRO VIEW REALTY LTD.

5 - 99 BRIDGE STREET E, Belleville (Belleville Ward)
Condo - Row / Townhouse$429,900
$4,095/yr taxListing Courtesy of RE/MAX QUINTE LTD.

741 KING Street W Unit# 1708, Kitchener
Condo - Apartment$429,900
$1/yr taxListing Courtesy of Corcoran Horizon Realty

213 - 300 LISGAR STREET, Ottawa
Condo - Apartment$429,900
$4,290/yr taxListing Courtesy of RE/MAX HALLMARK REALTY GROUP

210 - 10 JAMES STREET, Ottawa
Condo - Apartment$429,900
Listing Courtesy of ROYAL LEPAGE TEAM REALTY

109 - 62 FOREST MANOR ROAD, Toronto (Henry Farm)
Condo - Apartment$429,900
$2,074/yr taxListing Courtesy of REAL ESTATE ADVISORS INC.

2102 - 199 SLATER STREET, Ottawa
Condo - Apartment$429,900
$3,786/yr taxListing Courtesy of EXP REALTY

1708 - 741 KING STREET W, Kitchener
Condo - Apartment$429,900
$1/yr taxListing Courtesy of CORCORAN HORIZON REALTY

203 - 345 ST DENIS STREET, Ottawa
Condo - Apartment$429,900
$3,527/yr taxListing Courtesy of EQUITY ONE REAL ESTATE INC.

503 - 181 JAMES STREET N, Hamilton (Strathcona)
Condo - Apartment$429,900
$4,050/yr taxListing Courtesy of RE/MAX ESCARPMENT REALTY INC.

514 - 19 NORTHERN HEIGHTS DRIVE, Richmond Hill (Langstaff)
Condo - Apartment$429,900
$1,863/yr taxListing Courtesy of SUTTON GROUP ELITE REALTY INC.

PH08 - 705 KING STREET W, Toronto (Niagara)
Condo - Apartment$429,900
$2,194/yr taxListing Courtesy of RE/MAX ULTIMATE REALTY INC.

108 - 701 SHEPPARD AVENUE W, Toronto (Clanton Park)
Condo - Apartment$429,900
$2,006/yr taxListing Courtesy of RE/MAX HALLMARK CHAY REALTY
Similar Properties ?Active Comparables — Search CriteriaSearch Radius2 kmPrice Range±5%Match Home TypeYesMatch BedroomsYes
No rental comparables found in this area.
Sold Comparables
Access to sold property data requires a registered and verified account with TRREB DDF integration.
Coming SoonRented Comparables
Access to rented property data requires a registered and verified account with TRREB DDF integration.
Coming SoonBook a Viewing
11 HICKORY HOLLOW, Nanticoke, Ontario, N0A1P0
