11 CHESTER STREET, Guelph (Exhibition Park), Ontario, N1H1K7
MLS: X12907232 | Duplex
$699,000


































Property Description
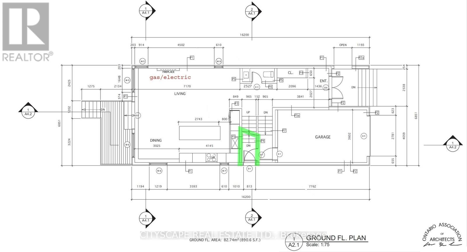
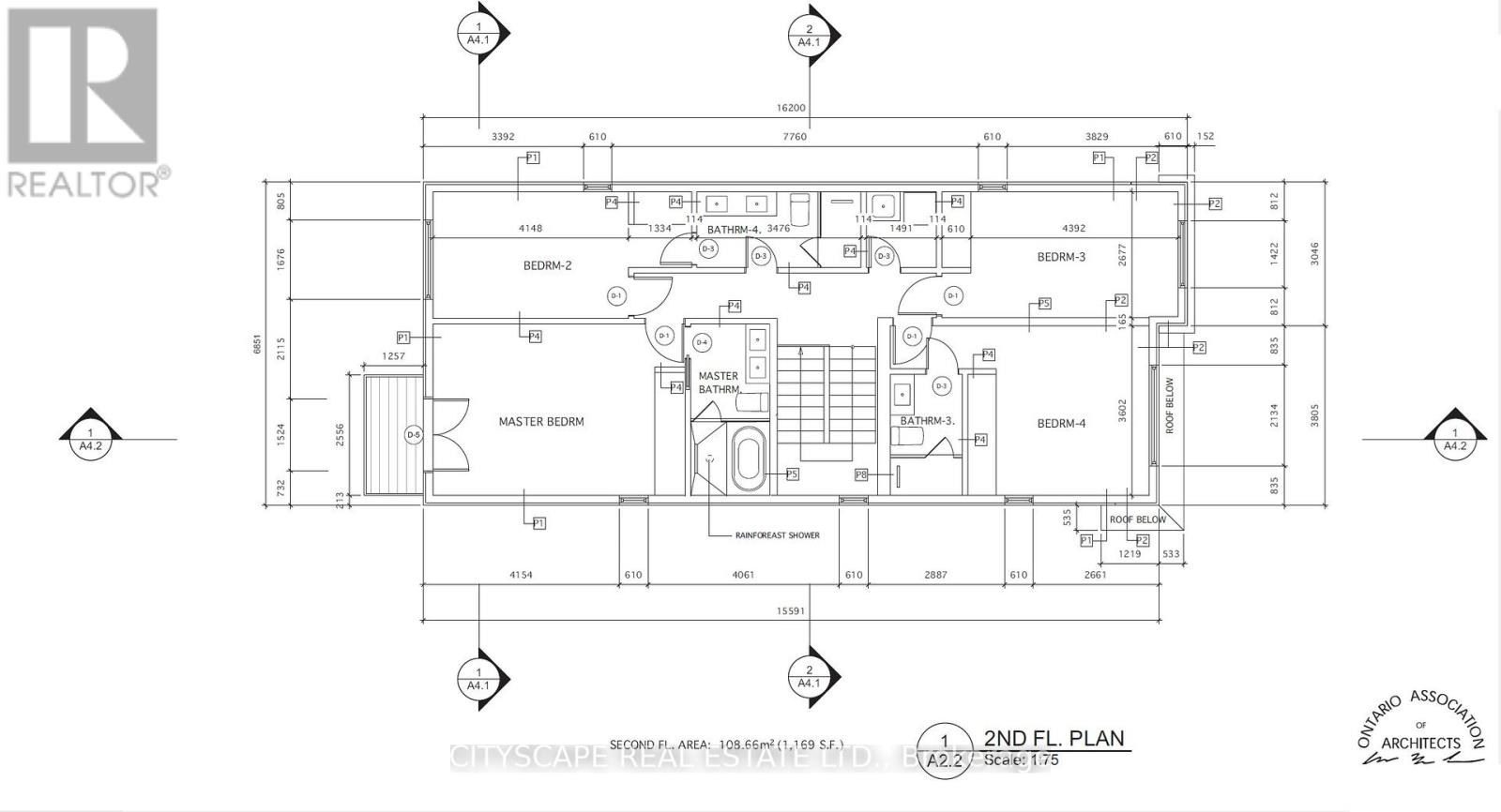
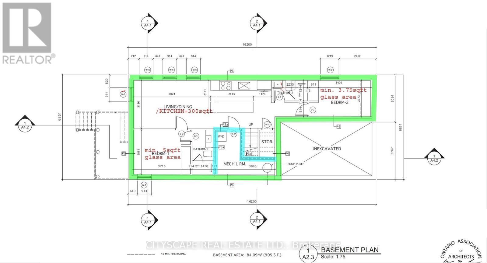
**Prime Duplex Opportunity in Exhibition Park, Guelph**Welcome to 11 Chester St, an exceptional opportunity in the heart of Guelph's highly sought-after Exhibition Park neighbourhood. Ideal for builders, investors, and renovators, this partially completed project offers the chance to customize and add significant value in a prime central location just steps from downtown. Also available is the neighbouring property at 13 Chester St - the seller prefers to sell both together but will consider separate sales.**Flexible Layout & Income Potential**This 2-storey brick and stone duplex is framed for 4 bedrooms and 2 bathrooms above grade. Plans and permits are in place for a 2-bedroom, 2-bathroom legal secondary dwelling unit in the basement, complete with a separate side entrance - offering excellent potential for multi-generational living or rental income. All major services are already connected and development charges have been paid, streamlining the path to completion.**Ready for Your Finishing Touches**With construction already underway, this property is a blank canvas ready for your vision. Complete the build to your specifications and choose your own finishes to maximize value and returns. Being sold as-is, where-is, this is a rare chance to step into a project mid-way in a high-demand neighbourhood.**Desirable Location & Lifestyle**Situated on a 32.5 ft x 90 ft lot with a private driveway and attached garage, offering parking for multiple vehicles. Located steps to Exhibition Park and minutes from Downtown Guelph, with easy access to shops, restaurants, schools, and transit in a mature, established community.A rare opportunity to complete and customize a duplex in one of Guelph's most desirable areas with strong upside potential. (id:64974)
Quick Facts
- Property Type: Duplex
- Bedrooms: 6 (4 above, 2 below)
- Bathrooms: 6 (1 half)
- Attached: Yes
- Fireplaces: Yes
- Parking: 2.0 spaces (Garage)
- Frontage: 33 ft (9.9 m)
Listing Provided by: CITYSCAPE REAL ESTATE LTD.
Board: Toronto Regional Real Estate Board
Data provided via CREA DDF®.
Detailed Features
Interior & Systems
- Heating: Other
- Basement: Separate entrance, N/A
Exterior & Construction
- Exterior: Brick, Stucco
- Foundation: Poured Concrete
- Sewer: Sanitary sewer
- Water: Municipal water
Lot & Land
- Frontage: 33 ft (9.9 m)
- Zoning: R1B
Community & Neighbourhood
- Community: Community Centre
- Neighbourhood: Exhibition Park
Room Details (17 rooms)
Listing Information
Listing History
MLS listing activity for 11 CHESTER STREET, Guelph (Exhibition Park), Ontario, N1H1K7 — dates reflect when changes were recorded in the DDF
🚗 Travel times
Neighborhood Walkability
Mortgage & Cost Calculators
Nearby Homes ?Nearby Homes — Search CriteriaSearch Radius1 kmPrice Range±5%Match BedroomsYesMatch BathroomsYes

13 CHESTER STREET, Guelph (Exhibition Park)
Duplex$699,000
Listing Courtesy of CITYSCAPE REAL ESTATE LTD.

UNIT 2 - 210 SPEEDVALE AVENUE E, Guelph (Riverside Park)
Duplex$1,250/mo
Listing Courtesy of RIGHT AT HOME REALTY
Similar Homes ?Similar Homes — Search CriteriaSearch Radius5 kmPrice Range±5%Match Home TypeYesMatch BedroomsYes

13 CHESTER STREET, Guelph (Exhibition Park)
Duplex$699,000
Listing Courtesy of CITYSCAPE REAL ESTATE LTD.

224 MITCHELL STREET, Port Colborne (East Village)
Other$699,000
$5,499/yr taxListing Courtesy of RE/MAX NIAGARA REALTY LTD, BROKERAGE

155 MAPLE AVENUE, Barrie (City Centre)
Duplex$699,000
$4,871/yr taxListing Courtesy of RE/MAX HALLMARK CHAY REALTY

3823 DROUIN ROAD, Clarence-Rockland
Duplex$699,000
$3,408/yr taxListing Courtesy of ROYAL LEPAGE INTEGRITY REALTY

43 LAKE AVENUE N, Hamilton (Riverdale)
Duplex$699,000
$4,147/yr taxListing Courtesy of ROYAL LEPAGE SIGNATURE REALTY

374 LOUISA Street, Kitchener
Duplex$699,000
$4,545/yr taxListing Courtesy of Chestnut Park Realty Southwestern Ontario Limited

248 MAIN STREET, Cambridge
Triplex$699,000
$5,452/yr taxListing Courtesy of HomeLife Power Realty Inc

19 WOLF STREET, Tillsonburg
Triplex$699,000
$3,222/yr taxListing Courtesy of Dotted Line Real Estate Inc Brokerage

29 GIBSON Avenue, Hamilton
Duplex$699,000
$3,133/yr taxListing Courtesy of Real Broker Ontario Ltd.

29 GIBSON AVENUE, Hamilton (Gibson)
Other$699,000
$3,133/yr taxListing Courtesy of REAL BROKER ONTARIO LTD.

58 EAST AVENUE S, Hamilton (Stinson)
Triplex$699,000
$5,135/yr taxListing Courtesy of ROYAL LEPAGE REAL ESTATE SERVICES LTD.

374 LOUISA STREET, Kitchener
Duplex$699,000
$4,545/yr taxListing Courtesy of CHESTNUT PARK REALTY(SOUTHWESTERN ONTARIO) LTD

106 KENT STREET, London East (East F)
Other$699,000
$8,717/yr taxListing Courtesy of ROYAL LEPAGE TRILAND REALTY

121 CUMBERLAND STREET, Barrie (Allandale)
Duplex$699,888
$4,743/yr taxListing Courtesy of CENTURY 21 B.J. ROTH REALTY LTD.

72 ST JEROME Crescent, Kitchener
Duplex$699,900
$5,033/yr taxListing Courtesy of RE/MAX Twin City Realty Inc.
Similar Properties ?Active Comparables — Search CriteriaSearch Radius2 kmPrice Range±5%Match Home TypeYesMatch BedroomsYes
No rental comparables found in this area.
Sold Comparables
Access to sold property data requires a registered and verified account with TRREB DDF integration.
Coming SoonRented Comparables
Access to rented property data requires a registered and verified account with TRREB DDF integration.
Coming SoonBook a Viewing
11 CHESTER STREET, Guelph (Exhibition Park), Ontario, N1H1K7
