109 GRANDORE STREET, Georgian Bluffs, Ontario, N0H2T0
MLS: X12833688 | House (Freehold)
$899,000



















































Property Description
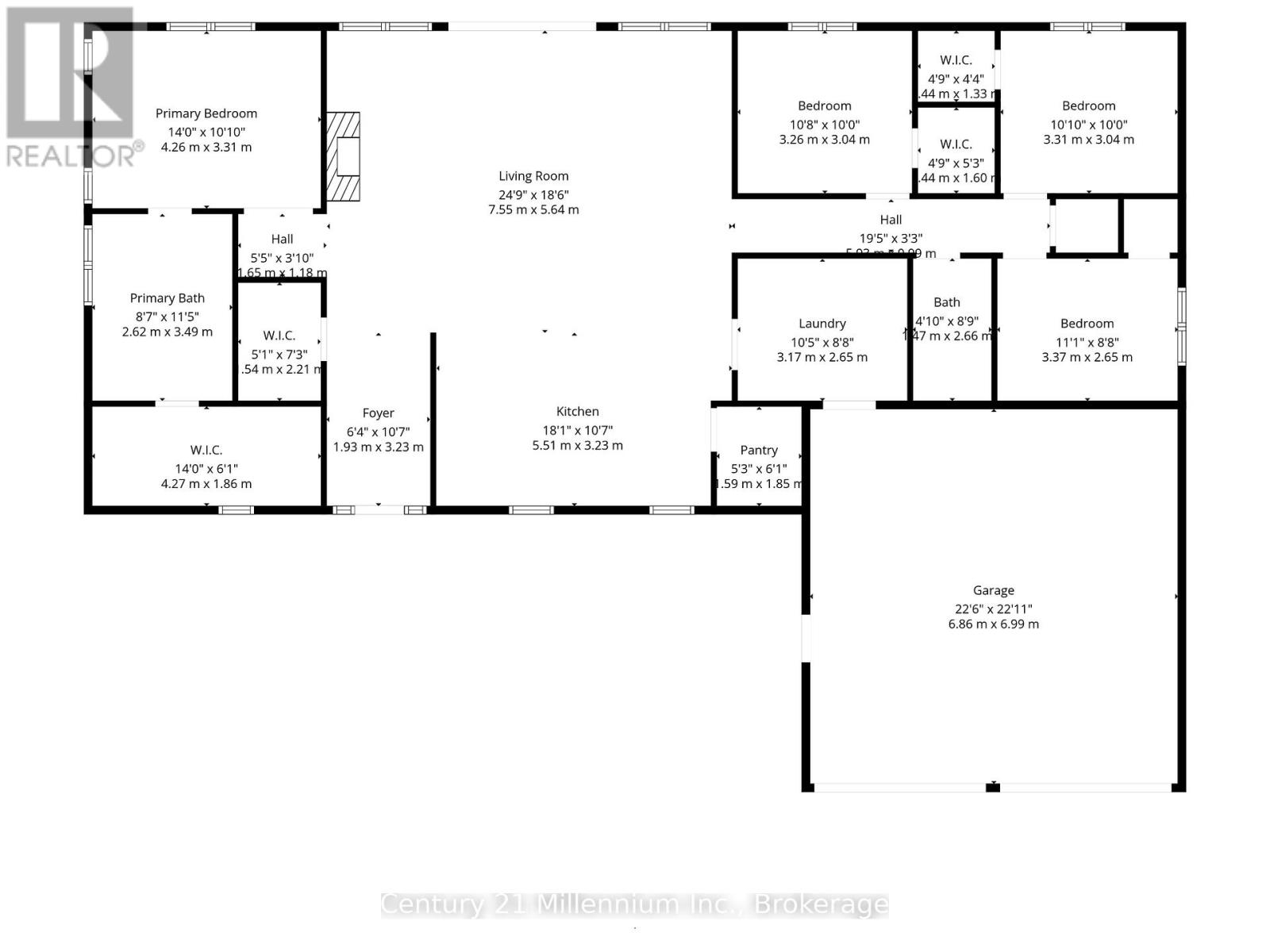
Welcome to 109 Grandore Street, an exceptional custom residence nestled within the prestigious Grandore subdivision of Georgian Bluffs - just steps from deeded access to the crystal waters of Georgian Bay. Built in 2020, this meticulously maintained 4-bedroom, 2-bathroom home showcases refined finishes, thoughtful design, and elevated comfort throughout, with natural gas servicing - a rare offering outside town limits. A charming covered front porch creates inviting curb appeal and the perfect space to relax and unwind. The heart of the home features a breathtaking open-concept living space highlighted by a soaring vaulted ceiling, cozy fireplace, and seamless flow into the dining area and chef-inspired kitchen complete with a generous island, oversized sink, walk-in pantry, gas range, and premium stainless steel appliances. The primary retreat offers a spa-inspired ensuite with exquisite tile work, double vanity, walk-in glass shower, deep soaker tub, and convenient walkthrough access to the expansive walk-in closet. A spacious foyer and functional mudroom add everyday practicality, while the heated attached double garage with in-floor heating - currently configured as a workout studio - provides versatility and year-round comfort. Set on a generous 100' x 220' lot, the property offers future potential with plans available for a detached garage. The extended driveway leads to the backyard featuring a concrete patio and charming fire pit area - perfect for entertaining while enjoying year round sunsets and spectacular views of Georgian Bay. Ideally located minutes from Wiarton and close to the Wiarton Golf Club, Bruce Trail hiking, and Bruce's Caves, this remarkable home blends luxury, lifestyle, and location for an exceptional Georgian Bay living experience. (id:64974)
Quick Facts
- Property Type: House (Freehold)
- Style: Bungalow
- Bedrooms: 4 (4 above)
- Bathrooms: 2
- Ownership: Freehold
- Attached: No
- Fireplaces: Yes
- Parking: 6 spaces (Attached Garage, Garage)
- Frontage: 100 ft (30.5 m)
Costs
- Annual Taxes: $4,282.00 (2025)
Listing Provided by: Century 21 Millennium Inc.
Board: OnePoint Association of REALTORS®
Data provided via CREA DDF®.
Detailed Features
Interior & Systems
- Heating: Forced air, Natural gas
- Cooling: Central air conditioning
- Basement: Crawl space
- Appliances: Washer, Refrigerator, Stove, Dryer, Microwave, Garage door opener remote(s)
- Utilities: Electricity, Cable
Exterior & Construction
- Style: Bungalow
- Exterior: Stone, Vinyl siding
- Foundation: Poured Concrete
- Sewer: Septic System
- Water: Municipal water
Lot & Land
- Frontage: 100 ft (30.5 m)
- Features: Carpet Free, Sump Pump
- Zoning: R1
Community & Neighbourhood
- Community: Community Centre
- Building: Fireplace(s)
- Neighbourhood: Georgian Bluffs
Room Details (11 rooms)
Listing Information
Listing History
Buy/Sell/Terminated/Expired listing history for 109 GRANDORE STREET, Georgian Bluffs, Ontario, N0H2T0
Location & Neighborhood
🚗 Travel times
Neighborhood Walkability
Mortgage & Cost Calculators
Nearby Homes (Within 2km)
Similar Homes
Similar Properties
No rental comparables found in this area.
Sold Comparables
Access to sold property data requires a registered and verified account with TRREB DDF integration.
Coming SoonRented Comparables
Access to rented property data requires a registered and verified account with TRREB DDF integration.
Coming Soon
















