108 - 30 WILLIAM JACKSON WAY, Toronto (New Toronto), Ontario, M8V0J7
MLS: W12852980 | Townhouse (Condo)
$768,000














































Property Description
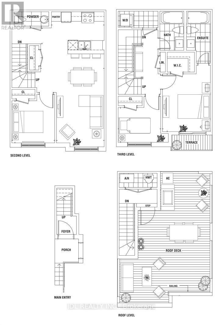
EV Parking included! Welcome to this newly built townhome by Menkes in vibrant New Toronto, just minutes from the lake! Offering over 1,300 sq ft plus a around 400 sq ft rooftop terrace, this South-Facing property features 3-bedroom and 2.5-bathroom. Main level with open-concept layout, 9-ft ceilings and large windows. Modern kitchen with quartz countertops and stainless steel appliances overlooks the spacious living and dining area. 1 bedroom on main floor, 2 bedrooms upstairs, including a primary suite with walk-in closet, Ensuite bath, and private balcony access. Upper floor laundry with additional storage space for added convenience. Upgraded EV parking (over $20K). Conveniently located minutes to TTC Lakeshore streetcar, Express Kipling bus, Mimico & Long Branch GO, Gardiner Express/ QEW/HWY 427, parks, waterfront trails, shops and dining. Walking distance to Humber College Lakeshore Campus, Gus Ryder Pool and Health Club, Ford Performance Centre. 15 Mins to Toronto Pearson Airport. Within the highly sought-after Holy Trinity Catholic School and Father John Redmond Catholic Secondary School (restrictions may apply)catchment. Tarion Warranty Coverage Still in Effect. (id:64974)
Quick Facts
- Property Type: Townhouse (Condo)
- Bedrooms: 3 (3 above)
- Bathrooms: 3 (1 half)
- Ownership: Condo/Strata
- Attached: Yes
- Parking: 1 space (Garage, Underground)
Costs
- Annual Taxes: $3,853.39
- Condo/HOA Fee: $380.52 / monthly
- Corp: Menres Property Management
- Includes: Common Area Maintenance, Insurance, Parking
Listing Provided by: JDL REALTY INC.
Board: Toronto Regional Real Estate Board
Data provided via CREA DDF®.
Detailed Features
Interior & Systems
- Heating: Forced air, Natural gas
- Cooling: Central air conditioning
- Basement: None
- Appliances: Washer, Refrigerator, Dishwasher, Stove, Dryer, Hood Fan, Window Coverings
- Flooring: Vinyl
Exterior & Construction
- Exterior: Brick
Community & Neighbourhood
- Community: Pets Allowed With Restrictions
- Neighbourhood: New Toronto
Room Details (6 rooms)
Listing Information
Listing History
Buy/Sell/Terminated/Expired listing history for 108 - 30 WILLIAM JACKSON WAY, Toronto (New Toronto), Ontario, M8V0J7
Location & Neighborhood
🚗 Travel times
Neighborhood Walkability
Mortgage & Cost Calculators
Nearby Homes (Within 2km)
Similar Homes
Similar Properties
No rental comparables found in this area.
Sold Comparables
Access to sold property data requires a registered and verified account with TRREB DDF integration.
Coming SoonRented Comparables
Access to rented property data requires a registered and verified account with TRREB DDF integration.
Coming Soon
























