105 - 275 QUEENS AVENUE, London East (East F), Ontario, N6B1X2
MLS: X12967728 | Apartment (Condo)
$259,900





















Property Description
Cute as a button! This 2-bedroom, 1-bathroom condo is located in the heart of downtown. Enjoy the updated bathroom and a refreshed kitchen featuring brand new countertops, sink, and modern taps. Hardwood flooring throughout, and luxury vinyl in the kitchen and bathroom. Perfect for urban living with convenient access to Canada Life Place Event Centre, Covent Garden Market, Victoria Park festivals, restaurants, shops, and more. Ideal for first-time buyers, downsizers, or investors seeking a potential turnkey opportunity. Furniture is negotiable for added convenience. Great value! (id:64974)
Quick Facts
- Property Type: Apartment (Condo)
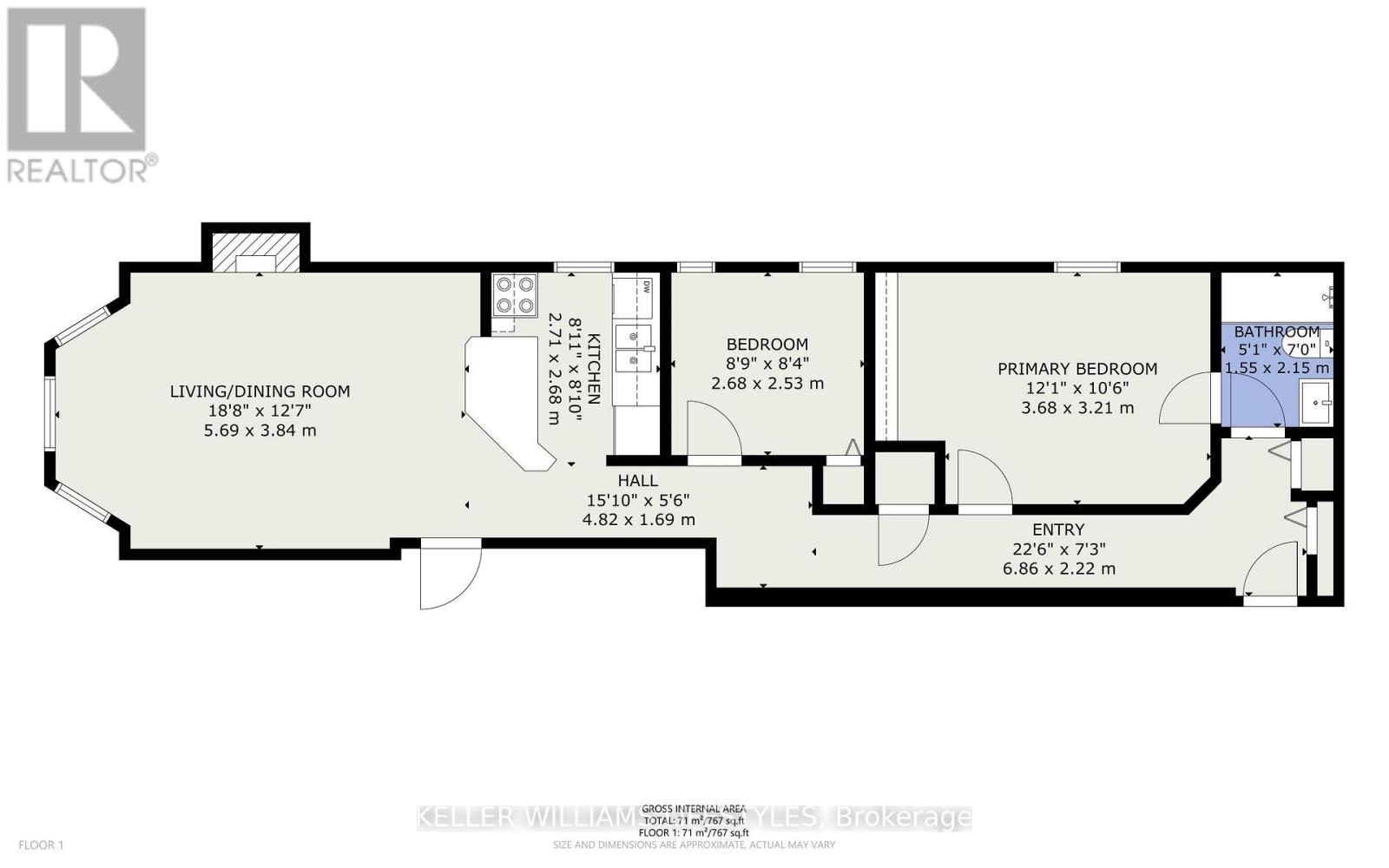
- Bedrooms: 2 (2 above)
- Bathrooms: 1
- Ownership: Condo/Strata
- Attached: Yes
- Fireplaces: Yes
- Parking: 1.0 space (No Garage)
Costs
- Annual Taxes: $3,051.00 (2025)
- Condo/HOA Fee: $666.54 / monthly
- Corp: Arnsby Property Managment
- Includes: Common Area Maintenance, Water, Insurance, Parking
Listing Provided by: KELLER WILLIAMS LIFESTYLES
Board: London and St. Thomas Association of REALTORS®
Data provided via CREA DDF®.
Detailed Features
Interior & Systems
- Heating: Forced air, Electric
- Cooling: Central air conditioning
- Basement: None
- Appliances: Washer, Refrigerator, Dishwasher, Oven, Dryer, Window Coverings
Exterior & Construction
- Exterior: Brick
Lot & Land
- Features: In suite Laundry
- View: City view
- Zoning: CF1 OR
Community & Neighbourhood
- Community: Pets Allowed With Restrictions
- Building: Storage - Locker
- Neighbourhood: East F
Room Details (5 rooms)
Listing Information
Listing History
Buy/Sell/Terminated/Expired listing history for 105 - 275 QUEENS AVENUE, London East (East F), Ontario, N6B1X2
Location & Neighborhood
🚗 Travel times
Neighborhood Walkability
Mortgage & Cost Calculators
Nearby Homes (Within 2km)
Similar Homes
Similar Properties
No rental comparables found in this area.
Sold Comparables
Access to sold property data requires a registered and verified account with TRREB DDF integration.
Coming SoonRented Comparables
Access to rented property data requires a registered and verified account with TRREB DDF integration.
Coming Soon























