1039 GRACE RIVER ROAD, Highlands East (Monmouth), Ontario, K0L3C0
MLS: X12536296 | House (Freehold)
$400,000














































Property Description
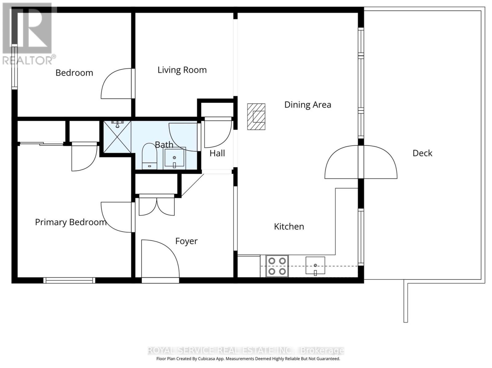
Welcome to this charming four-season retreat on Grace River Road in Wilberforce-a lovingly maintained 2-bedroom, 1-bath home that combines privacy with convenience. Tucked on a dead-end road within steps of the public boat launch for quick water access, the property is framed by mature forest yet features lush lawns and beautifully landscaped gardens bursting with perennials; mornings here begin with spectacular sunrises from the front deck. The open-concept kitchen, dining and living area has been updated with a big picture window (2024) and bedroom window (2025) that flood the space with light, while an efficient gas fireplace keeps things cozy; a U-shaped kitchen offers plenty of cabinetry and counter space. Outside you'll find a detached single-car garage plus several outbuildings, and both the bunkie and large shed have electricity, providing ample storage and extra sleeping space for overnight guests. Recent improvements include roofs on the house, garage and outbuildings replaced about seven years ago, most windows replaced over time for energy efficiency, a fridge and stove about three years old, and an owned hot water tank; there's also a gas generator for peace of mind. The home sits on a year-round plowed road in a private and quiet setting, and Wilberforce offers all the amenities you need: pickleball and tennis courts, curling club, arena, grocery store, gas station, general store, new park, post office, library, fire hall, paramedics and more. From this base you can explore nearby lakes by boat, enjoy paddling and beach days, wander the scenic hiking trails, ride the snowmobile and ATV routes and take part in community events like the annual summer fair. Move-in ready but brimming with potential, this property is ideal as a full-time residence or getaway for those who crave four-season adventure and the comforts of small-town living without sacrificing modern convenience. Watch the virtual tour & book your showing today! (id:64974)
Quick Facts
- Property Type: House (Freehold)
- Style: Bungalow
- Bedrooms: 2 (2 above)
- Bathrooms: 1
- Ownership: Freehold
- Attached: No
- Fireplaces: 1
- Parking: 4 spaces (Detached Garage, Garage)
- Frontage: 116 ft (35.2 m)
Costs
- Annual Taxes: $1,208.44
Listing Provided by: ROYAL SERVICE REAL ESTATE INC.
Board: Central Lakes Association of REALTORS®
Data provided via CREA DDF®.
Detailed Features
Interior & Systems
- Heating: Baseboard heaters, Propane
- Cooling: None
- Basement: Crawl space
- Appliances: Washer, Refrigerator, Stove, Hood Fan, Furniture, Window Coverings, Garage door opener, Water Heater
- Flooring: Laminate
- Utilities: Electricity
- Security: Security system, Smoke Detectors
Exterior & Construction
- Style: Bungalow
- Exterior: Vinyl siding
- Foundation: Block
- Sewer: Septic System
Lot & Land
- Frontage: 116 ft (35.2 m)
- Features: Carpet Free, Gazebo
Community & Neighbourhood
- Community: School Bus
- Building: Fireplace(s)
- Neighbourhood: Monmouth
Room Details (6 rooms)
Listing Information
Listing History
Buy/Sell/Terminated/Expired listing history for 1039 GRACE RIVER ROAD, Highlands East (Monmouth), Ontario, K0L3C0
Location & Neighborhood
🚗 Travel times
Neighborhood Walkability
Mortgage & Cost Calculators
Nearby Homes (Within 2km)
Similar Homes
Similar Properties
No rental comparables found in this area.
Sold Comparables
Access to sold property data requires a registered and verified account with TRREB DDF integration.
Coming SoonRented Comparables
Access to rented property data requires a registered and verified account with TRREB DDF integration.
Coming Soon












