103 BISCAYNE CRESCENT, Orangeville, Ontario, L9W5E5
MLS: W12957856 | House (Freehold)
$879,988
















































Property Description
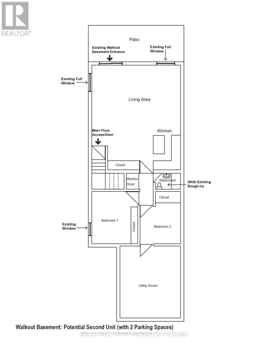
Absolutely Stunning Sunvale "Bristol" Model Bungalow Located In The Highly Desirable West End Of Orangeville, Close To Top-Rated Schools, Parks, Recreation Centre-Alder Arena, Conservation Park, Trail, Waterpark, Public Transit, Shopping, And Dining. This Beautifully Renovated Home Features A Bright Open-Concept Layout With Vaulted Ceilings In The Living And Dining Areas, Enhanced By Double Skylights. The Upgraded Kitchen Showcases Quartz Countertops, White Cabinetry, Stainless Steel Appliances, And A Brand-New Dishwasher. The Spacious Master Bedroom Includes A Walk-In Closet And A Modern 3-Piece Ensuite With Quartz Countertop And Standing Shower, While The Second Bedroom Offers A Double-Door Closet And Access To An Upgraded 4-Piece Main Bath With Quartz Finishes. Enjoy The Convenience Of Main-Floor Laundry And Direct Garage Access. Spacious Finished (Partially) Walkout Basement with Large Space of Unfinished - 474 Sq. Ft. - Available to add Kitchen, Bath. The Entire Lower Level can be converted into a Two Bedrooms Second Dwelling -Perfect For An Extended Family Or Potential Rental Income. Additional Features Include White Flooring Throughout, A Garage Door Opener With Remote, And A Water Softener (Not Connected). Above Grade Finished Area consists of 1098 Sq.Ft on Main Level PLUS 478 Sq. Ft. Lower Level. A Move-In-Ready Home Offering Style & Space. True Gem - Must See!! Walkout Basement - Potential Second Unit (With 2 Parking Spaces) (id:64974)
Quick Facts
- Property Type: House (Freehold)
- Style: Bungalow
- Bedrooms: 2 (2 above)
- Bathrooms: 2
- Ownership: Freehold
- Attached: No
- Parking: 5.0 spaces (Garage)
- Frontage: 32 ft (9.8 m)
Costs
- Annual Taxes: $5,507.00
Listing Provided by: RE/MAX REAL ESTATE CENTRE INC.
Board: Toronto Regional Real Estate Board
Data provided via CREA DDF®.
Detailed Features
Interior & Systems
- Heating: Forced air, Natural gas
- Cooling: Central air conditioning
- Basement: Partially finished, Walk out, N/A, N/A
- Appliances: All, Washer, Refrigerator, Water softener, Dishwasher, Stove, Dryer, Hood Fan
- Flooring: Laminate, Carpeted
- Utilities: Sewer, Electricity, Cable
- Security: Smoke Detectors
Exterior & Construction
- Style: Bungalow
- Exterior: Brick
- Foundation: Poured Concrete
- Sewer: Sanitary sewer
- Water: Municipal water, Unknown
Lot & Land
- Frontage: 32 ft (9.8 m)
- Features: Conservation/green belt
- View: View
Community & Neighbourhood
- Community: Community Centre
- Neighbourhood: Orangeville
Room Details (7 rooms)
Listing Information
Listing History
MLS listing activity for 103 BISCAYNE CRESCENT, Orangeville, Ontario, L9W5E5 — dates reflect when changes were recorded in the DDF
🚗 Travel times
Neighborhood Walkability
Mortgage & Cost Calculators
Nearby Homes ?Nearby Homes — Search CriteriaSearch Radius1 kmPrice Range±5%Match BedroomsYesMatch BathroomsYes

82 SPENCER AVENUE, Orangeville
House$1,099,000
$6,959/yr taxListing Courtesy of ROYAL LEPAGE RCR REALTY

55 ABBEY ROAD, Orangeville
House$1,075,000
$6,792/yr taxListing Courtesy of ROYAL LEPAGE RCR REALTY

14 SANDRINGHAM CIRCLE, Orangeville
House$1,199,900
$9,228/yr taxListing Courtesy of RE/MAX REAL ESTATE CENTRE INC.

26 WINTERTON COURT, Orangeville
Row / Townhouse$749,000
$5,113/yr taxListing Courtesy of HOMELIFE/MIRACLE REALTY LTD

14 WINTERTON COURT, Orangeville
Row / Townhouse$749,000
$5,053/yr taxListing Courtesy of CITYSCAPE REAL ESTATE LTD.

11 WINTERTON COURT, Orangeville
Row / Townhouse$759,999
$4,871/yr taxListing Courtesy of RE/MAX REAL ESTATE CENTRE INC.

15 WINTERTON COURT, Orangeville
Single Family$770,000
$5,008/yr taxListing Courtesy of Royal Lepage Real Estate Associates

15 WINTERTON COURT, Orangeville
Row / Townhouse$755,000
$5,008/yr taxListing Courtesy of Royal Lepage Real Estate Associates

114 WINTERTON COURT, Orangeville
Row / Townhouse$715,000
$4,539/yr taxListing Courtesy of Royal Lepage Real Estate Associates

88 WINTERTON COURT N, Orangeville
Row / Townhouse$749,900
$5,007/yr taxListing Courtesy of RIGHT AT HOME REALTY

110 WINTERTON COURT, Orangeville
Row / Townhouse$699,000
$5,053/yr taxListing Courtesy of Royal Lepage Real Estate Associates

29 ALDER STREET, Orangeville
House$1,049,900
$7,065/yr taxListing Courtesy of REAL BROKER ONTARIO LTD.

29 ALDER Street, Orangeville
House$1,049,900
$7,065/yr taxListing Courtesy of Real Broker Ontario Ltd.

307 BALSAM STREET, Orangeville
Row / Townhouse$649,000
$4,493/yr taxListing Courtesy of SAGE REAL ESTATE LIMITED

16 HILLTOP CRESCENT, East Garafraxa
House$1,599,999
$8,203/yr taxListing Courtesy of ROYAL LEPAGE SIGNATURE REALTY
Similar Homes ?Similar Homes — Search CriteriaSearch Radius5 kmPrice Range±5%Match Home TypeYesMatch BedroomsYes

1429 QUEEN STREET, Caledon (Alton)
House$899,900
$3,227/yr taxListing Courtesy of ROYAL LEPAGE RCR REALTY

5631 HIGHWAY 30 HIGHWAY, Trent Hills
Other$879,990
$5,185/yr taxListing Courtesy of KINGSWAY REAL ESTATE

263 PETTIGREW TRAIL, Milton (DE Dempsey)
House$879,990
$3,601/yr taxListing Courtesy of ROYAL LEPAGE SIGNATURE REALTY

14 REGINALD Street, Hamilton
House$879,997
$6,318/yr taxListing Courtesy of Coldwell Banker Community Professionals

14 REGINALD STREET, Hamilton (Kirkendall)
House$879,997
$6,318/yr taxListing Courtesy of COLDWELL BANKER COMMUNITY PROFESSIONALS

2209 Linkway BOULEVARD, London
House$879,999
$8,130/yr taxListing Courtesy of ADVANCED REALTY SOLUTIONS INC.

189 CHURCH STREET, Stirling-Rawdon (Stirling Ward)
House$879,999
$6,750/yr taxListing Courtesy of EXIT REALTY GROUP

110 DWYER DRIVE, Brampton (Gore Industrial North)
House$879,999
$5,439/yr taxListing Courtesy of RE/MAX REALTY SERVICES INC.

17 ARCHIBALD STREET, Brampton (Brampton West)
House$879,999
$5,319/yr taxListing Courtesy of Keller Williams Home Group Realty

141 STARWOOD DR, Guelph (Grange Road)
House$879,999
$6,360/yr taxListing Courtesy of TRIMAXX REALTY LTD.

703 - 11 WELLESLEY STREET W, Toronto (Bay Street Corridor)
Condo - Apartment$880,000
$4,200/yr taxListing Courtesy of EVERLAND REALTY INC.

628 HALDIMAND RD 17, Haldimand (Dunnville)
House$880,000
$4,609/yr taxListing Courtesy of RE/MAX ESCARPMENT REALTY INC.

322 - 20 BURKEBROOK PLACE, Toronto (Bridle Path-Sunnybrook-York Mills)
Condo - Apartment$880,000
$4,434/yr taxListing Courtesy of HC REALTY GROUP INC.

102 WYCLIFFE COVE, Tay (Victoria Harbour)
Row / Townhouse$880,000
$5,039/yr taxListing Courtesy of Royal LePage In Touch Realty

405 - 90 NIAGARA STREET, Toronto (Niagara)
Condo - Apartment$880,000
$4,215/yr taxListing Courtesy of ROYAL LEPAGE/J & D DIVISION
Similar Properties ?Active Comparables — Search CriteriaSearch Radius2 kmPrice Range±5%Match Home TypeYesMatch BedroomsYes
No active comparables found in this area.
No rental comparables found in this area.
Sold Comparables
Access to sold property data requires a registered and verified account with TRREB DDF integration.
Coming SoonRented Comparables
Access to rented property data requires a registered and verified account with TRREB DDF integration.
Coming SoonBook a Viewing
103 BISCAYNE CRESCENT, Orangeville, Ontario, L9W5E5
