10221 SHORELINE DRIVE, Lambton Shores (Grand Bend), Ontario, N0M1T0
MLS: X12858580 | House (Freehold)
$1,499,500




















































Property Description
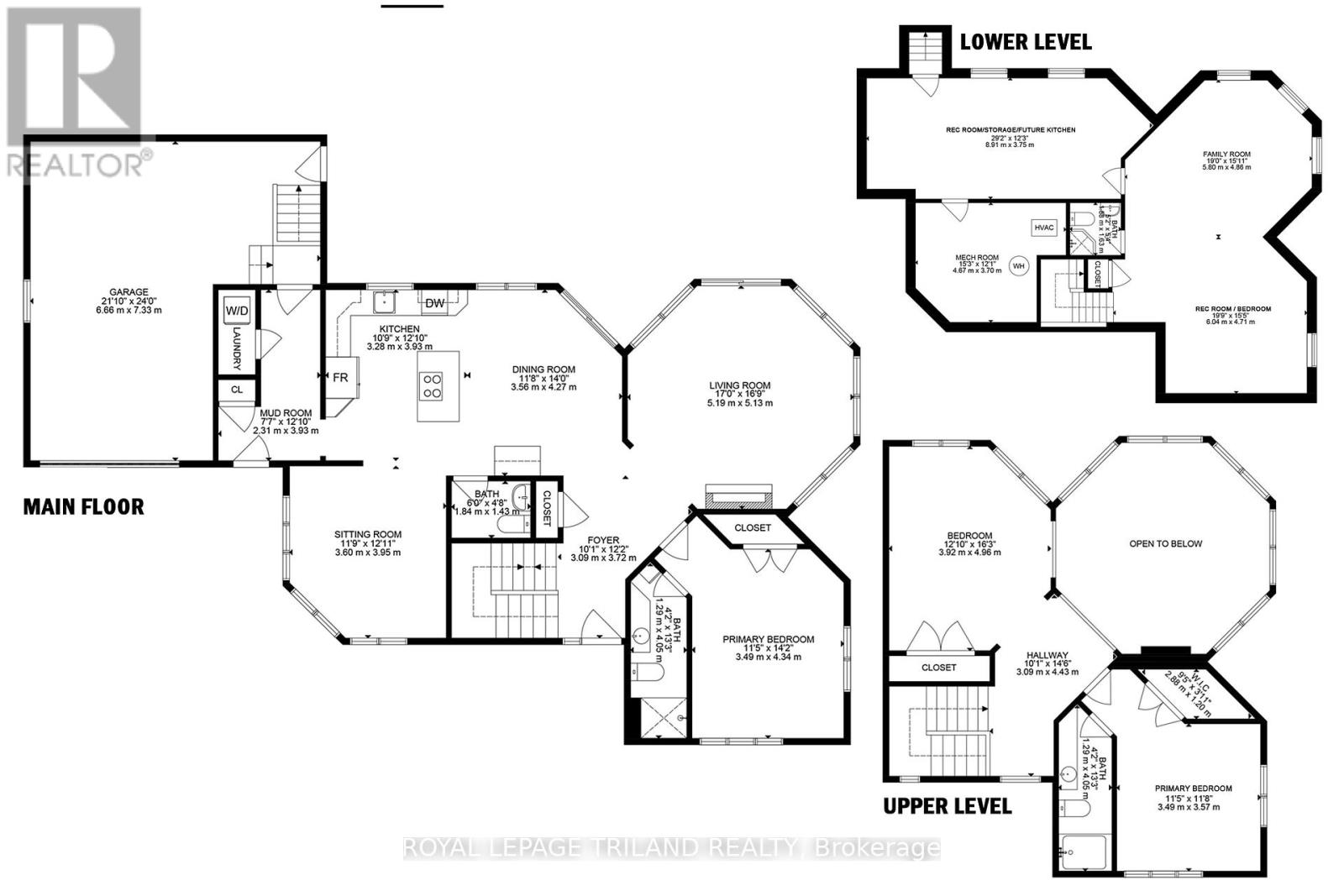
SOUTHCOTT PINES PREMIUM LOCATION 1 ROW FROM LAKEFRONT | GRAND BEND DEEDED BEACH LIVING AT ITS BEST w/ MASTER BED WINDOW 100 MTRS FROM THE SOUND OF WAVES LAPPING UP ON SHORELINE | EXQUISITE & YOUNG ARTS & CRAFTS 4 SEASON CUSTOM HOME BY STEEPER | 2 MASTER SUITES | IN-FLOOR HEAT | SENSATIONAL OCTAGONAL 21 FT FIREPLACE GREAT ROOM w/ FLOOR to CEILING WINDOWS FRAMING IN A PRIVATE FOREST | EXCEPTIONALLY SECLUDED LOT! This 4 bath 3 bed (+ "4th bed" bunky/sleeping area in lower) offers 2800 SQ FT of impeccably well-kept & well-finished living space w/ another 600 SQ FT of unfinished floor space to grow into in lower (3452 SQ FT floorspace total). The layout offers something for everyone in the family w/ a main level master w/ ensuite bath, a spacious cherry kitchen/dining area walking out to the natural gas serviced BBQ deck & featuring tasteful granite & a large island + tons of cabinet space & a premium cabinet ready fridge, a large sitting room/formal dining room/or 4th bed, mud room, addt'l bathroom, & main level laundry. The most impressive main level space however, which is possibly one of the most extraordinary rooms in Southcott Pines, is the 21 FT high octagonal fireplace great room walking out to a large sundeck & overlooking mature pines & oaks w/o a neighbor in sight! This room alone is a feature that was a significant upgrade on this impressive custom home, along w/ the Romeo & Juliette balcony style bedroom looking down into this incredible space from the 2nd floor. Also on floor 2, you get a 2nd master suite w/ ensuite bath & walk-in closet + a handy office area at the top of the open staircase. The lower level, all over in-floor radiant gas heat, offers a large open space w/ a family room + a sleeping area (4th bed), a full bath (4th bath) along w/ a separate entrance from the garage fostering massive potential for a 2nd suite! Serious value here folks, w/ low maint. gorgeous stone & perennial landscaping to enjoy as you take that 1 min walk to the beach! (id:64974)
Quick Facts
- Property Type: House (Freehold)
- Bedrooms: 4 (3 above, 1 below)
- Bathrooms: 4 (1 half)
- Ownership: Freehold
- Attached: No
- Fireplaces: 1
- Parking: 7 spaces (Attached Garage, Garage, Inside Entry)
- Frontage: 100 ft (30.5 m)
Costs
- Annual Taxes: $7,779.00
Listing Provided by: ROYAL LEPAGE TRILAND REALTY
Board: London and St. Thomas Association of REALTORS®
Data provided via CREA DDF®.
Detailed Features
Interior & Systems
- Heating: Forced air, Natural gas
- Cooling: Central air conditioning, Air exchanger, Ventilation system
- Basement: Partially finished, Separate entrance, N/A, N/A
- Appliances: All, Central Vacuum, Garage door opener remote(s), Water Heater
- Utilities: Electricity, Cable
- Security: Smoke Detectors
- Fireplace Features: Insert
Exterior & Construction
- Exterior: Wood, Cedar Siding
- Foundation: Poured Concrete
- Sewer: Septic System
- Water: Municipal water
Lot & Land
- Frontage: 100 ft (30.5 m)
- Features: Wooded area, Flat site, Lighting, Dry
- Water Body: Lake Huron
- Zoning: R6-2 Lambton Shores
Community & Neighbourhood
- Community: School Bus
- Building: Fireplace(s)
- Neighbourhood: Grand Bend
Room Details (16 rooms)
Listing Information
Listing History
Buy/Sell/Terminated/Expired listing history for 10221 SHORELINE DRIVE, Lambton Shores (Grand Bend), Ontario, N0M1T0
Location & Neighborhood
🚗 Travel times
Neighborhood Walkability
Mortgage & Cost Calculators
Nearby Homes (Within 2km)
Similar Homes
Similar Properties
No rental comparables found in this area.
Sold Comparables
Access to sold property data requires a registered and verified account with TRREB DDF integration.
Coming SoonRented Comparables
Access to rented property data requires a registered and verified account with TRREB DDF integration.
Coming Soon























