10208 TENTH LINE, Halton Hills (Georgetown), Ontario, L0P1K0
MLS: W12787732 | House (Freehold)
$1,650,000

















































Property Description
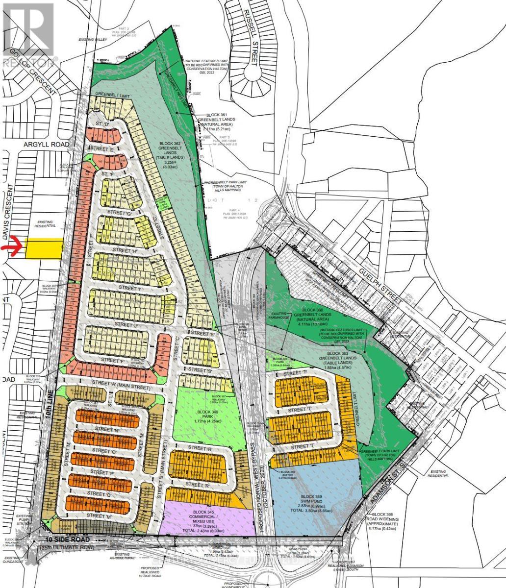
Custom House or Future development Opportunity. A rare opportunity to secure a premium 3/4 acre lot with a 125ft front right in the city, directly across from the approved Southeast Georgetown Secondary Plan community. This oversized parcel offers exceptional potential -whether you're an investor seeking a future development opportunity in a rapidly growing corridor, or an end user looking to build a stunning custom house on one of the few large lots remaining on the street. With major residential growth, parks, trails, and mixed-use development planned across the road, this property also presents strong long-term upside and potential for multi-residential or redevelopment possibilities (subject to approvals). A strategic land hold or a showcase custom home site - the choice is yours. The existing bungalow on a full treed lot with privacy features 3+1bedrooms, a basement with a separate entrance, and an amazing kitchen overlooking the serene backyard - ideal for both everyday living and entertaining. The private outdoor oasis is complete with an inground concrete pool and stylish bar, creating the perfect setting for summer gatherings. A large driveway provides ample parking, and the location offers quick access to Brampton and Mississauga while being within walking distance to banks, grocery stores, and restaurants. Whether you choose to move in as is, renovate and personalize, or explore future development potential, the existing home is in excellent condition and presents a fantastic opportunity for homeowners and investors alike. (id:64974)
Quick Facts
- Property Type: House (Freehold)
- Style: Bungalow
- Bedrooms: 4 (3 above, 1 below)
- Bathrooms: 2 (1 half)
- Ownership: Freehold
- Attached: No
- Parking: 12 spaces (Attached Garage, Garage)
- Frontage: 125 ft (38.2 m)
Costs
- Annual Taxes: $6,803.00
Listing Provided by: CENTURY 21 PERCY FULTON LTD.
Board: Toronto Regional Real Estate Board
Data provided via CREA DDF®.
Detailed Features
Interior & Systems
- Heating: Forced air, Natural gas
- Cooling: Central air conditioning
- Basement: Finished, Separate entrance, N/A, N/A
- Appliances: Washer, Refrigerator, Dishwasher, Stove, Dryer
Exterior & Construction
- Style: Bungalow
- Exterior: Brick
- Foundation: Unknown
- Sewer: Septic System
- Water: Municipal water
Lot & Land
- Frontage: 125 ft (38.2 m)
- Pool: Inground pool
Community & Neighbourhood
- Neighbourhood: Georgetown
Listing Information
Listing History
Buy/Sell/Terminated/Expired listing history for 10208 TENTH LINE, Halton Hills (Georgetown), Ontario, L0P1K0
Location & Neighborhood
🚗 Travel times
Neighborhood Walkability
Mortgage & Cost Calculators
Nearby Homes (Within 2km)
Similar Homes
Similar Properties
No rental comparables found in this area.
Sold Comparables
Access to sold property data requires a registered and verified account with TRREB DDF integration.
Coming SoonRented Comparables
Access to rented property data requires a registered and verified account with TRREB DDF integration.
Coming Soon
























