102 ROYAL AVENUE, Hamilton (Ainslie Wood), Ontario, L8S2C6
MLS: X12864716 | House (Freehold)
$789,000










































Property Description
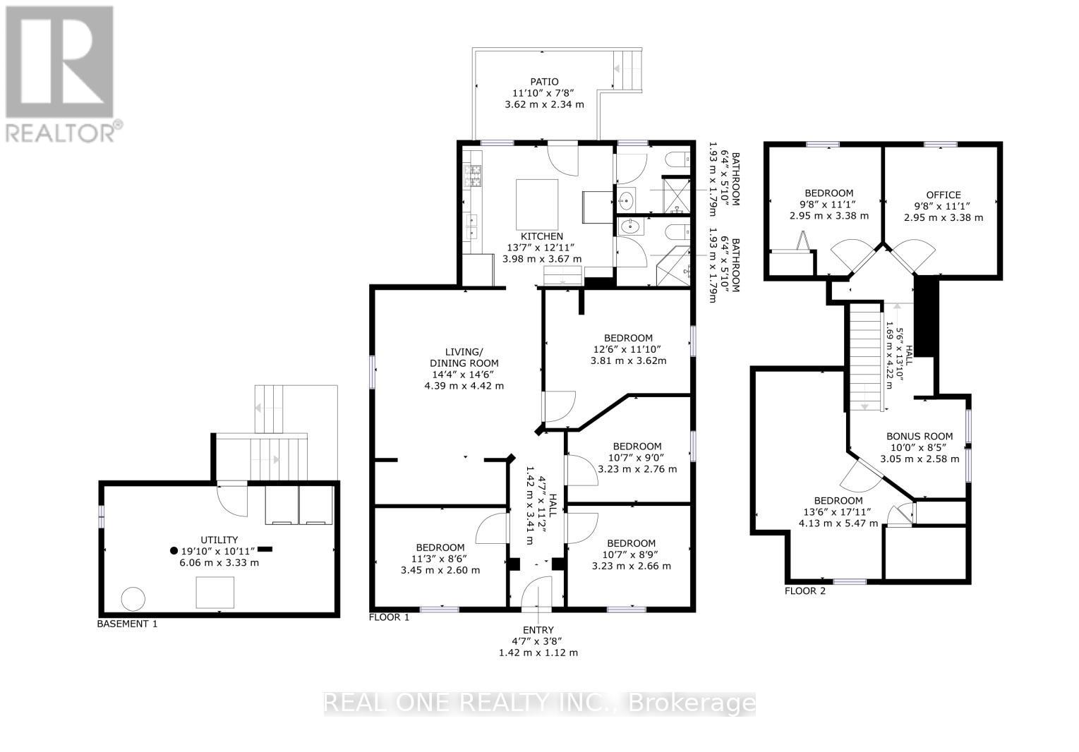
Top 2 Reasons To Buy This Property: ***Reason #1. Rare 7 Aboveground Bedrooms! Extensive addition and renovation completed with legal building permit in 2013 .***Reason #2. Rare Double Sized Lot ! Situated on a large 50 ft X 100 ft lot. Most nearby properties are only 25 ft X100 ft, making this a rare double-sized lot with great redevelopment potential. Featuring 9-ft ceilings on the main floor, spacious layout, and nearly 1,900 sq ft of above-ground living space. Main Floor: 4 bright bedrooms with windows, large living and dining area, modern kitchen with central island w/ dishwasher! and two full 3-pc bathrooms. Second Floor: 3 additional bedrooms plus a cozy sitting area perfect for reading or relaxing.Basement includes furnace and laundry area. Rare driveway parking in this area. 10-minute walk (approx. 650 m) to McMaster University - highly desirable rental location in the quiet and safe Ainslie Wood neighbourhood. Roof (2013), Furnace (2013), Windows (2013), A/C (2019),Kitchen and Bathroom(2013). Copper wiring. Large backyard with storage shed. Perfect opportunity for investors or end users seeking strong rental income, large family living, or future redevelopment potential. Ideal student rental and excellent long-term hold with strong cash flow potential.***All existing furniture included in the sale except one stainless steel desk and one computer chair in the south bedroom on 2nd floor and one workbench in east bedroom on main floor. (id:64974)
Quick Facts
- Property Type: House (Freehold)
- Bedrooms: 7 (7 above)
- Bathrooms: 2
- Ownership: Freehold
- Attached: No
- Parking: 1 space (No Garage)
- Frontage: 50 ft (15.2 m)
Costs
- Annual Taxes: $6,392.76
Listing Provided by: REAL ONE REALTY INC.
Board: Toronto Regional Real Estate Board
Data provided via CREA DDF®.
Detailed Features
Interior & Systems
- Heating: Forced air, Natural gas
- Cooling: Central air conditioning
- Basement: Unfinished, Partial
- Appliances: Washer, Dishwasher, Stove, Dryer, Furniture, Two Refrigerators
Exterior & Construction
- Exterior: Stucco, Aluminum siding
- Foundation: Block
- Sewer: Sanitary sewer
- Water: Municipal water
Lot & Land
- Frontage: 50 ft (15.2 m)
Community & Neighbourhood
- Community: Community Centre
- Neighbourhood: Ainslie Wood
Room Details (9 rooms)
Listing Information
Listing History
Buy/Sell/Terminated/Expired listing history for 102 ROYAL AVENUE, Hamilton (Ainslie Wood), Ontario, L8S2C6
Location & Neighborhood
🚗 Travel times
Neighborhood Walkability
Mortgage & Cost Calculators
Nearby Homes (Within 2km)
Similar Homes
Similar Properties
No rental comparables found in this area.
Sold Comparables
Access to sold property data requires a registered and verified account with TRREB DDF integration.
Coming SoonRented Comparables
Access to rented property data requires a registered and verified account with TRREB DDF integration.
Coming Soon


























