1018 KERBY STREET, Fort Erie (Crescent Park), Ontario, L2A0B9
MLS: X12876428 | House (Freehold)
$829,999




























Property Description
This thoughtfully upgraded 4-bedroom, 3.5-bathroom home is nestled in a wonderful family-friendly neighbourhood, just steps from a park and playground and conveniently close to several excellent schools. Inside, the home offers both comfort and functionality with generous storage throughout, including a 2-car garage, walk-in closets, and a custom-built pantry designed to keep everyday living organized and efficient. Step outside to enjoy the expansive stamped-concrete patio, an ideal setting for summer BBQs and outdoor entertaining. The fully fenced backyard also features a cozy bonfire area-perfect for relaxing evenings under the stars with family and friends. The fully finished basement adds even more living space and flexibility, with the potential to easily convert it into a comfortable in-law suite. With its blend of space, thoughtful upgrades, and a location ideal for families, this home offers comfort, convenience, and room to grow. (id:64974)
Quick Facts
- Property Type: House (Freehold)
- Bedrooms: 4 (3 above, 1 below)
- Bathrooms: 4 (1 half)
- Ownership: Freehold
- Attached: No
- Fireplaces: 1
- Parking: 8 spaces (Attached Garage, Garage)
- Frontage: 17 ft (5.2 m)
Costs
- Annual Taxes: $6,092.00
Listing Provided by: REVEL Realty Inc., Brokerage
Board: Niagara Association of REALTORS®
Data provided via CREA DDF®.
Detailed Features
Interior & Systems
- Heating: Forced air, Natural gas
- Cooling: Central air conditioning
- Basement: Finished, N/A
- Appliances: Washer, Refrigerator, Dishwasher, Stove, Dryer, Hood Fan, Garage door opener, Garage door opener remote(s), Water Heater
Exterior & Construction
- Exterior: Vinyl siding, Brick Facing
- Foundation: Concrete
- Sewer: Sanitary sewer
- Water: Municipal water
Lot & Land
- Frontage: 17 ft (5.2 m)
- Features: Carpet Free
- Zoning: R2
Community & Neighbourhood
- Building: Fireplace(s)
- Neighbourhood: 334 - Crescent Park
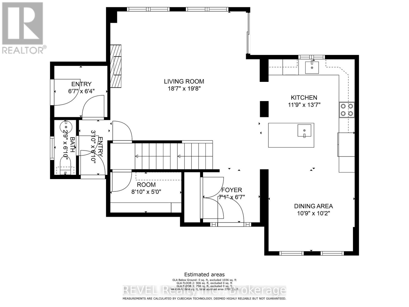
Room Details (16 rooms)
Listing Information
Listing History
Buy/Sell/Terminated/Expired listing history for 1018 KERBY STREET, Fort Erie (Crescent Park), Ontario, L2A0B9
Location & Neighborhood
🚗 Travel times
Neighborhood Walkability
Mortgage & Cost Calculators
Nearby Homes (Within 2km)
Similar Homes
Similar Properties
No rental comparables found in this area.
Sold Comparables
Access to sold property data requires a registered and verified account with TRREB DDF integration.
Coming SoonRented Comparables
Access to rented property data requires a registered and verified account with TRREB DDF integration.
Coming Soon



















