10137 MERRYWOOD DRIVE, Lambton Shores (Grand Bend), Ontario, N0M1T0
MLS: X12990026 | House (Freehold)
$1,649,900



Property Description
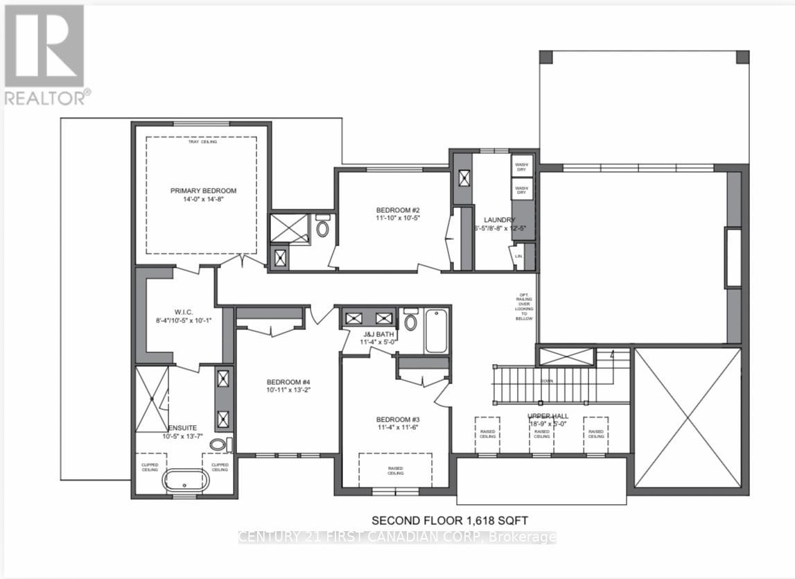
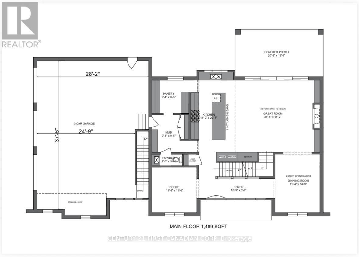
******TO BE BUILT*****Welcome to Merrywood Meadows in the custom built home by ROYAL OAK HOMES of LONDON. Elegance and Design come together. 2 Story 4 Bedroom 4 Bathroom with 3107 sq.ft above grade of luxury. A great family home layout with functionality. This vacant lot is located in one of the most sought after neighborhoods in Grand Bend. Far enough away from the crowds of the strip...close enough to walk to the beach. This location is a hidden gem and on a dead-end street. Very few neighbors and almost zero traffic. Build your dream house and enjoy the magic of Ontario's West Coast. The sunsets are legendary. There is hydro,gas,and water hook ups available. The property will require a septic system. This is one of the BIGGEST lots in this already well established neighborhood. Have your own plans or designs?? We can also help you out with that no problem. (id:64974)
Quick Facts
- Property Type: House (Freehold)
- Bedrooms: 4 (4 above)
- Bathrooms: 4 (1 half)
- Ownership: Freehold
- Attached: No
- Fireplaces: Yes
- Parking: 6.0 spaces (Attached Garage, Garage)
- Frontage: 102 ft (31.1 m)
Listing Provided by: CENTURY 21 FIRST CANADIAN CORP
Board: London and St. Thomas Association of REALTORS®
Data provided via CREA DDF®.
Detailed Features
Interior & Systems
- Heating: Forced air, Natural gas
- Cooling: Central air conditioning
- Basement: Full
Exterior & Construction
- Exterior: Brick, Hardboard
- Foundation: Poured Concrete
- Sewer: Septic System
- Water: Municipal water
Lot & Land
- Frontage: 102 ft (31.1 m)
- Features: Lighting
Community & Neighbourhood
- Neighbourhood: Grand Bend
Listing Information
Listing History
MLS listing activity for 10137 MERRYWOOD DRIVE, Lambton Shores (Grand Bend), Ontario, N0M1T0 — dates reflect when changes were recorded in the DDF
🚗 Travel times
Neighborhood Walkability
Mortgage & Cost Calculators
Nearby Homes ?Nearby Homes — Search CriteriaSearch Radius1 kmPrice Range±5%Match BedroomsYesMatch BathroomsYes

10159 MEADOWLILLY CRESCENT, Lambton Shores (Grand Bend)
House$1,149,900
$4,668/yr taxListing Courtesy of CENTURY 21 FIRST CANADIAN CORP

10175 MERRYWOOD DRIVE, Lambton Shores (Grand Bend)
House$1,699,900
$8,705/yr taxListing Courtesy of ROYAL LEPAGE TRILAND REALTY

10224 LAKEVIEW AVENUE, Lambton Shores (Grand Bend)
House$1,550,000
$10,549/yr taxListing Courtesy of PRIME REAL ESTATE BROKERAGE

10240 WOODPARK COURT, Lambton Shores (Grand Bend)
House$1,299,900
$5,287/yr taxListing Courtesy of KELLER WILLIAMS LIFESTYLES

10297 DOGWOOD CRESCENT, Lambton Shores (Grand Bend)
House$1,199,999
$6,351/yr taxListing Courtesy of SUTTON GROUP - SELECT REALTY

12 - 90 ONTARIO STREET S, Lambton Shores (Grand Bend)
Condo - Row / Townhouse$549,900
$2,799/yr taxListing Courtesy of CENTURY 21 FIRST CANADIAN CORP

46 ERIN PLACE, Lambton Shores (Grand Bend)
House$1,225,000
$6,613/yr taxListing Courtesy of OLIVER & ASSOCIATES TRUDY & IAN BUSTARD REAL ESTATE

49 GILL RD Road, Grand Bend
House$1,395,000
$6,156/yr taxListing Courtesy of RE/MAX TWIN CITY REALTY INC.

49 GILL ROAD, Lambton Shores (Grand Bend)
House$1,395,000
$6,156/yr taxListing Courtesy of RE/MAX TWIN CITY REALTY INC.
Similar Homes ?Similar Homes — Search CriteriaSearch Radius5 kmPrice Range±5%Match Home TypeYesMatch BedroomsYes

36241 GORE ROAD, South Huron (Stephen)
House$1,590,900
$6,408/yr taxListing Courtesy of Royal LePage Heartland Realty

21 CORVINELLI DRIVE, Whitby (Brooklin)
House$1,649,900
$10,897/yr taxListing Courtesy of ROYAL LEPAGE RCR REALTY

1 GRAHAM AVENUE, St. Catharines (Port Dalhousie)
House$1,649,900
$11,180/yr taxListing Courtesy of RE/MAX NIAGARA REALTY LTD, BROKERAGE

117 ALMUR DRIVE, Georgian Bluffs
House$1,649,900
$7,094/yr taxListing Courtesy of RE/MAX Grey Bruce Realty Inc.

6196 ELKWOOD DRIVE, Ottawa
House$1,649,900
$6,658/yr taxListing Courtesy of ROYAL LEPAGE TEAM REALTY

50 ROSENFELD CRESCENT, Ottawa
House$1,649,900
$8,246/yr taxListing Courtesy of ROYAL LEPAGE INTEGRITY REALTY

100 HARRIS CRESCENT, Southgate
House$1,649,900
$8,950/yr taxListing Courtesy of Royal LePage Royal City Realty

193 FAIRLANE CRESCENT, Vaughan (Vellore Village)
House$1,649,900
$6,272/yr taxListing Courtesy of RE/MAX EXPERTS

2882 B LINE Road, Pembroke
House$1,649,900
$6,800/yr taxListing Courtesy of Easy List Realty Ltd.

106 CONDUCTOR AVENUE, Whitchurch-Stouffville (Stouffville)
House$1,649,900
$7,997/yr taxListing Courtesy of RE/MAX ALL-STARS REALTY INC.

1049 GREAVES AVENUE, Mississauga (Lakeview)
House$1,649,900
$9,150/yr taxListing Courtesy of RIGHT AT HOME REALTY

67 JANEY AVENUE, North Bay (Airport)
House$1,649,900
$9,760/yr taxListing Courtesy of Royal LePage Northern Life Realty, Brokerage

2882 B LINE ROAD, Laurentian Valley
House$1,649,900
$6,800/yr taxListing Courtesy of EASY LIST REALTY LTD.

25 AYLIN CRESCENT, Vaughan (Patterson)
Row / Townhouse$1,649,900
$6,576/yr taxListing Courtesy of NORTH 2 SOUTH REALTY

96 TUYLL STREET, Bluewater (Bayfield)
House$1,649,900
$7,042/yr taxListing Courtesy of CENTURY 21 FIRST CANADIAN CORP
Similar Properties ?Active Comparables — Search CriteriaSearch Radius2 kmPrice Range±5%Match Home TypeYesMatch BedroomsYes
No active comparables found in this area.
No rental comparables found in this area.
Sold Comparables
Access to sold property data requires a registered and verified account with TRREB DDF integration.
Coming SoonRented Comparables
Access to rented property data requires a registered and verified account with TRREB DDF integration.
Coming SoonBook a Viewing
10137 MERRYWOOD DRIVE, Lambton Shores (Grand Bend), Ontario, N0M1T0
