100 SOUTH RANKIN STREET, Saugeen Shores, Ontario, N0H2L0
MLS: X12959984 | House (Freehold)
$559,000



































Property Description
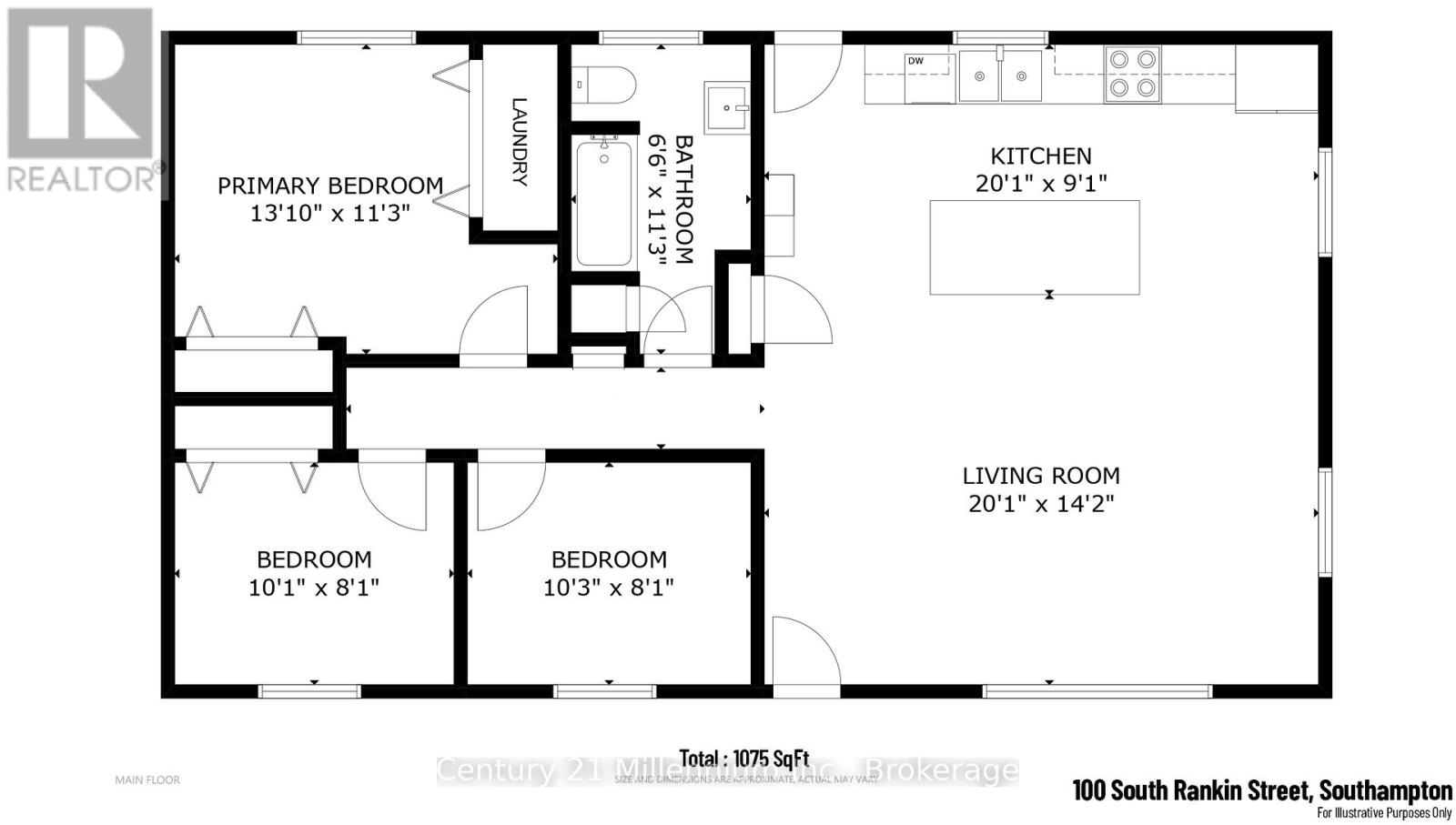
Three bedroom bungalow neatly tucked away offering the perfect blend of privacy, proximity, and poolside living! Follow the charming garden fence along the lane and step into your own private oasis-an inviting space designed for relaxed days and easy entertaining. With plenty of parking for family and friends, hosting weekend get-togethers or spontaneous summer visits is effortless.Inside, the home opens into a bright, spacious living area anchored by a large central island-ideal for casual meals, morning coffee, or gathering with loved ones. The updated kitchen features easy-care vinyl tile flooring, making cleanup a breeze so you can spend more time enjoying life. Whether you're unwinding with a good book or sharing laughter with friends, this open-concept space adapts beautifully to every mood.All three bedrooms are thoughtfully laid out, complemented by a convenient built-in laundry suite and a full, updated bathroom. Tasteful décor throughout creates a warm, welcoming atmosphere, making this home truly move-in ready.Step outside to discover front and rear decks that invite you to linger a little longer-perfect for sunny breakfasts, evening barbecues, or simply soaking in the peaceful surroundings. The above-ground pool is sure to be a highlight, offering endless summer fun, a refreshing escape from the heat, and a place where kids and adults alike can create lasting memories. Located just three blocks from the heart of downtown Southampton, across from the scenic Saugeen River, and around the corner from everyday essentials, this home delivers both convenience and charm. Whether you're starting out, slowing down, or searching for a year-round retreat, this property captures the essence of easy, carefree living. (id:64974)
Quick Facts
- Property Type: House (Freehold)
- Style: Bungalow
- Bedrooms: 3 (3 above)
- Bathrooms: 1
- Ownership: Freehold
- Attached: No
- Parking: 5.0 spaces (No Garage)
- Frontage: 94 ft (28.7 m)
Costs
- Annual Taxes: $2,534.00 (2025)
Listing Provided by: Century 21 Millennium Inc.
Board: OnePoint Association of REALTORS®
Data provided via CREA DDF®.
Detailed Features
Interior & Systems
- Heating: Baseboard heaters, Radiant heat, Not known, Not known, Electric, Natural gas
- Cooling: None
- Basement: Crawl space
- Appliances: Washer, Refrigerator, Water meter, Dishwasher, Stove, Dryer, Microwave, Blinds, Window Coverings
- Flooring: Laminate, Vinyl
- Utilities: Sewer, Electricity, Cable
Exterior & Construction
- Style: Bungalow
- Exterior: Vinyl siding
- Foundation: Block
- Sewer: Sanitary sewer
- Water: Municipal water
Lot & Land
- Frontage: 94 ft (28.7 m)
- Features: Wooded area, Irregular lot size, Flat site, Lane, Carpet Free
- Pool: Above ground pool
- Zoning: R1
Community & Neighbourhood
- Community: School Bus
- Neighbourhood: Saugeen Shores
Room Details (6 rooms)
Listing Information
Listing History
MLS listing activity for 100 SOUTH RANKIN STREET, Saugeen Shores, Ontario, N0H2L0 — dates reflect when changes were recorded in the DDF
🚗 Travel times
Neighborhood Walkability
Mortgage & Cost Calculators
Nearby Homes ?Nearby Homes — Search CriteriaSearch Radius1 kmPrice Range±5%Match BedroomsYesMatch BathroomsYes

171 GOSFORD STREET, Saugeen Shores
House$1,075,000
$6,975/yr taxListing Courtesy of PEAK REALTY LTD.

171 GOSFORD Street, Southampton
House$1,075,000
$6,975/yr taxListing Courtesy of Peak Realty Ltd.

56 CHESLEY STREET, Saugeen Shores
House$829,900
$5,981/yr taxListing Courtesy of Royal LePage Exchange Realty Co.

227 SAUGEEN STREET, Saugeen Shores
Row / Townhouse$629,900
$5,377/yr taxListing Courtesy of Wilfred McIntee & Co Limited

225 SAUGEEN STREET, Saugeen Shores
Row / Townhouse$614,900
$5,318/yr taxListing Courtesy of Wilfred McIntee & Co Limited

229 RANKIN STREET, Saugeen Shores
House$1,249,000
$6,162/yr taxListing Courtesy of RE/MAX Four Seasons Realty Limited

69 ALBERT STREET N, Saugeen Shores
House$599,900
$3,639/yr taxListing Courtesy of Royal LePage D C Johnston Realty

18 STEINWAY STREET, Saugeen Shores
Row / Townhouse$3,400/mo
Listing Courtesy of Century 21 Millennium Inc.

344 LANSDOWNE STREET, Saugeen Shores
House$799,000
$5,293/yr taxListing Courtesy of RE/MAX Land Exchange Ltd.

164 EDWARD STREET, Saugeen Shores
House$567,888
$2,888/yr taxListing Courtesy of Royal LePage RCR Realty

15 GRENVILLE STREET N, Saugeen Shores
House$1,069,000
$1,374/yr taxListing Courtesy of Century 21 Millennium Inc.

121 EDWARD STREET, Saugeen Shores
House$585,000
$3,216/yr taxListing Courtesy of Royal LePage D C Johnston Realty

40 GROSVENOR STREET S, Saugeen Shores
House$599,900
$4,037/yr taxListing Courtesy of Royal LePage RCR Realty
Similar Homes ?Similar Homes — Search CriteriaSearch Radius5 kmPrice Range±5%Match Home TypeYesMatch BedroomsYes

164 EDWARD STREET, Saugeen Shores
House$567,888
$2,888/yr taxListing Courtesy of Royal LePage RCR Realty

510 - 1110 WALDEN CIRCLE, Mississauga (Clarkson)
Condo - Apartment$559,000
$3,288/yr taxListing Courtesy of ROYAL LEPAGE REALTY CENTRE

727 - 230 QUEENS QUAY W, Toronto (Waterfront Communities)
Condo - Apartment$559,000
$2,308/yr taxListing Courtesy of HOMELIFE LANDMARK REALTY INC.

710 - 92 KING STREET E, Toronto (Church-Yonge Corridor)
Condo - Apartment$559,000
$2,752/yr taxListing Courtesy of INSIDER REALTY

109 - 2502 RUTHERFORD ROAD, Vaughan (Maple)
Condo - Apartment$559,000
$2,718/yr taxListing Courtesy of REMAX YOUR COMMUNITY REALTY

204 - 26 HALL ROAD, Halton Hills (Georgetown)
Condo - Apartment$559,000
$2,943/yr taxListing Courtesy of ROYAL LEPAGE ESTATE REALTY

102 - 1400 KINGSTON ROAD, Toronto (Birchcliffe-Cliffside)
Condo - Apartment$559,000
$2,194/yr taxListing Courtesy of HOMELIFE KINGSVIEW REAL ESTATE INC.

517 - 60 BERWICK AVENUE, Toronto (Yonge-Eglinton)
Condo - Apartment$559,000
$3,454/yr taxListing Courtesy of FOREST HILL REAL ESTATE INC.

106 - 50 LAKEBREEZE DRIVE, Clarington (Newcastle)
Condo - Apartment$559,000
$5,433/yr taxListing Courtesy of KELLER WILLIAMS ENERGY REAL ESTATE

607 - 2470 PRINCE MICHAEL DRIVE, Oakville (JC Joshua Creek)
Condo - Apartment$559,000
$2,863/yr taxListing Courtesy of ROYAL LEPAGE REALTY PLUS OAKVILLE

203 - 29 MAIN STREET, Ottawa
Condo - Apartment$559,000
$4,847/yr taxListing Courtesy of RE/MAX HALLMARK REALTY GROUP

504 - 3105 CARLING AVENUE, Ottawa
Condo - Apartment$559,000
$4,057/yr taxListing Courtesy of RE/MAX HALLMARK SAM MOUSSA REALTY

2701 - 2181 YONGE STREET, Toronto (Mount Pleasant West)
Condo - Apartment$559,000
$3,167/yr taxListing Courtesy of ROYAL LEPAGE SIGNATURE REALTY

39 TWENTYPLACE Boulevard, Hamilton
Condo - Row / Townhouse$559,000
$4,157/yr taxListing Courtesy of Coldwell Banker-Burnhill Realty

210 CHARLTON Avenue E, Hamilton
House$559,000
$3,516/yr taxListing Courtesy of Royal LePage State Realty Inc.
Similar Properties ?Active Comparables — Search CriteriaSearch Radius2 kmPrice Range±5%Match Home TypeYesMatch BedroomsYes
No rental comparables found in this area.
Sold Comparables
Access to sold property data requires a registered and verified account with TRREB DDF integration.
Coming SoonRented Comparables
Access to rented property data requires a registered and verified account with TRREB DDF integration.
Coming SoonBook a Viewing
100 SOUTH RANKIN STREET, Saugeen Shores, Ontario, N0H2L0
